白岡市新白岡3丁目の中古戸建
掲載情報更新日:2025年10月30日 次回更新予定日:2025年11月13日
- 2,380万円
-
- 借入ご希望金額
万円 - 借入期間
年 - 借入金利
% - 月々のお支払い金額
円
- 借入ご希望金額
※ 月々のお支払例は目安の試算となりますので、実際の金額とは異なる場合がございます。詳しくは店舗までお問合わせください。
- 白岡市新白岡3丁目
-
JR東北本線『新白岡』 徒歩14分 (約1060m)
白岡市新白岡3丁目一戸建て | 物件情報
【白岡ニュータウン旧分譲地】4LDK 駐車場付き 南向き物件
□庭付き
□日当たり良好の南向き
□駐車場カーポート付き
□新白岡ニュータウン旧分譲地内
□2×4工法
【周辺環境】
・新白岡もみじ公園まで徒歩1分(約70m)
・埼玉県立白岡高等学校まで徒歩3分(約180m)
・スギ薬局 新白岡店まで徒歩5分(約340m)
・白岡市立白岡東小学校まで徒歩8分(約620m)
・高岩公園まで徒歩9分(約680m)
・ヤオコー 新白岡店まで徒歩9分(約650m)
・高岩保育園まで徒歩8分(約600m)
・山本クリニックまで徒歩10分(約770m)
・ミニストップ 新白岡駅東口店まで徒歩12分(約910m)
物件の設備
- 電気
- 公営水道
- 下水道
- 都市ガス
- コンロ二口
- バス
- トイレ2箇所
- 室内洗濯機置場
- 2面採光
- 全居室収納
- シューズボックス
- バルコニー
- テラス
- 庭
物件の特徴
- 南向
- 24工法
- 2階建
- 大型タウン内
物件詳細情報
| 価格 | 2,380万円 | 間取り | 4LDK |
|---|---|---|---|
| 物件種別 | 中古一戸建て | ||
| 所在地 | 埼玉県白岡市新白岡3丁目 | ||
| アクセス |
|
||
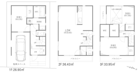
| 建物面積 | 公96.05㎡ | 駐車場 | あり 普通:1台 |
| 築年月 | 1987年(昭和62年)03月築 | ||
| 建物構造 | 木造 2階建 | 工法 | 2×4工法 |
| 主要採光 | 南西向 | バルコニー | |
| 保証・評価 | |||
| リフォーム | |||
| 土地面積 | 公178.22㎡(53.91坪) | 接道 | |
| 私道 | セットバック | 無 | |
| 地目 | 宅地 | 地勢 | |
| 権利 | 所有権 |
||
| 都市計画 | 市街化区域 |
用途地域 | 1種低層 |
| 建ぺい/容積率 | 50% / 80% | 土地国土法 | |
| 許可番号 | 建築基準法 | ||
| 法令制限 | |||
| 小学区 | 白岡東小学校 徒歩8分 (約620m) | 中学区 | |
| 現況 | 空 | 引渡 | 相談 |
| その他費用 | |||
| 周辺環境 | 新白岡もみじ公園 徒歩1分 (約70m) 埼玉県立白岡高等学校 徒歩3分 (約180m) スギ薬局 新白岡店 徒歩5分 (約340m) 白岡市立白岡東小学校 徒歩8分 (約620m) 高岩公園 徒歩9分 (約680m) ヤオコー 新白岡店 徒歩9分 (約650m) 高岩保育園 徒歩8分 (約600m) 山本クリニック 徒歩10分 (約770m) ミニストップ 新白岡駅東口店 徒歩12分 (約910m) |
||
| 備考 | □新白岡ニュータウン旧分譲地内 □2×4工法 【周辺環境】 ・新白岡もみじ公園まで徒歩1分(約70m) ・埼玉県立白岡高等学校まで徒歩3分(約180m) ・スギ薬局 新白岡店まで徒歩5分(約340m) ・白岡市立白岡東小学校まで徒歩8分(約620m) ・高岩公園まで徒歩9分(約680m) ・ヤオコー 新白岡店まで徒歩9分(約650m) ・高岩保育園まで徒歩8分(約600m) ・山本クリニックまで徒歩10分(約770m) ・ミニストップ 新白岡駅東口店まで徒歩12分(約910m) |
||
| 物件番号 | 4210090 | 取引態様 | 媒介 |
取扱店舗情報
| 電話番号 | 0480-48-7320 |
|---|---|
| 所在地 | 〒349-0218 埼玉県白岡市白岡1009-5 |
| 営業時間 | 9:00~18:00 |
| 定休日 | 火曜日、水曜日 |
| 宅建免許番号 | 埼玉県知事(1)第25611号 |
| アクセス | 店舗への地図はこちら |

来店ご予約
埼玉県白岡市で価格が似ている物件はこちら
- 埼玉県
マイページ物件数 - 3,563件
最近見た物件
-
-

-
- 中古マンション
- 5,280万円
-
川崎市川崎区榎町
-
京急本線京急川崎
-
埼玉県中古一戸建て新着物件
-
-

-
- 中古一戸建て
- 4,880万円
-
さいたま市見沼区大和田町1丁目
-
湘南新宿ライン高海大宮駅
-
-
-

-
- 中古一戸建て
- 4,680万円
-
さいたま市浦和区領家7丁目
-
JR京浜東北・根岸線与野駅
-
-
-

-
- 中古一戸建て
- 2,950万円
-
さいたま市見沼区島町2丁目
-
東武野田線七里駅
-
-
-

-
- 中古一戸建て
- 5,800万円
-
吉川市美南2丁目
-
JR武蔵野線吉川美南駅
-
-
-

-
- 中古一戸建て
- 3,999万円
-
川口市青木2丁目
-
埼玉高速鉄道川口元郷駅
-
-
-

-
- 中古一戸建て
- 1,380万円
-
さいたま市桜区大字神田
-
JR埼京線与野本町駅
-
-
-

-
- 中古一戸建て
- 5,480万円
-
吉川市美南4丁目
-
JR武蔵野線吉川美南駅
-
- お近くの店舗を探す
-
おすすめ物件
-
-

-
- 中古一戸建て
- 4,880万円
-
上尾市大字原市
-
湘南新宿ライン宇須東大宮
-
-
-

-
- 中古一戸建て
- 3,980万円
-
上尾市今泉3丁目
-
JR高崎線上尾
-
-
-

-
- 中古一戸建て
- 2,380万円
-
北足立郡伊奈町西小針3丁目
-
埼玉新都市交通内宿
-
-
-

-
- 中古一戸建て
- 2,399万円
-
三郷市彦糸1丁目
-
JR武蔵野線吉川美南
-
-
-

-
- 中古一戸建て
- 6,580万円
-
越谷市東越谷7丁目
-
東武伊勢崎・大師線越谷
-
-
-

-
- 中古一戸建て
- 1,480万円
-
北葛飾郡松伏町田中3丁目
-
東武伊勢崎・大師線北越谷
-
-
-

-
- 中古一戸建て
- 2,699万円
-
さいたま市大宮区三橋1丁目
-
JR東北本線大宮
-
-
-

-
- 中古一戸建て
- 3,490万円
-
北足立郡伊奈町内宿台5丁目
-
埼玉新都市交通内宿
-
-
-

-
- 中古一戸建て
- 2,950万円
-
上尾市大字上野
-
JR高崎線上尾
-
-
-

-
- 中古一戸建て
- 2,630万円
-
越谷市大字下間久里
-
東武伊勢崎・大師線大袋
-










担当エージェント:脇田 滋行
白岡市新白岡にございます中古戸建です。大人気の南向き、そしてカーポート付の駐車場とお庭のある物件なので落ち着いた住宅街での新生活におすすめです。白岡ニュータウン旧分譲地なので、街並みも素敵です。ぜひ現地にてご覧いただければ幸いです。物件の詳細は、お気軽にハウスドゥ白岡までお問い合せください。