港区芝1丁目の収益物件
掲載情報更新日:2025年10月21日 次回更新予定日:2025年11月04日
- 2,290万円
-
- 借入ご希望金額
万円 - 借入期間
年 - 借入金利
% - 月々のお支払い金額
円
- 借入ご希望金額
※ 月々のお支払例は目安の試算となりますので、実際の金額とは異なる場合がございます。詳しくは店舗までお問合わせください。
- 港区芝1丁目
-
都営三田線『三田』 徒歩8分 (約640m)
JR京浜東北・根岸線『田町』 徒歩11分 (約880m)
JR京浜東北・根岸線『浜松町』 徒歩10分 (約800m)
港区芝1丁目の収益物件 | 物件情報
都心アクセス良好!「三田」エリアの人気1Kマンション
「サンテミリオン三田」は、港区三田アドレスに位置する分譲マンションです。都営浅草線・三田線「三田」駅やJR山手線「田町」駅など複数路線が利用可能で、都心主要エリアへスムーズにアクセスできます。外観はタイル貼りで重厚感があり、共用部分もきれいに維持されているため、資産価値の面でも安心です。専有部は1Kのシンプルかつ使いやすい間取りで、バストイレ別、独立洗面台、室内洗濯機置場など、居住者に嬉しい設備を完備。単身の実需としてはもちろん、投資用としても人気の高いタイプとなっております。
物件の設備
- コンロ一口
- バス
- ユニットバス
- トイレ
- B/T別室
- 室内洗濯機置場
- クローゼット
- シューズボックス
- バルコニー
物件詳細情報
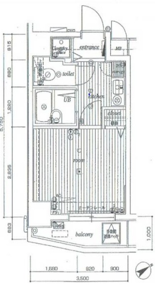
| 価格 | 2,290万円 | 間取り | 1K |
|---|---|---|---|
| 物件種別 | 事業用(マンション・収益・区分所有) | ||
| 所在地 | 東京都港区芝1丁目 | ||
| アクセス |
|
||
| 専有面積 | 壁芯 19.98㎡ | 所在階 | 8階建/6階部分 |
| 主要採光 | 南東向 | バルコニー | 南東向3.18㎡ |
| その他 | |||
| 権利 | 所有権 |
||
| 保証・評価 | |||
| リフォーム | |||
| 総戸数 | 面積 | ||
| 築年月 | 2002年(平成14年)03月築 | 建物構造 | RC |
| 施工会社 | |||
| 管理会社 | 日本ハウズイング | 管理方式 | 全部委託 なし(不在) |
| 駐車場 | |||
| 都市計画 | 用途地域 | ||
| 建ぺい/容積率 | 土地国土法 | ||
| 法令制限 | |||
| 小学区 | 芝小学校 徒歩5分 (約400m) | 中学区 | 三田中学校 徒歩17分 (約1300m) |
| 現況 | 賃貸中 | 引渡 | 相談 |
| 管理費 | 12,715円/月 | 修繕積立金 | 9,660円/月 |
| その他費用 | |||
| 収益情報 | 表面利回り:4.45% 家賃収入:1,020,000円 |
||
| 備考 | |||
| 物件番号 | 4385184 | 取引態様 | 媒介 |
※利回りとは、当該不動産の1年間の予定賃料収入の不動産取得対価に対する割合であり、公租公課その他当該物件を維持するために必要な費用の控除前のものです。また、予定賃料収入が確実に得られる事を保証するものではありません。
※利回り、想定年収に関する詳しい内容は、直接店舗までお問い合わせ下さい。
取扱店舗情報
| 電話番号 | 03-5544-9070 |
|---|---|
| 所在地 | 〒106-0032 東京都港区六本木5丁目18番2号 大昌第2ビル6階 |
| 営業時間 | 10:00~18:00 |
| 定休日 | 水曜日、日曜日、年末年始 |
| 宅建免許番号 | 東京都知事(1)第111695号 |
| アクセス | 店舗への地図はこちら |

来店ご予約
東京都港区で価格が似ている物件はこちら
- 東京都
マイページ物件数 - 5,565件
東京都事業用・収益物件新着物件
- お近くの店舗を探す
-
おすすめ物件
-
-

-
- 収益
- 800万円
-
葛飾区金町3丁目
-
JR千代田・常磐緩行線金町
-
-
-

-
- 収益
- 2,080万円
-
江戸川区東葛西1丁目
-
東京メトロ東西線葛西
-
-
-

-
- 収益
- 4,500万円
-
大田区大森南2丁目
-
京急空港線大鳥居
-














担当エージェント:宮本海翔
本物件は、港区三田という都心の人気エリアに位置しながら、使い勝手の良い1Kタイプで、シングルユーザーや投資家の方におすすめできる内容となっています。駅からのアクセスも良好で、学生や社会人など幅広い需要が見込める点もポイントです。また、外観やエントランスも整備されており、第一印象から安心感のある建物です。投資用として安定した賃貸需要が期待できるほか、自己使用としても快適な住まいを実現できる一室となっております。ぜひご検討ください。