港区南青山6丁目の収益物件
NEW 10.31掲載情報更新日:2025年10月31日 次回更新予定日:2025年11月14日
- 6,500万円
- 
                    - 借入ご希望金額
 万円
-  借入期間
 年
-  借入金利
 %
-  月々のお支払い金額
 円
 
- 借入ご希望金額
※ 月々のお支払例は目安の試算となりますので、実際の金額とは異なる場合がございます。詳しくは店舗までお問合わせください。
- 港区南青山6丁目
- 
                    東京メトロ銀座線『表参道』 徒歩6分 (約480m)
 
港区南青山6丁目の収益物件 | 物件情報
港区南青山にありながら、緑に囲まれた穏やかな住環境。管理体制も良好で、安心して暮らせるマンション
             
        
            南青山六丁目の閑静な住宅街に佇む「南青ハイツ」。
六本木・表参道・広尾が徒歩圏内という贅沢な立地ながら、敷地内には大きな樹木と豊かな緑が広がり、都心とは思えない穏やかな時間が流れます。
エントランスは重厚感のあるタイル貼りで、日勤管理体制も整っており、清掃の行き届いた共用部が印象的。
郵便受けやゴミ置き場など共用設備も整理され、管理の質の高さを感じられます。
南青山アドレスながら落ち着いた雰囲気を求める方、ヴィンテージマンションの温かみを感じたい方におすすめの一邸です。        
物件の設備
- コンロ三口
- バス
- トイレ
- B/T別室
- 室内洗濯機置場
- エアコン
- クローゼット
- 収納スペース
物件の特徴
- 管理人日勤
物件詳細情報
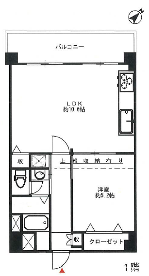
| 価格 | 6,500万円 | 間取り | 1LDK | 
|---|---|---|---|
| 物件種別 | 事業用(マンション・収益・区分所有) | ||
| 所在地 | 東京都港区南青山6丁目 | ||
| アクセス | 
 | ||
| 専有面積 | 壁芯 42.13㎡ | 所在階 | 7階建/1階部分 | 
| 主要採光 | 北西向 | バルコニー | |
| その他 | |||
| 権利 | 所有権 | ||
| 保証・評価 | |||
| リフォーム | |||
| 総戸数 | 面積 | ||
| 築年月 | 1970年(昭和45年)07月築 | 建物構造 | RC | 
| 施工会社 | |||
| 管理会社 | 東急コミュニティー | 管理方式 | 全部委託 日勤管理 | 
| 駐車場 | |||
| 都市計画 | 用途地域 | ||
| 建ぺい/容積率 | 土地国土法 | ||
| 法令制限 | |||
| 小学区 | 青南小学校 徒歩2分 (約160m) | 中学区 | 青山中学校 徒歩24分 (約1900m) | 
| 現況 | 賃貸中 | 引渡 | 相談 | 
| 管理費 | 10,770円/月 | 修繕積立金 | 14,690円/月 | 
| その他費用 | |||
| 収益情報 | 表面利回り:2.86% 家賃収入:1,860,000円 | ||
| 備考 | |||
| 物件番号 | 4471250 | 取引態様 | 媒介 | 
※利回りとは、当該不動産の1年間の予定賃料収入の不動産取得対価に対する割合であり、公租公課その他当該物件を維持するために必要な費用の控除前のものです。また、予定賃料収入が確実に得られる事を保証するものではありません。
        ※利回り、想定年収に関する詳しい内容は、直接店舗までお問い合わせ下さい。
取扱店舗情報
| 電話番号 | 03-5544-9070 | 
|---|---|
| 所在地 | 〒106-0032 東京都港区六本木5丁目18番2号 大昌第2ビル6階 | 
| 営業時間 | 10:00~18:00 | 
| 定休日 | 水曜日、日曜日、年末年始 | 
| 宅建免許番号 | 東京都知事(1)第111695号 | 
| アクセス | 店舗への地図はこちら | 

来店ご予約
- 東京都
 マイページ物件数
- 5,534件
最近見た物件
- 
                        - 
									                                     
- 
                                - 土地
- 3,880万円
- 
                                        
                                            さいたま市見沼区東大宮6丁目 
- 
                                        JR東北本線東大宮 
 
 
- 
									                                    
- 
                        - 
									                                     
- 
                                - 新築一戸建て
- 3,240万円
- 
                                        
                                            鳥取市浜坂1丁目 
- 
                                        JR山陰本線鳥取 
 
 
- 
									                                    
- 
                        - 
									                                     
- 
                                - 新築一戸建て
- 2,590万円
- 
                                        
                                            八戸市石堂1丁目 
- 
                                        城北小学校通バス停 
 
 
- 
									                                    
東京都事業用・収益物件新着物件
- お近くの店舗を探す
- 
            
            
            
おすすめ物件
- 
				- 
														 
- 
						- 収益
- 800万円
- 
								
									葛飾区金町3丁目 
- 
								JR千代田・常磐緩行線金町 
 
 
- 
														
- 
				- 
														 
- 
						- 収益
- 4,500万円
- 
								
									大田区大森南2丁目 
- 
								京急空港線大鳥居 
 
 
- 
														
- 
				- 
														 
- 
						- 収益
- 2,080万円
- 
								
									江戸川区東葛西1丁目 
- 
								東京メトロ東西線葛西 
 
 
- 
														
 
     
                         
                         
                         
                    







 
                














 
                 
             
                    






 
						 
						
担当エージェント:宮本海翔
南青ハイツは、築年数を経てもなお人気の高い「南青山ヴィンテージ」シリーズの代表格です。
外観・共用部ともに清潔感があり、管理人常駐でセキュリティ面も安心。
周辺には青山学院大学、六本木ヒルズ、東京ミッドタウンが揃い、日常の買い物からカフェ、レストランまで徒歩圏で完結します。
緑豊かな敷地内は心が落ち着く空間で、休日は中庭のベンチで過ごすのもおすすめ。
都心の利便と癒しの両方を兼ね備えたバランスの良い物件です。