梅園町 中古テラス
掲載情報更新日:2026年04月14日 次回更新予定日:2026年04月28日
- 1,400万円
-
- 借入ご希望金額
万円 - 借入期間
年 - 借入金利
% - 月々のお支払い金額
円
- 借入ご希望金額
※ 月々のお支払例は目安の試算となりますので、実際の金額とは異なる場合がございます。詳しくは店舗までお問合わせください。
- 守口市梅園町
-
京阪本線『土居』 徒歩1分 (約30m)
大阪市谷町線『太子橋今市』 徒歩7分 (約560m)
大阪市今里筋線『太子橋今市』 徒歩7分 (約560m)
梅園町 中古テラステラスハウス | 物件情報
オーナーチェンジ物件! 収益物件にいかがでしょうか♪
☆オーナーチェンジ物件
表面利回り:約15.91%
☆投資用不動産としていかがでしょうか
☆最寄駅から京橋駅まで11分
☆3沿線3駅利用可
☆近隣に学校、幼稚園、保育園、公園あり
☆複数スーパーあり
☆0120ー684-571
お気軽にお電話ください♪
☆立地のポイント
【土居駅】徒歩約1分
【太子橋今市駅】徒歩約7分
物件の設備
- 浴室に窓
物件の特徴
- 2沿線利用可
- 陽当り良好
- 2階建
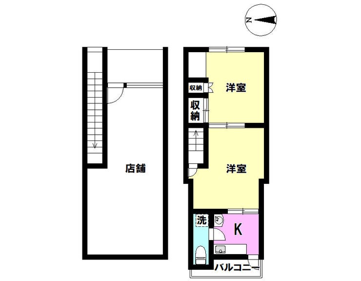
物件詳細情報
| 価格 | 1,400万円 | 間取り | 2K |
|---|---|---|---|
| 物件種別 | 中古一戸建て(テラスハウス・収益) | ||
| 所在地 | 大阪府守口市梅園町 | ||
| アクセス |
|
||
| 建物面積 | 66.64㎡ | 駐車場 | なし |
| 築年月 | 1980年(昭和55年)01月築 | ||
| 建物構造 | 木造 2階建 | 工法 | |
| 主要採光 | バルコニー | ||
| 保証・評価 | |||
| リフォーム | |||
| 土地面積 | 48.08㎡(14.54坪) | 接道 | 東側幅 約4.0m 間口 約3.90m |
| 私道 | セットバック | ||
| 地目 | 宅地 | 地勢 | |
| 権利 | 普通賃借権 借地料55000円/月 期間:20年カ月 |
||
| 都市計画 | 用途地域 | 近隣商業 | |
| 建ぺい/容積率 | 80% / 300% | 土地国土法 | |
| 許可番号 | 建築基準法 | ||
| 法令制限 | |||
| 小学区 | さくら小学校 徒歩1分 (約70m) | 中学区 | さつき学園 徒歩1分 (約70m) |
| 現況 | 賃貸中 | 引渡 | 相談 |
| その他費用 | 借地料55000円/月 期間:20年カ月 |
||
| 収益情報 | 表面利回り:15.91% 家賃収入:2,228,292円 |
||
| 周辺環境 | 土居駅 徒歩2分 (約100m) ライフ 守口滝井店 徒歩6分 (約420m) 太子橋今市駅 徒歩10分 (約740m) 万代 太子橋店 徒歩9分 (約690m) 守口市役所 徒歩9分 (約720m) セブン-イレブン 大阪太子橋1丁目店 徒歩11分 (約860m) 守口市立さくら小学校 徒歩13分 (約980m) 太子橋中公園 徒歩10分 (約790m) スーパー玉出 千林店 徒歩11分 (約830m) |
||
| 備考 | ※オーナーチェンジ物件です。 1階 賃料:136,191円/月 2階 賃料:49,500円/月 年間収支 2,228,292円 表面利回り:約15.91% ・土居駅まで徒歩2分(約100m) ・ライフ 守口滝井店まで徒歩6分(約420m) ・太子橋今市駅まで徒歩10分(約740m) ・万代 太子橋店まで徒歩9分(約690m) ・守口市役所まで徒歩9分(約720m) ・セブン-イレブン 大阪太子橋1丁目店まで徒歩11分(約860m) ・守口市立さくら小学校まで徒歩13分(約980m) ・太子橋中公園まで徒歩10分(約790m) ・スーパー玉出 千林店まで徒歩11分(約830m) |
||
| 物件番号 | 4475206 | 取引態様 | 一般媒介 |
※利回りとは、当該不動産の1年間の予定賃料収入の不動産取得対価に対する割合であり、公租公課その他当該物件を維持するために必要な費用の控除前のものです。また、予定賃料収入が確実に得られる事を保証するものではありません。
※利回り、想定年収に関する詳しい内容は、直接店舗までお問い合わせ下さい。
取扱店舗情報
| 電話番号 | 050-5805-9447 |
|---|---|
| 所在地 | 〒536-0006 大阪府大阪市城東区野江4丁目10-13 クリエイト野江内代1F |
| 営業時間 | 10:00~19:00 |
| 定休日 | なし |
| 宅建免許番号 | 国土交通大臣(1)第10706号 |
| アクセス | 店舗への地図はこちら |

来店ご予約
- 大阪府
マイページ物件数 - 18,268件
最近見た物件
-
-

-
- 新築一戸建て
- 4,380万円
-
入間市下藤沢5丁目
-
西武池袋・豊島線武蔵藤沢
-
-
-

-
- 新築一戸建て
- 2,580万円
-
土岐市妻木町
-
JR中央本線多治見
-
-
-

-
- 新築一戸建て
- 2,390万円
-
知多郡美浜町大字奥田字石亀
-
名鉄知多新線美浜緑苑
-
大阪府事業用・収益物件新着物件
-
-

-
- 収益
- 8,800万円
-
大阪市西成区岸里東1丁目
-
南海電鉄高野線岸里玉出駅
-
-
-

-
- 事業用
- 1億1,800万円
-
大阪市西区新町4丁目
-
大阪市長堀鶴見緑地線西長堀駅
-
-
-

-
- 事業用
- 1億1,800万円
-
大阪市西区新町4丁目
-
大阪市長堀鶴見緑地線西長堀駅
-
-
-

-
- 事業用
- 3,980万円
-
豊中市岡町南3丁目
-
阪急電鉄宝塚線岡町駅
-
-
-

-
- 事業用
- 3,980万円
-
豊中市岡町南3丁目
-
阪急電鉄宝塚線岡町駅
-
-
-

-
- 収益
- 1億円
-
吹田市岸部中3丁目
-
JR東海道線岸辺駅
-
-
-

-
- 事業用
- 850万円
-
泉佐野市日根野
-
JR関西空港線日根野駅
-
- お近くの店舗を探す
-
おすすめ物件
-
-

-
- 収益
- 3,780万円
-
大阪市東住吉区今川2丁目
-
JR関西本線東部市場前
-










担当エージェント:石川 千明
最寄り駅から京橋まで11分の好立地!
通勤通学に便利な3沿線3駅利用可!
収益物件をお探しの方におすすめの物件です!
ぜひお気軽にお問い合わせください!