札幌市清田区里塚二条2丁目の土地
掲載情報更新日:2026年01月20日 次回更新予定日:2026年02月03日
- 1,380万円
-
- 借入ご希望金額
万円 - 借入期間
年 - 借入金利
% - 月々のお支払い金額
円
- 借入ご希望金額
※ 月々のお支払例は目安の試算となりますので、実際の金額とは異なる場合がございます。詳しくは店舗までお問合わせください。
- 札幌市清田区里塚二条2丁目
-
札幌市東西線『大谷地』 バス乗車20分 北海道中央バス 桂台団地 停 徒歩5分 (約400m)
札幌市東豊線『福住』 バス乗車20分 北海道中央バス 桂台団地 停 徒歩5分 (約400m)
JR千歳線『北広島』 バス乗車27分 北海道中央バス 桂台団地 停 徒歩4分 (約320m)
札幌市清田区里塚二条2丁目土地 | 物件情報
物件の設備
- 電気
- 上水道
- 下水道
物件の特徴
- 前道6m以上
- 整備された歩道
- 緑豊かな住宅地
- 閑静な住宅街
- 整形地
- 更地渡
- IT重説
- 建築条件無
物件詳細情報
| 価格 | 1,380万円 | 坪単価 | 坪15.4万円 |
|---|---|---|---|
| 物件種別 | 土地 | ||
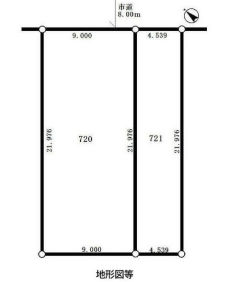
| 所在地 | 北海道札幌市清田区里塚二条2丁目720.721 | ||
| アクセス |
|
||
| 土地面積 | 公296.73㎡(89.76坪) | 接道 | 北東側(公道)幅 約8.0m 間口 約13.50m |
| 私道 | セットバック | ||
| 最適用途 | 住宅用地 | 造成完了時期 | |
| 地目 | 宅地 | 地勢 | |
| 権利 | 所有権 |
||
| 都市計画 | 市街化区域 |
用途地域 | 1種低層 |
| 建ぺい/容積率 | 40% / 80% | 土地国土法 | |
| 許可番号 | 建築基準法 | ||
| 法令制限 | |||
| 小学区 | 平岡南小学校 徒歩12分 (約950m) | 中学区 | 平岡中学校 徒歩17分 (約1300m) |
| 現況 | 更地 | 引渡 | 相談(更地渡し) |
| 建築条件 | 建築条件なし | ||
| その他費用 | |||
| 周辺環境 | からまつ保育園 徒歩3分 (約210m) さとづか幼稚園 徒歩4分 (約280m) セイコーマート 里塚2条店 徒歩4分 (約270m) ローソン 札幌里塚1条三丁目店 徒歩6分 (約410m) 札幌市立平岡南小学校 徒歩12分 (約930m) 認定こども園つみき 徒歩9分 (約720m) 平岡南公園 徒歩11分 (約870m) 回転寿しトリトン 清田店 徒歩11分 (約840m) 松屋 里塚店 徒歩11分 (約840m) |
||
| 備考 | ●二世帯住宅や広々とした住空間の建築 ●複数台の駐車スペースや広いお庭など のプランに適した敷地です。 ●建築条件なし。 |
||
| 物件番号 | 4363898 | 取引態様 | 媒介 |
取扱店舗情報
ハウスドゥ 清田平岡 株式会社トワ・ピリエ 店舗詳細ページへ
| 電話番号 | 011-887-7462 |
|---|---|
| 所在地 | 〒004-0875 北海道札幌市清田区平岡5条1丁目1番8号 |
| 営業時間 | 10:00~17:00 |
| 定休日 | 水曜日、第一日曜日、第三日曜日 |
| 宅建免許番号 | 北海道知事 胆振(4)第966号 |
| アクセス | 店舗への地図はこちら |

来店ご予約
北海道札幌市清田区で価格が似ている物件はこちら
- 北海道
マイページ物件数 - 6,122件
最近見た物件
-
-

-
- 土地
- 798万円
-
宇都宮市石井町
-
宇都宮芳賀ライト線平石
-
-
-

-
- 土地
- 1億5,800万円
-
吹田市千里山西5丁目
-
阪急電鉄千里線関大前
-
-
-

-
- 土地
- 480万円
-
吹田市南吹田4丁目
-
JRおおさか東線南吹田
-
北海道土地新着物件
-
-

-
- 土地
- 870万円
-
旭川市住吉四条1丁目
-
JR函館本線旭川駅
-
-
-

-
- 土地
- 140万円
-
河東郡鹿追町鹿追基線
-
拓殖バス【下市街】停
-
-
-

-
- 土地
- 450万円
-
河東郡鹿追町鹿追基線
-
拓殖バス【下市街】停
-
-
-

-
- 土地
- 150万円
-
河東郡鹿追町鹿追基線
-
拓殖バス【下市街】停
-
-
-

-
- 土地
- 130万円
-
河東郡鹿追町鹿追南1線
-
拓殖バス【下市街】停
-
-
-

-
- 土地
- 140万円
-
河東郡鹿追町鹿追基線
-
拓殖バス【下市街】停
-
-
-

-
- 土地
- 450万円
-
河東郡鹿追町鹿追基線
-
拓殖バス【下市街】停
-
- お近くの店舗を探す
-
おすすめ物件
-
-

-
- 土地
- 2,250万円
-
札幌市西区西野四条9丁目
-
札幌市東西線宮の沢
-
-
-

-
- 土地
- 120万円
-
石狩市緑ケ原2丁目
-
トーメン団地
-
-
-

-
- 土地
- 1,280万円
-
北広島市大曲南ヶ丘4丁目
-
中央バス南ヶ丘4丁目
-
-
-

-
- 土地
- 898万円
-
江別市野幌若葉町
-
JR函館本線大麻
-
-
-

-
- 土地
- 1,380万円
-
札幌市北区新琴似十一条7丁目
-
札幌市南北線麻生
-
-
-

-
- 土地
- 2,400万円
-
夕張郡長沼町中央南2丁目
-
ジェイアール北海道バス長沼町役場
-
-
-

-
- 土地
- 40万円
-
小樽市塩谷1丁目
-
JR函館本線塩谷
-
-
-

-
- 土地
- 100万円
-
紋別市南が丘町7丁目
-
7丁目会館
-
-
-

-
- 土地
- 30万円
-
紋別郡遠軽町大通北11丁目
-
JR石北本線遠軽
-
-
-

-
- 土地
- 890万円
-
江別市野幌代々木町
-
JR函館本線野幌
-



