福岡市南区皿山3丁目の土地
掲載情報更新日:2025年12月13日 次回更新予定日:2025年12月27日
- 3,050万円
-
- 借入ご希望金額
万円 - 借入期間
年 - 借入金利
% - 月々のお支払い金額
円
- 借入ご希望金額
※ 月々のお支払例は目安の試算となりますので、実際の金額とは異なる場合がございます。詳しくは店舗までお問合わせください。
- 福岡市南区皿山3丁目
-
西鉄天神大牟田線『高宮』 徒歩39分 (約3100m)
西鉄天神大牟田線『大橋』 徒歩44分 (約3500m)
西鉄天神大牟田線『西鉄平尾』 徒歩47分 (約3700m)
西鉄バス『皿山三丁目』 徒歩5分 (約350m)
福岡市南区皿山3丁目土地 | 物件情報
建築条件なし+整形地+東道路♪小学校・スーパー徒歩10分以内♪整備された道路に面しています♪
〈建築条件なし〉
お好きなハウスメーカーで建築いただけます♪
※建築確認取得後、建売に切り替わります。
〈整形地〉
正方形に近いきれいな形の土地のため、家や駐車場のプランが立てやすいです!
〈日当たり良好〉
東向きの道路に面しているため、十分に陽光を取り入れることができます♪
\充実の周辺環境♪/
花畑小学校 徒歩10分♪
花畑中学校 徒歩12分♪
西鉄ストア レガネット南長住店 徒歩3分♪
バス停「皿山三丁目」 徒歩5分♪
福岡信和病院 徒歩8分♪
ニトリ 福岡南店 徒歩11分♪
物件の設備
- 電気
- 公営水道
- 下水道
物件の特徴
- 小学校徒歩10分以内
- 整備された歩道
- スーパーが近い
- 閑静な住宅街
- 周辺交通量少なめ
- 陽当り良好
- 整形地
- 更地渡
- 建築条件無
物件詳細情報
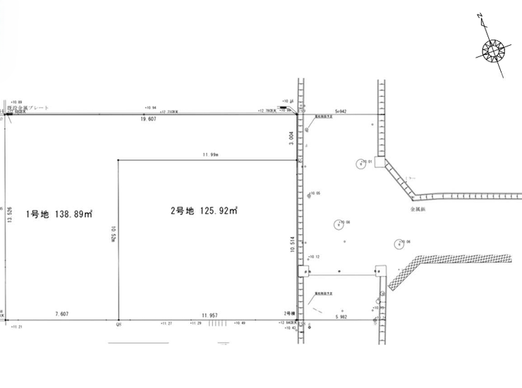
| 価格 | 3,050万円 | 坪単価 | 坪80.1万円 |
|---|---|---|---|
| 物件種別 | 土地 | ||
| 所在地 | 福岡県福岡市南区皿山3丁目 2号地 | ||
| アクセス |
|
||
| 土地面積 | 125.92㎡(38.09坪) | 接道 | 東側(公道)幅 約5.9m |
| 私道 | セットバック | ||
| 最適用途 | 住宅用地 | 造成完了時期 | |
| 地目 | 宅地 | 地勢 | |
| 権利 | 所有権 |
||
| 分譲情報 | |||
| 都市計画 | 市街化区域 |
用途地域 | 1種低層 |
| 建ぺい/容積率 | 50% / 80% | 土地国土法 | |
| 許可番号 | 建築基準法 | ||
| 法令制限 | 高さ最高限度有・日影制限有・法22条区域 | ||
| 小学区 | 西花畑小学校 徒歩10分 (約800m) | 中学区 | 花畑中学校 徒歩12分 (約950m) |
| 現況 | 古家付 | 引渡 | 期日指定:2025年10月(更地渡し) |
| 建築条件 | 建築条件なし | ||
| その他費用 | |||
| 周辺環境 | 松田整形外科、いとう循環器内科 徒歩6分 (約470m) ローソン長丘二丁目店 徒歩19分 (約1470m) 寺塚公園 徒歩21分 (約1670m) |
||
| 備考 | |||
| 物件番号 | 4384480 | 取引態様 | 媒介 |
取扱店舗情報
ハウスドゥ 春日白水公園前 株式会社みらい 店舗詳細ページへ
| 電話番号 | 092-581-8888 |
|---|---|
| 所在地 | 〒816-0847 福岡県春日市大土居1丁目123番地 |
| 営業時間 | 10:00~18:30 |
| 定休日 | 火曜日 水曜日 |
| 宅建免許番号 | 福岡県知事(2)第18997号 |
| アクセス | 店舗への地図はこちら |

来店ご予約
福岡県福岡市南区で価格が似ている物件はこちら
- 福岡県
マイページ物件数 - 9,160件
最近見た物件
-
-

-
- 土地
- 420万円
-
高砂市阿弥陀町阿弥陀
-
JR山陽本線曽根
-
-
-

-
- 土地
- 800万円
-
下都賀郡壬生町大字安塚
-
東武宇都宮線安塚
-
-
-

-
- 土地
- 738.87万円
-
岡山市南区浦安西町
-
JR山陽本線岡山
-
福岡県土地新着物件
-
-

-
- 土地
- 2,490万円
-
那珂川市恵子5丁目
-
西鉄天神大牟田線西鉄福岡(天神)駅
-
-
-

-
- 土地
- 150万円
-
直方市大字直方
-
平成筑豊鉄道南直方御殿口駅
-
-
-

-
- 土地
- 2,000万円
-
太宰府市梅香苑3丁目
-
西鉄太宰府線西鉄五条駅
-
-
-

-
- 土地
- 1,720万円
-
北九州市小倉南区大字横代
-
JR日田彦山線石田駅
-
-
-

-
- 土地
- 1,760万円
-
北九州市小倉南区大字志井
-
JR日田彦山線志井公園駅
-
-
-

-
- 土地
- 80万円
-
北九州市小倉北区日明4丁目
-
JR鹿児島本線西小倉駅
-
-
-

-
- 土地
- 1,690万円
-
北九州市八幡西区浅川日の峯1丁目
-
JR筑豊本線折尾駅
-
- お近くの店舗を探す
-
おすすめ物件
-
-

-
- 土地
- 1,080万円
-
直方市知古2丁目
-
筑豊電気鉄道筑豊直方
-
-
-

-
- 土地
- 1,200万円
-
小郡市上西鯵坂
-
西鉄天神大牟田線端間
-
-
-

-
- 土地
- 1,200万円
-
築上郡築上町大字築城
-
JR日豊本線築城
-
-
-

-
- 土地
- 1,980万円
-
福岡市東区香椎駅東1丁目
-
JR鹿児島本線香椎
-
-
-

-
- 土地
- 850万円
-
北九州市若松区浜町3丁目
-
JR筑豊本線若松
-
-
-

-
- 土地
- 3,800万円
-
北九州市小倉南区山手3丁目
-
北九州高速鉄道企救丘
-
-
-

-
- 土地
- 2,650万円
-
北九州市小倉南区星和台1丁目
-
北九州高速鉄道守恒
-
-
-

-
- 土地
- 700万円
-
北九州市小倉南区湯川新町2丁目
-
JR日豊本線安部山公園
-
-
-

-
- 土地
- 4,780万円
-
北九州市小倉北区三郎丸3丁目
-
JR日豊本線城野
-
-
-

-
- 土地
- 350万円
-
北九州市八幡西区鳴水町
-
JR鹿児島本線黒崎
-






担当エージェント:盛田 享佑
〈建築条件なし+整形地〉 まずはご相談から始めてみませんか? \複数部門で全国1位受賞店舗/お客様のご要望に沿って土地・ハウスメーカー探しをお手伝いいたします♪