登別市若草町3丁目の土地
掲載情報更新日:2026年04月10日 次回更新予定日:2026年04月24日
- 650万円
-
- 借入ご希望金額
万円 - 借入期間
年 - 借入金利
% - 月々のお支払い金額
円
- 借入ご希望金額
※ 月々のお支払例は目安の試算となりますので、実際の金額とは異なる場合がございます。詳しくは店舗までお問合わせください。
- 登別市若草町3丁目
-
千代の台線『若草中央』 徒歩2分 (約120m)
登別市若草町3丁目土地 | 物件情報
物件の設備
- 電気
- 公営水道
- 公共下水
物件の特徴
- 前道6m以上
- 閑静な住宅街
- 周辺交通量少なめ
- 山が見える
- 建築条件無
物件詳細情報
| 価格 | 650万円 | 坪単価 | 坪6.1万円 |
|---|---|---|---|
| 物件種別 | 土地 | ||
| 所在地 | 北海道登別市若草町3丁目24-9、10 | ||
| アクセス |
|
||
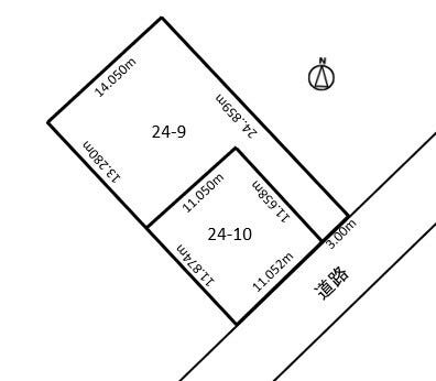
| 土地面積 | 公351.2㎡(106.23坪) | 接道 | 南東側(公道)幅 約6.0m 間口 約14.05m |
| 私道 | セットバック | ||
| 最適用途 | 造成完了時期 | ||
| 地目 | 宅地 | 地勢 | |
| 権利 | 所有権 |
||
| 都市計画 | 市街化区域 |
用途地域 | 1種低層 |
| 建ぺい/容積率 | 50% / 80% | 土地国土法 | |
| 許可番号 | 建築基準法 | ||
| 法令制限 | 法22条区域 | ||
| 小学区 | 若草小学校 徒歩8分 (約600m) | 中学区 | 鷲別中学校 徒歩18分 (約1400m) |
| 現況 | 古家付 | 引渡 | 相談 |
| 建築条件 | 建築条件なし | ||
| その他費用 | |||
| 備考 | 登別市若草町3丁目に土地がでました! 価格変更致しました!!現況渡しの土地になります! 土地2筆のお売り出しとなります!土地面積は、221.19㎡(24番9)、130.01㎡(24番10)と2筆合計351.20㎡ございます。 閑静な住宅街で交通量も少ない地域になります。小学校まで600m! 聞くだけ見るだけOK!! 内覧のご予約・物件詳細やリフォーム・住宅ローンのご相談など…おお問い合わせはハウスドゥ登別 お電話 0143-84-9120/メール towapirie-noboribetu@itg.bcj.ne.jp /ご来店 登別市新生町1丁目18番地12までお気軽にどうぞ!! |
||
| 物件番号 | 4460337 | 取引態様 | 一般媒介 |
取扱店舗情報
| 電話番号 | 0143-84-9120 |
|---|---|
| 所在地 | 〒059-0032 北海道登別市新生町1丁目18-12 |
| 営業時間 | 10:00~17:00 |
| 定休日 | 水曜日、第1・第3日曜日 |
| 宅建免許番号 | 北海道知事 胆振(4)第966号 |
| アクセス | 店舗への地図はこちら |

来店ご予約
北海道登別市で価格が似ている物件はこちら
- 北海道
マイページ物件数 - 6,380件
最近見た物件
-
-

-
- 土地
- 1億6,285万円
-
大分市大字光吉
-
JR豊肥本線敷戸
-
-
-

-
- 土地
- 80万円
-
福山市東村町
-
JR山陽本線松永
-
-
-

-
- 土地
- 1,590万円
-
鹿児島市西伊敷3丁目
-
西伊敷三丁目バス停
-
北海道土地新着物件
-
-

-
- 土地
- 2,930万円
-
恵庭市末広町
-
JR千歳線恵庭駅
-
-
-

-
- 土地
- 1,930万円
-
札幌市北区新琴似五条12丁目
-
JR札沼線新琴似駅
-
-
-

-
- 土地
- 480万円
-
釧路市緑ケ岡2丁目
-
JR根室本線東釧路駅
-
-
-

-
- 土地
- 1,080万円
-
帯広市西十八条南2丁目
-
JR根室本線柏林台駅
-
-
-

-
- 土地
- 1,080万円
-
帯広市西十八条南2丁目
-
JR根室本線柏林台駅
-
-
-

-
- 土地
- 1,770万円
-
河東郡音更町字東和東1線
-
しらかばバス【東通12丁目】停
-
-
-

-
- 土地
- 1,770万円
-
河東郡音更町字東和東1線
-
しらかばバス【東通12丁目】停
-
- お近くの店舗を探す
-
おすすめ物件
-
-

-
- 土地
- 780万円
-
江別市元町
-
JR函館本線高砂
-
-
-

-
- 土地
- 980万円
-
小樽市新光3丁目
-
JR函館本線朝里
-
-
-

-
- 土地
- 300万円
-
石狩郡当別町北栄町
-
JR札沼線当別
-
-
-

-
- 土地
- 75万円
-
紋別郡遠軽町丸瀬布新町
-
JR石北本線丸瀬布
-
-
-

-
- 土地
- 200万円
-
江別市豊幌美咲町
-
JR函館本線豊幌
-
-
-

-
- 土地
- 2,400万円
-
夕張郡長沼町中央南2丁目
-
ジェイアール北海道バス長沼町役場
-
-
-

-
- 土地
- 898万円
-
江別市野幌若葉町
-
JR函館本線大麻
-
-
-

-
- 土地
- 680万円
-
江別市元町
-
JR函館本線高砂
-
-
-

-
- 土地
- 2,150万円
-
札幌市東区北十八条東20丁目
-
札幌市東豊線環状通東
-
-
-

-
- 土地
- 890万円
-
江別市野幌代々木町
-
JR函館本線野幌
-





