姫路市御立中4丁目の中古戸建
掲載情報更新日:2025年11月03日 次回更新予定日:2025年11月17日
- 680万円
-
- 借入ご希望金額
万円 - 借入期間
年 - 借入金利
% - 月々のお支払い金額
円
- 借入ご希望金額
※ 月々のお支払例は目安の試算となりますので、実際の金額とは異なる場合がございます。詳しくは店舗までお問合わせください。
- 姫路市御立中4丁目
-
JR山陽本線『姫路』 バス乗車26分 御立中5丁目 停 徒歩4分 (約320m)
姫路市御立中4丁目一戸建て | 物件情報
物件の設備
- 電気
- 公営水道
- 公共下水
- 都市ガス
物件の特徴
- 南側道路面す
- 2階建
- 即入居可
物件詳細情報
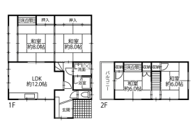
| 価格 | 680万円 | 間取り | 5LDK |
|---|---|---|---|
| 物件種別 | 中古一戸建て | ||
| 所在地 | 兵庫県姫路市御立中4丁目 | ||
| アクセス |
|
||
| 建物面積 | 100.44㎡ | 駐車場 | あり 普通:2台 |
| 築年月 | 1979年(昭和54年)07月築 | ||
| 建物構造 | 木造 2階建 | 工法 | |
| 主要採光 | バルコニー | ||
| 保証・評価 | |||
| リフォーム | |||
| 土地面積 | 公125.83㎡(38.06坪) | 接道 | 南側(私道)幅 約4.7m 間口 約6.20m |
| 私道 | セットバック | ||
| 地目 | 宅地 | 地勢 | |
| 権利 | 所有権 |
||
| 都市計画 | 市街化区域 |
用途地域 | 1種中高 |
| 建ぺい/容積率 | 60% / 200% | 土地国土法 | |
| 許可番号 | 建築基準法 | ||
| 法令制限 | |||
| 小学区 | 安室小学校 徒歩12分 (約940m) | 中学区 | |
| 現況 | 空 | 引渡 | 即 |
| その他費用 | |||
| 周辺環境 | 姫路市立安室小学校 徒歩12分 (約940m) 姫路市立安室中学校 徒歩20分 (約1580m) 姫路市立高丘中学校 徒歩25分 (約2000m) |
||
| 備考 | ご内覧可能です♪ お問い合わせはハウスドゥ姫路花田まで(^▽^)/ TEL 079-263-8520 |
||
| 物件番号 | 4215530 | 取引態様 | 媒介 |
取扱店舗情報
| 電話番号 | 079-263-8520 |
|---|---|
| 所在地 | 〒671-0255 兵庫県姫路市花田町小川6-1 |
| 営業時間 | 9:30~18:30 |
| 定休日 | 水曜日・お盆・年末年始 |
| 宅建免許番号 | 兵庫県知事(5)第451126号 |
| アクセス | 店舗への地図はこちら |

来店ご予約
兵庫県姫路市で価格が似ている物件はこちら
- 兵庫県
マイページ物件数 - 2,859件
最近見た物件
-
-

-
- 中古マンション
- 2,490万円
-
日野市三沢
-
京王線高幡不動
-
-
-

-
- 中古一戸建て
- 3,200万円
-
宇都宮市清原台6丁目
-
宇都宮芳賀ライト線清原地区市民センター前
-
-
-

-
- 中古一戸建て
- 2,380万円
-
鹿児島市玉里団地3丁目
-
玉里団地東バス停
-
兵庫県中古一戸建て新着物件
-
-

-
- 中古一戸建て
- 300万円
-
たつの市龍野町北龍野
-
JR姫新線本竜野駅
-
-
-

-
- 中古一戸建て
- 800万円
-
尼崎市東本町4丁目
-
阪神電鉄本線大物駅
-
-
-

-
- 中古一戸建て
- 880万円
-
加古川市別府町別府
-
山陽電鉄本線別府駅
-
-
-

-
- 中古一戸建て
- 777万円
-
加古川市別府町本町2丁目
-
山陽電鉄本線別府駅
-
-
-

-
- 中古一戸建て
- 1,549万円
-
加古川市野口町良野
-
JR山陽本線加古川駅
-
-
-

-
- 中古一戸建て
- 2,300万円
-
姫路市北原
-
山陽電鉄本線白浜の宮駅
-
-
-

-
- 中古一戸建て
- 1,550万円
-
姫路市北原
-
山陽電鉄本線妻鹿駅
-
- お近くの店舗を探す
-
おすすめ物件
-
-

-
- 中古一戸建て
- 1,580万円
-
姫路市東辻井3丁目
-
JR姫新線播磨高岡
-
-
-

-
- 中古一戸建て
- 1,780万円
-
神戸市須磨区神の谷3丁目
-
神戸市営地下鉄西神山手線名谷
-
-
-

-
- 中古一戸建て
- 1,480万円
-
たつの市御津町朝臣
-
JR山陽本線竜野
-
-
-

-
- 中古一戸建て
- 870万円
-
姫路市白鳥台3丁目
-
JR山陽本線姫路
-
-
-

-
- 中古一戸建て
- 1,848万円
-
西宮市一ケ谷町
-
阪急電鉄甲陽線甲陽園
-
-
-

-
- 中古一戸建て
- 950万円
-
加古川市別府町別府
-
山陽電鉄本線別府
-
-
-

-
- 中古一戸建て
- 4,280万円
-
神戸市灘区篠原北町2丁目
-
阪急電鉄神戸線六甲
-
-
-

-
- 中古一戸建て
- 2,398万円
-
姫路市御立中6丁目
-
JR山陽本線姫路
-
-
-

-
- 中古一戸建て
- 1,680万円
-
伊丹市安堂寺町5丁目
-
阪急電鉄伊丹線稲野
-
-
-

-
- 中古一戸建て
- 930万円
-
姫路市飾磨区阿成下垣内
-
山陽電鉄本線妻鹿
-











