明石市大久保町大窪の中古戸建
掲載情報更新日:2025年10月19日 次回更新予定日:2025年11月02日
- 3,680万円
-
- 借入ご希望金額
万円 - 借入期間
年 - 借入金利
% - 月々のお支払い金額
円
- 借入ご希望金額
※ 月々のお支払例は目安の試算となりますので、実際の金額とは異なる場合がございます。詳しくは店舗までお問合わせください。
- 明石市大久保町大窪
-
JR山陽本線『大久保』 バス乗車12分 神姫バス 山の下 停 徒歩6分 (約480m)
明石市大久保町大窪一戸建て | 物件情報
不動産会社のイメージを変えたい。全国700店舗展開中!不動産はハウスドゥ明石藤江におまかせください!
【2021年築浅/美麗/こだわりの注文住宅】
■即日対応可能
■リビング18帖+開放感たっぷりのワイドバルコニー
■駐車2台OK&収納豊富な間取り
◇おすすめポイント
・家族の会話が弾むリビング階段
・ウォークインクローゼットでスッキリ収納
・カウンターキッチンで家事ラク動線
・トイレ2か所完備で朝の混雑解消!
・生活便利♪キリン堂まで徒歩5分
高丘東小学校 約1500m(徒歩約19分)
高丘中学校 約950m(徒歩約12分)
【ハウスドゥ明石藤江】ご来店サービス♪
♪お客様を駅まで送迎いたします!JR「西明石」「大久保」駅 山陽電鉄線もご相談ください♪
♪ご来店のお客様へウェルカムドリンクのご提供♪ゆっくりと店内でご相談ください♪
どんな小さな事でもご相談ください!エージェントが全力でお手伝い・サポートさせていただきます!
【ハウスドゥ明石藤江】はお客様のより近くにある安心・便利・信頼されるお店づくりを展開中!
【ハウスドゥ明石藤江】はすべての物件情報を公開中!
お問合せはこちらまで →0120-077-712
物件の設備
- オール電化
- 上水道
- 公共下水
- 食器乾燥機
- 食器洗浄乾燥機
- IHクッキングヒータ
- 追焚機能
- 浴室暖房
- 浴室乾燥機
- トイレ2箇所
物件の特徴
- 南向
- 免震構造
- 耐震構造
- 制震構造
- 前道6m以上
- 整備された歩道
- スーパーが近い
- 閑静な住宅街
- 市街地が近い
- 都市近郊
- 2階建
- 耐震基準適合証明書有
- 即入居可
物件詳細情報
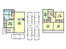
| 価格 | 3,680万円 | 間取り | 4LDK |
|---|---|---|---|
| 物件種別 | 中古一戸建て | ||
| 所在地 | 兵庫県明石市大久保町大窪 | ||
| アクセス |
|
||
| 建物面積 | 公99.77㎡ | 駐車場 | あり 普通:2台 |
| 築年月 | 2021年(令和3年)12月築 | ||
| 建物構造 | 木造 2階建 | 工法 | |
| 主要採光 | 南向 | バルコニー | |
| 保証・評価 | 耐震基準適合証明書 |
||
| リフォーム | |||
| 土地面積 | 公113.84㎡(34.43坪) | 接道 | 北側(公道)幅 約6.0m |
| 私道 | セットバック | ||
| 地目 | 宅地 | 地勢 | |
| 権利 | 所有権 |
||
| 都市計画 | 市街化区域 |
用途地域 | 1種中高 |
| 建ぺい/容積率 | 60% / 200% | 土地国土法 | |
| 許可番号 | 建築基準法 | ||
| 法令制限 | |||
| 小学区 | 高丘東小学校 徒歩19分 (約1500m) | 中学区 | 高丘中学校 徒歩12分 (約950m) |
| 現況 | 空 | 引渡 | 即 |
| その他費用 | |||
| 周辺環境 | コメダ珈琲明石大久保店 徒歩5分 (約340m) 明石山手台郵便局 徒歩4分 (約300m) キリン堂 大久保店 徒歩5分 (約380m) 大久保保育園 徒歩9分 (約650m) ローソン大久保インター南店 徒歩6分 (約440m) ローソン明石大久保町大窪店 徒歩7分 (約560m) 農産物直売所 めぐみの郷 大久保店 徒歩7分 (約550m) 山手幼稚園 徒歩10分 (約740m) コープこうべ コープ大久保 徒歩13分 (約1010m) |
||
| 備考 | □耐震等級3 □食洗器・IHクッキングヒーター・浴室乾燥機つき♪ □関西住宅販売の築極浅の素敵な注文住宅 □閑静な住宅地 □カースペース2台可能(車種制限あり) |
||
| 物件番号 | 4282168 | 取引態様 | 媒介 |
取扱店舗情報
| 電話番号 | 078-962-7712 |
|---|---|
| 所在地 | 〒673-0044 兵庫県明石市藤江927-5 |
| 営業時間 | 10:00~18:00 |
| 定休日 | 水曜日 |
| 宅建免許番号 | 兵庫県知事(1)第401744号 |
| アクセス | 店舗への地図はこちら |

来店ご予約
兵庫県明石市で価格が似ている物件はこちら
- 兵庫県
マイページ物件数 - 2,764件
最近見た物件
-
-

-
- 中古マンション
- 1,580万円
-
札幌市清田区北野一条1丁目
-
札幌市東豊線福住
-
-
-

-
- 中古一戸建て
- 3,780万円
-
明石市大久保町山手台3丁目
-
JR山陽本線大久保
-
-
-

-
- 中古一戸建て
- 2,498万円
-
光市浅江6丁目
-
JR山陽本線光
-
兵庫県中古一戸建て新着物件
-
-

-
- 中古一戸建て
- 790万円
-
姫路市豊富町神谷
-
JR山陽本線姫路駅
-
-
-

-
- 中古一戸建て
- 3,780万円
-
明石市大久保町谷八木
-
山陽電鉄本線藤江駅
-
-
-

-
- 中古一戸建て
- 2,780万円
-
加古川市西条山手2丁目
-
JR加古川線神野駅
-
-
-

-
- 中古一戸建て
- 3,450万円
-
明石市二見町福里
-
JR山陽本線土山駅
-
-
-

-
- 中古一戸建て
- 800万円
-
尼崎市東本町4丁目
-
阪神電鉄本線大物駅
-
-
-

-
- 中古一戸建て
- 3,100万円
-
明石市大久保町松陰
-
JR山陽本線大久保駅
-
-
-

-
- 中古一戸建て
- 1,799万円
-
姫路市大津区長松
-
山陽電鉄網干線平松駅
-
- お近くの店舗を探す
-
おすすめ物件
-
-

-
- 中古一戸建て
- 4,190万円
-
神戸市灘区記田町4丁目
-
阪神電鉄本線石屋川
-
-
-

-
- 中古一戸建て
- 880万円
-
姫路市城見台4丁目
-
JR播但線砥堀
-
-
-

-
- 中古一戸建て
- 550万円
-
尼崎市尾浜町1丁目
-
JR東海道線立花
-
-
-

-
- 中古一戸建て
- 2,180万円
-
加古郡播磨町北本荘1丁目
-
山陽電鉄本線播磨町
-
-
-

-
- 中古一戸建て
- 1,480万円
-
たつの市御津町朝臣
-
JR山陽本線竜野
-
-
-

-
- 中古一戸建て
- 870万円
-
姫路市白鳥台3丁目
-
JR山陽本線姫路
-
-
-

-
- 中古一戸建て
- 2,890万円
-
加古川市別府町新野辺北町2丁目
-
山陽電鉄本線別府
-
-
-

-
- 中古一戸建て
- 580万円
-
加古川市平岡町土山
-
JR山陽本線土山
-
-
-

-
- 中古一戸建て
- 2,280万円
-
神戸市北区山田町小部
-
神戸電鉄有馬線北鈴蘭台
-
-
-

-
- 中古一戸建て
- 1,580万円
-
姫路市東辻井3丁目
-
JR姫新線播磨高岡
-






































担当エージェント:春木 宏友
納得のお住まい購入をお手伝い。より多くの住まい情報をお客様に迅速にお届けし、お住まいをご自由にお選びいただける環境を作り出すよう最善を尽くします。お客様の10年後、20年後の将来を考えたお住まいのご提案を目指します。お住まいのご購入が終わった後も、末永いお付き合いをお約束し誠意を持って対応させていただくことを誓います。全国のネットワークを通じ、情報収集し、お客様に最良のお住まいをご提案いたします。