大津市枝4丁目の中古戸建
掲載情報更新日:2025年12月01日 次回更新予定日:2025年12月15日
- 590万円
-
- 借入ご希望金額
万円 - 借入期間
年 - 借入金利
% - 月々のお支払い金額
円
- 借入ご希望金額
※ 月々のお支払例は目安の試算となりますので、実際の金額とは異なる場合がございます。詳しくは店舗までお問合わせください。
- 大津市枝4丁目
-
JR東海道線『石山』 バス乗車20分 東急団地入口 停 徒歩1分 (約80m)
京阪電鉄石山坂本線『京阪石山』 バス乗車20分 東急団地入口 停 徒歩1分 (約80m)
大津市枝4丁目一戸建て | 物件情報
物件の設備
- 電気
- 上水道
- 公営水道
- 浄化槽
- 個別浄化槽
- プロパンガス
- 個別プロパン
- コンロ二口
- バス
- 浴室に窓
- 室内洗濯機置場
- 洗面所独立
- LDK15畳以上
- 和室
- 全居室6畳以上
- 出窓
- 全居室収納
- シューズボックス
- バルコニー
物件の特徴
- 2沿線利用可
- 小学校徒歩10分以内
- 緑豊かな住宅地
- スーパーが近い
- 閑静な住宅街
- 2階建
物件詳細情報
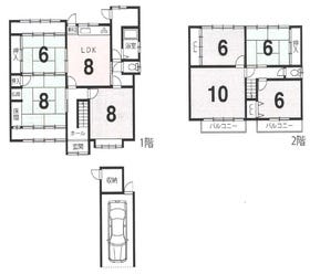
| 価格 | 590万円 | 間取り | 4LDK |
|---|---|---|---|
| 物件種別 | 中古一戸建て | ||
| 所在地 | 滋賀県大津市枝4丁目 | ||
| アクセス |
|
||
| 建物面積 | 97.71㎡ | 駐車場 | あり 普通:1台 |
| 築年月 | 1993年(平成5年)03月築 | ||
| 建物構造 | 木造 2階建 | 工法 | |
| 主要採光 | バルコニー | ||
| 保証・評価 | |||
| リフォーム | |||
| 土地面積 | 公103.01㎡(31.16坪) | 接道 | 北西側(私道)幅 約4.0m 間口 約10.10m |
| 私道 | セットバック | ||
| 地目 | 宅地 | 地勢 | |
| 権利 | 所有権 |
||
| 都市計画 | 市街化区域 |
用途地域 | 1種住居 |
| 建ぺい/容積率 | 60% / 200% | 土地国土法 | |
| 許可番号 | 建築基準法 | ||
| 法令制限 | |||
| 小学区 | 田上小学校 徒歩9分 (約660m) | 中学区 | 田上中学校 徒歩40分 (約3200m) |
| 現況 | 空 | 引渡 | 相談 |
| その他費用 | |||
| 周辺環境 | 田上幼稚園 徒歩11分 (約830m) エフマーケットもみじケ丘店 徒歩3分 (約220m) |
||
| 備考 | ■売主の契約不適合責任免責 ■個別浄化槽のため、定期的な点検とその費用が必要です ■水道配管は私管で所有者は不明です |
||
| 物件番号 | 4298757 | 取引態様 | 媒介 |
取扱店舗情報
ハウスドゥ 家・不動産買取専門店 大津 株式会社マキ不動産販売 店舗詳細ページへ
| 電話番号 | 077-531-0120 |
|---|---|
| 所在地 | 〒520-0821 滋賀県大津市湖城が丘1番13号 マキトラストビル膳所 |
| 営業時間 | 9:00~18:30 |
| 定休日 | 第3火曜日、水曜日 |
| 宅建免許番号 | 滋賀県知事(5)第3019号 |
| アクセス | 店舗への地図はこちら |

来店ご予約
滋賀県大津市で価格が似ている物件はこちら
- 滋賀県
マイページ物件数 - 3,270件
滋賀県中古一戸建て新着物件
- お近くの店舗を探す
-
おすすめ物件
-
-

-
- 中古一戸建て
- 1,780万円
-
米原市本市場
-
JR東海道本線近江長岡
-
-
-

-
- 中古一戸建て
- 1,200万円
-
大津市朝日2丁目
-
JR湖西線小野
-
-
-

-
- 中古一戸建て
- 3,799万円
-
栗東市蜂屋
-
JR草津線手原
-
-
-

-
- 中古一戸建て
- 1,990万円
-
東近江市今堀町
-
近江鉄道本線長谷野
-
-
-

-
- 中古一戸建て
- 1,450万円
-
大津市本宮2丁目
-
JR東海道線膳所
-
-
-

-
- 中古一戸建て
- 3,600万円
-
近江八幡市小船木町
-
JR東海道線近江八幡
-
-
-

-
- 中古一戸建て
- 250万円
-
甲賀市甲賀町小佐治
-
JR草津線寺庄
-
-
-

-
- 中古一戸建て
- 1,880万円
-
大津市堅田1丁目
-
JR湖西線堅田
-
-
-

-
- 中古一戸建て
- 2,498万円
-
大津市比叡辻2丁目
-
JR湖西線比叡山坂本
-
-
-

-
- 中古一戸建て
- 1,750万円
-
大津市朝日2丁目
-
JR湖西線小野
-







