枚方市長尾西町2丁目の中古戸建
掲載情報更新日:2025年10月20日 次回更新予定日:2025年11月03日
- 780万円
-
- 借入ご希望金額
万円 - 借入期間
年 - 借入金利
% - 月々のお支払い金額
円
- 借入ご希望金額
※ 月々のお支払例は目安の試算となりますので、実際の金額とは異なる場合がございます。詳しくは店舗までお問合わせください。
- 枚方市長尾西町2丁目
-
JR片町線『長尾』 バス乗車11分 西長尾 停 徒歩3分 (約240m)
JR片町線『藤阪』 徒歩38分 (約3040m)
京阪本線『枚方市』 車18分(約km)
枚方市長尾西町2丁目一戸建て | 物件情報
南東・北西の2方空きで通風良好♪IHキッチンや浴室窓、カーポート付きで暮らし快適な4DK住宅!
【◇─◇─◇─◇担当者着目ポイント◇─◇─◇─◇】
前後が開けた立地で陽当たり・風通しともに良好!IHコンロ付きシステムキッチンや浴室に窓、温水洗浄便座など日常に嬉しい設備が充実しています。カーポート付き駐車スペースはハイルーフ車も対応可。来客用Pもあり、訪問時も安心。小学校やスーパーも徒歩圏で、住環境と利便性のバランスが取れた一邸です
長尾駅(JR片町線)バス停 西長尾 乗車 11分バス停まで 徒歩 3分 240 m
西長尾小学校(徒歩約9分・約733m)
長尾西中学校(徒歩約16分・約1,276m)
◇─◇─◇─◇周辺環境◇─◇─◇─◇
【スーパー】:万代 長尾西店(徒歩約4分・約300m)
【コンビニ】:ミニストップ 長尾谷町店(徒歩約3分・約210m)
【コンビニ】:デイリーヤマザキ 枚方長尾北町店(徒歩約8分・約585m
物件の設備
- 電気
- 上水道
- 下水道
- 都市ガス
- IHクッキングヒータ
- システムキッチン
- ユニットバス
- 浴室に窓
- 温水洗浄便座
- 室内洗濯機置場
- 洗面所独立
- エアコン
- 両面バルコニー
物件の特徴
- 小学校徒歩10分以内
- スーパーが近い
- 閑静な住宅街
- 周辺交通量少なめ
- 市街地が近い
- 都市近郊
- 眺望良好
- 通風良好
- 陽当り良好
- 2階建
- 即入居可
物件詳細情報
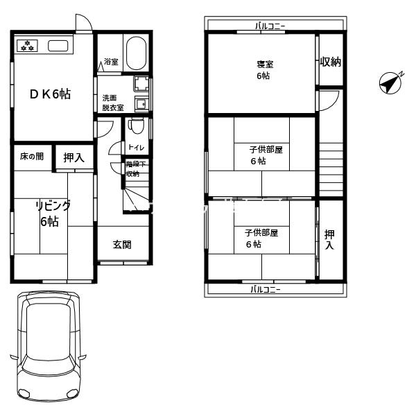
| 価格 | 780万円 | 間取り | 4DK |
|---|---|---|---|
| 物件種別 | 中古一戸建て | ||
| 所在地 | 大阪府枚方市長尾西町2丁目 | ||
| アクセス |
|
||
| 建物面積 | 公73.7㎡ | 駐車場 | あり 普通:1台 |
| 築年月 | 1979年(昭和54年)11月築 | ||
| 建物構造 | 木造 2階建 | 工法 | |
| 主要採光 | 南東向 | バルコニー | |
| 保証・評価 | |||
| リフォーム | |||
| 土地面積 | 公74.6㎡(22.56坪) | 接道 | 北東側(公道)幅 約4.7m |
| 私道 | セットバック | ||
| 地目 | 宅地 | 地勢 | |
| 権利 | 所有権 |
||
| 都市計画 | 市街化区域 |
用途地域 | 1種低層 |
| 建ぺい/容積率 | 50% / 100% | 土地国土法 | |
| 許可番号 | 建築基準法 | ||
| 法令制限 | |||
| 小学区 | 西長尾小学校 徒歩10分 (約733m) | 中学区 | 長尾西中学校 徒歩16分 (約1276m) |
| 現況 | 空 | 引渡 | 即 |
| その他費用 | |||
| 周辺環境 | デイリーヤマザキ 枚方長尾北町店 徒歩10分 (約780m) 枚方市立長尾中学校 徒歩11分 (約820m) 枚方市立長尾小学校 徒歩13分 (約1000m) セブン-イレブン 枚方長尾荒阪2丁目店 徒歩17分 (約1350m) フレスコ 長尾店 徒歩21分 (約1650m) 関西みらい銀行 長尾支店 徒歩22分 (約1690m) 枚方信用金庫 長尾支店 徒歩21分 (約1620m) ローソン 枚方長尾荒阪一丁目店 徒歩21分 (約1670m) 池田泉州銀行 枚方北支店 徒歩21分 (約1620m) フレスコ藤阪店 徒歩23分 (約1790m) |
||
| 備考 | |||
| 物件番号 | 4330360 | 取引態様 | 媒介 |
取扱店舗情報
ハウスドゥ 枚方中宮 株式会社ku-Design 店舗詳細ページへ
| 電話番号 | 072-845-5585 |
|---|---|
| 所在地 | 〒573-1196 大阪府枚方市中宮本町11-12 |
| 営業時間 | 9:30~18:00 |
| 定休日 | 火曜日・水曜日 ※事前予約によりご対応可能 |
| 宅建免許番号 | 大阪府知事(1)第63778号 |
| アクセス | 店舗への地図はこちら |

来店ご予約
大阪府枚方市で価格が似ている物件はこちら
- 大阪府
マイページ物件数 - 14,763件
大阪府中古一戸建て新着物件
-
-

-
- 中古一戸建て
- 380万円
-
門真市島頭3丁目
-
京阪本線大和田駅
-
-
-

-
- 中古一戸建て
- 1,780万円
-
高槻市緑が丘1丁目
-
JR東海道線高槻駅
-
-
-

-
- 中古一戸建て
- 2,500万円
-
吹田市千里山東1丁目
-
阪急電鉄千里線関大前駅
-
-
-

-
- 中古一戸建て
- 2,780万円
-
大阪市西淀川区佃3丁目
-
阪神電鉄本線千船駅
-
-
-

-
- 中古一戸建て
- 1,680万円
-
泉南郡熊取町つばさが丘北2丁目
-
JR阪和線熊取駅
-
-
-

-
- 中古一戸建て
- 1億5,000万円
-
豊中市服部南町2丁目
-
阪急電鉄宝塚線服部天神駅
-
-
-

-
- 中古一戸建て
- 1,757万円
-
豊中市螢池西町1丁目
-
阪急電鉄宝塚線蛍池駅
-
- お近くの店舗を探す
-
おすすめ物件
-
-

-
- 中古一戸建て
- 2,200万円
-
川西市鼓が滝3丁目
-
能勢電鉄鼓滝
-
-
-

-
- 中古一戸建て
- 2,490万円
-
八尾市南本町7丁目
-
JR関西本線八尾
-
-
-

-
- 中古一戸建て
- 2,980万円
-
八尾市八尾木3丁目
-
JR関西本線志紀
-
-
-

-
- 中古一戸建て
- 2,980万円
-
大阪市住吉区山之内4丁目
-
JR阪和線杉本町
-
-
-

-
- 中古一戸建て
- 398万円
-
泉佐野市長滝
-
JR阪和線長滝
-
-
-

-
- 中古一戸建て
- 3,280万円
-
大阪市西成区鶴見橋2丁目
-
JR大阪環状線今宮
-
-
-

-
- 中古一戸建て
- 1,780万円
-
堺市中区伏尾
-
南海電鉄泉北線泉ケ丘
-
-
-

-
- 中古一戸建て
- 3,650万円
-
大阪市住吉区万代5丁目
-
南海電鉄高野線帝塚山
-
-
-

-
- 中古一戸建て
- 1,880万円
-
泉大津市虫取町2丁目
-
南海電鉄本線泉大津
-
-
-

-
- 中古一戸建て
- 2,600万円
-
八尾市緑ヶ丘5丁目
-
近鉄大阪線近鉄八尾
-
























南東・北西の2方が道路に接した角地で、開放感と通風に恵まれた4DKの戸建です。キッチンにはIHコンロ付きのシステムキッチン、浴室には窓や温水洗浄便座も備わっており、設備面も充実。駐車スペースにはカーポートが設けられており、ハイルーフ車も駐車可能です。さらに来客用の駐車スペースもあり、お客様を招きやすい点も魅力のひとつ。周辺にはスーパーやコンビニ、小学校なども揃っており、住環境の整った立地です。築年数は経過していますが、その分ゆとりある間取りが確保されており、リフォーム次第で住み心地のよい住まいに。子育て中のご家族から静かに暮らしたい方まで、幅広いニーズに応える物件です。ぜひ一度ご覧ください!
【当日予約も大歓迎】弊社は毎日新物件の情報を入荷しています。 水面下物件も多数!いつ来ても新情報がいっぱいです! 是非『0120-395-585』までお問合せ下さい!