倉敷市連島町鶴新田の中古戸建
掲載情報更新日:2025年10月21日 次回更新予定日:2025年11月04日
- 2,380万円
-
- 借入ご希望金額
万円 - 借入期間
年 - 借入金利
% - 月々のお支払い金額
円
- 借入ご希望金額
※ 月々のお支払例は目安の試算となりますので、実際の金額とは異なる場合がございます。詳しくは店舗までお問合わせください。
- 倉敷市連島町鶴新田
-
水島臨海鉄道『水島』 徒歩37分 (約2960m)
倉敷市連島町鶴新田一戸建て | 物件情報
★遠出の前日にも準備万端でのぞめる自動車用充電設備敷設★
更に家族それぞれで車を所有したいときに便利な駐車場3台分だから、身内や友人グループを気軽に呼ぶことができます。
駐車場3台分あり(車種・駐車方法による)
瑕疵保険検査基準に適合
瑕疵保険(国交省指定)による保証付
保険期間:5年
保証範囲:構造躯体、雨漏り、給排水管路、シロアリ
保険料:買主負担なし
物件の設備
- 電気
- 上水道
- 公営水道
- 下水道
- 公共下水
- 都市ガス
- コンロ三口
- バス1坪以上
- トイレ2箇所
- 室内洗濯機置場
- 洗髪洗面化粧台
- 洗面所独立
- 太陽光発電システム
- EV車充電設備
- モニタ付インターホン
- 複層ガラス
- クローゼット
- 全居室収納
物件の特徴
- 前道6m以上
- 2階建
物件詳細情報
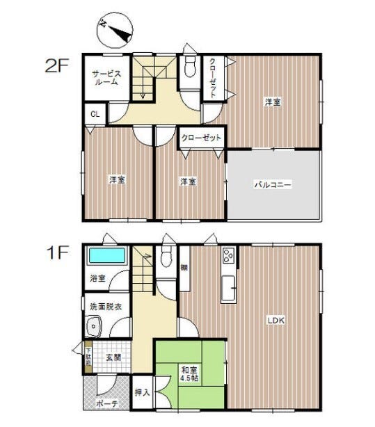
| 価格 | 2,380万円 | 間取り | 4LDK+S |
|---|---|---|---|
| 物件種別 | 中古一戸建て | ||
| 所在地 | 岡山県倉敷市連島町鶴新田 | ||
| アクセス |
|
||
| 建物面積 | 公101.25㎡ | 駐車場 | あり |
| 築年月 | 2021年(令和3年)01月築 | ||
| 建物構造 | 木造 2階建 | 工法 | |
| 主要採光 | 南西向 | バルコニー | |
| 保証・評価 | |||
| リフォーム | |||
| 土地面積 | 公162.36㎡(49.11坪) | 接道 | 南西側(公道)幅 約6.0m 間口 約10.50m |
| 私道 | セットバック | ||
| 地目 | 宅地 | 地勢 | 平坦 |
| 権利 | 所有権 |
||
| 都市計画 | 市街化区域 |
用途地域 | 1種住居 |
| 建ぺい/容積率 | 60% / 200% | 土地国土法 | |
| 許可番号 | 建築基準法 | ||
| 法令制限 | |||
| 小学区 | 連島南小学校 徒歩8分 (約575m) | 中学区 | 連島南中学校 徒歩8分 (約591m) |
| 現況 | 空 | 引渡 | 相談 |
| その他費用 | |||
| 周辺環境 | 水島駅 徒歩42分 (約3330m) 倉敷市立連島南小学校 徒歩6分 (約430m) 倉敷市立連島南中学校 徒歩7分 (約510m) 倉敷市立連島南幼稚園 徒歩5分 (約360m) 幼保連携型認定こども園 めばえ保育園 徒歩8分 (約600m) ニシナフードバスケット連島南店 徒歩7分 (約510m) セブンイレブン倉敷連島鶴新田店 徒歩5分 (約380m) くすりのレデイ鶴新田店 徒歩2分 (約120m) 倉敷リバーサイド病院 徒歩12分 (約890m) ヤマダ電機テックランド倉敷神田店 徒歩27分 (約2110m) |
||
| 備考 | ★遠出の前日にも準備万端でのぞめる自動車用充電設備敷設★ 更に家族それぞれで車を所有したいときや、来客時に便利な駐車場3台分あり!(車種・駐車方法による) 瑕疵保険検査基準に適合 瑕疵保険(国交省指定)による保証付 保険期間:5年 保証範囲:構造躯体、雨漏り、給排水管路、シロアリ 保険料:買主負担なし |
||
| 物件番号 | 4341444 | 取引態様 | 媒介 |
取扱店舗情報
ハウスドゥ 倉敷駅東 株式会社アールイープロジェクト 店舗詳細ページへ
| 電話番号 | 086-424-6400 |
|---|---|
| 所在地 | 〒710-0003 岡山県倉敷市平田681-4 |
| 営業時間 | 9:00~18:00 |
| 定休日 | 水曜日、年末年始 |
| 宅建免許番号 | 岡山県知事(2)第5855号 |
| アクセス | 店舗への地図はこちら |

来店ご予約
岡山県倉敷市で価格が似ている物件はこちら
- 岡山県
マイページ物件数 - 4,334件
最近見た物件
-
-

-
- 中古一戸建て
- 330万円
-
足利市伊勢町2丁目
-
JR両毛線足利
-
-
-

-
- 中古マンション
- 1,180万円
-
豊中市上野西4丁目
-
大阪モノレール少路
-
-
-

-
- 中古マンション
- 3,780万円
-
葛飾区お花茶屋1丁目
-
京成本線お花茶屋
-
岡山県中古一戸建て新着物件
-
-

-
- 中古一戸建て
- 500万円
-
倉敷市中畝2丁目
-
水島臨海鉄道水島駅
-
-
-

-
- 中古一戸建て
- 3,280万円
-
倉敷市玉島中央町1丁目
-
JR山陽本線新倉敷駅
-
-
-

-
- 中古一戸建て
- 1,980万円
-
小田郡矢掛町江良
-
井原鉄道矢掛駅
-
-
-

-
- 中古一戸建て
- 2,500万円
-
高梁市落合町阿部
-
JR伯備線備中高梁駅
-
-
-

-
- 中古一戸建て
- 480万円
-
加賀郡吉備中央町粟井谷
-
JR津山線福渡駅
-
-
-

-
- 中古一戸建て
- 1,298万円
-
岡山市中区藤崎
-
JR山陽本線岡山駅
-
-
-

-
- 中古一戸建て
- 2,280万円
-
倉敷市児島元浜町
-
JR本四備讃線児島駅
-
- お近くの店舗を探す
-
おすすめ物件
-
-

-
- 中古一戸建て
- 350万円
-
久米郡美咲町宮山
-
JR姫新線美作大崎
-
-
-

-
- 中古一戸建て
- 1,899万円
-
総社市泉
-
JR吉備線東総社
-
-
-

-
- 中古一戸建て
- 1,600万円
-
岡山市南区新保
-
JR宇野線備前西市
-
-
-

-
- 中古一戸建て
- 1,375万円
-
岡山市中区四御神
-
JR山陽本線東岡山
-
-
-

-
- 中古一戸建て
- 980万円
-
倉敷市真備町箭田
-
井原鉄道吉備真備
-
-
-

-
- 中古一戸建て
- 700万円
-
赤磐市河田原
-
JR山陽本線熊山
-
-
-

-
- 中古一戸建て
- 3,099万円
-
倉敷市二日市
-
JR山陽本線倉敷
-
-
-

-
- 中古一戸建て
- 1,000万円
-
倉敷市西坂
-
JR山陽本線倉敷
-
-
-

-
- 中古一戸建て
- 2,350万円
-
岡山市北区宿
-
JR津山線備前原
-
-
-

-
- 中古一戸建て
- 3,236万円
-
岡山市北区神田町2丁目
-
岡電・両備バス岡南小学校前 停
-















