倉敷市連島町鶴新田の中古戸建
掲載情報更新日:2026年01月20日 次回更新予定日:2026年02月03日
- 2,380万円
-
- 借入ご希望金額
万円 - 借入期間
年 - 借入金利
% - 月々のお支払い金額
円
- 借入ご希望金額
※ 月々のお支払例は目安の試算となりますので、実際の金額とは異なる場合がございます。詳しくは店舗までお問合わせください。
- 倉敷市連島町鶴新田
-
水島臨海鉄道『水島』 徒歩37分 (約2960m)
倉敷市連島町鶴新田一戸建て | 物件情報
物件の設備
- 公営水道
- 下水道
- 都市ガス
物件の特徴
- 前道6m以上
- 2階建
- 即入居可
物件詳細情報
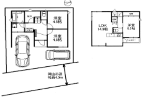
| 価格 | 2,380万円 | 間取り | 4LDK+S |
|---|---|---|---|
| 物件種別 | 中古一戸建て | ||
| 所在地 | 岡山県倉敷市連島町鶴新田 | ||
| アクセス |
|
||
| 建物面積 | 公101.25㎡ | 駐車場 | あり 普通:3台 |
| 築年月 | 2021年(令和3年)01月築 | ||
| 建物構造 | 木造 軸組工法 2階建 | 工法 | |
| 主要採光 | バルコニー | ||
| 保証・評価 | |||
| リフォーム | |||
| 土地面積 | 公162.36㎡(49.11坪) | 接道 | 南西側(公道)幅 約6.0m |
| 私道 | セットバック | ||
| 地目 | 宅地 | 地勢 | 平坦 |
| 権利 | 所有権 |
||
| 都市計画 | 市街化区域 |
用途地域 | 1種住居 |
| 建ぺい/容積率 | 60% / 200% | 土地国土法 | |
| 許可番号 | 建築基準法 | ||
| 法令制限 | |||
| 小学区 | 連島南小学校 徒歩8分 (約600m) | 中学区 | 連島南中学校 徒歩12分 (約900m) |
| 現況 | 空 | 引渡 | 即 |
| その他費用 | |||
| 周辺環境 | くすりのレディ 鶴新田店 徒歩3分 (約210m) ニシナフードバスケット連島南店 徒歩5分 (約370m) 連島南小学校 徒歩8分 (約570m) 三宅内科クリニック 徒歩8分 (約580m) 連島南中学校 徒歩10分 (約730m) 浅桐産婦人科 徒歩11分 (約810m) 倉敷中央病院リバーサイド 徒歩10分 (約790m) ザ・ビック連島店 徒歩14分 (約1110m) ホームセンターコーナン連島店 徒歩15分 (約1200m) 山陽マルナカ連島店 徒歩16分 (約1280m) |
||
| 備考 | □南向きのすっきりとしたお家です □屋根付きバルコニー(約6帖)で雨でも大丈夫 □カーポートの屋根に太陽光発電(4.4kW) |
||
| 物件番号 | 4457163 | 取引態様 | 媒介 |
取扱店舗情報
ハウスドゥ 倉敷中央 株式会社ネットワーク21 店舗詳細ページへ
| 電話番号 | 086-424-5400 |
|---|---|
| 所在地 | 〒710-0837 岡山県倉敷市沖新町2-5 |
| 営業時間 | 10:00-19:00 |
| 定休日 | 毎週 水曜日 |
| 宅建免許番号 | 岡山県知事(4)第5175号 |
| アクセス | 店舗への地図はこちら |

来店ご予約
岡山県倉敷市で価格が似ている物件はこちら
- 岡山県
マイページ物件数 - 4,485件
最近見た物件
-
-

-
- 土地
- 2,010万円
-
宇都宮市滝の原3丁目
-
JR日光線鶴田
-
-
-

-
- 中古マンション
- 1,780万円
-
名古屋市港区東蟹田
-
近鉄名古屋線戸田
-
-
-

-
- 新築一戸建て
- 4,380万円
-
広島市南区宇品東7丁目
-
広島電鉄宇品線宇品四丁目
-
岡山県中古一戸建て新着物件
-
-

-
- 中古一戸建て
- 255万円
-
加賀郡吉備中央町豊岡下
-
JR津山線福渡駅
-
-
-

-
- 中古一戸建て
- 1,880万円
-
岡山市中区今谷
-
宇野バス兼基
-
-
-

-
- 中古一戸建て
- 2,360万円
-
総社市中央2丁目
-
JR伯備線総社駅
-
-
-

-
- 中古一戸建て
- 2,580万円
-
岡山市中区平井5丁目
-
岡山電軌東山本線東山岡電ミュージアム駅
-
-
-

-
- 中古一戸建て
- 2,650万円
-
倉敷市安江
-
JR山陽本線倉敷駅
-
-
-

-
- 中古一戸建て
- 1,980万円
-
倉敷市八王寺町
-
JR山陽本線倉敷駅
-
-
-

-
- 中古一戸建て
- 1,480万円
-
岡山市中区福泊
-
両備バス「福泊」バス停留所
-
- お近くの店舗を探す
-
おすすめ物件
-
-

-
- 中古一戸建て
- 2,580万円
-
倉敷市児島赤崎4丁目
-
JR本四備讃線児島
-
-
-

-
- 中古一戸建て
- 350万円
-
久米郡美咲町宮山
-
JR姫新線美作大崎
-
-
-

-
- 中古一戸建て
- 300万円
-
倉敷市児島味野5丁目
-
JR本四備讃線児島
-
-
-

-
- 中古一戸建て
- 100万円
-
岡山市北区建部町福渡
-
JR津山線福渡
-
-
-

-
- 中古一戸建て
- 3,236万円
-
岡山市北区神田町2丁目
-
岡電・両備バス岡南小学校前 停
-
-
-

-
- 中古一戸建て
- 2,650万円
-
倉敷市白楽町
-
JR山陽本線倉敷
-
-
-

-
- 中古一戸建て
- 1,350万円
-
総社市宿
-
JR吉備線備中高松
-
-
-

-
- 中古一戸建て
- 2,850万円
-
倉敷市広江7丁目
-
JR本四備讃線木見
-
-
-

-
- 中古一戸建て
- 1,000万円
-
倉敷市児島小川7丁目
-
JR本四備讃線児島
-
-
-

-
- 中古一戸建て
- 2,390万円
-
高梁市川上町臘数
-
JR伯備線備中高梁
-


