宮崎市大字赤江の中古戸建
掲載情報更新日:2025年10月24日 次回更新予定日:2025年11月07日
- 980万円
- 
                    - 借入ご希望金額
 万円
-  借入期間
 年
-  借入金利
 %
-  月々のお支払い金額
 円
 
- 借入ご希望金額
※ 月々のお支払例は目安の試算となりますので、実際の金額とは異なる場合がございます。詳しくは店舗までお問合わせください。
- 宮崎市大字赤江
- 
                    JR日南線『田吉』 徒歩27分 (約2120m)
 JR日豊本線『南宮崎』 徒歩44分 (約3460m)
 JR日南線『南方』 徒歩56分 (約4470m)
 
宮崎市大字赤江一戸建て | 物件情報
物件の特徴
- 2階建
物件詳細情報
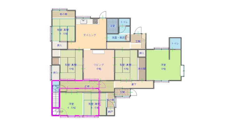
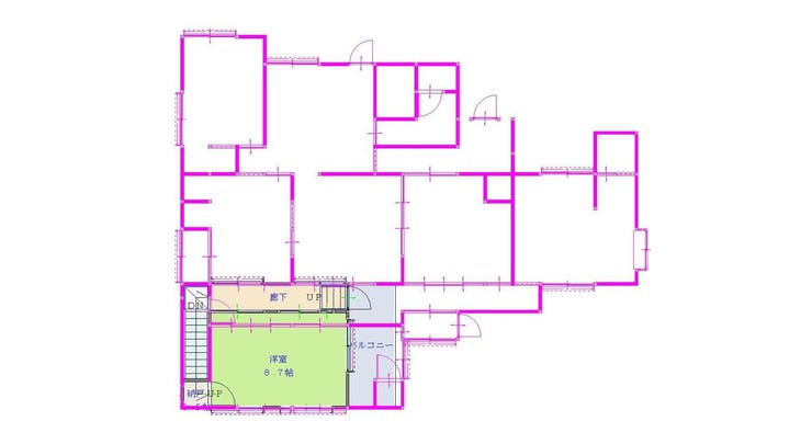
| 価格 | 980万円 | 間取り | 8DK | 
|---|---|---|---|
| 物件種別 | 中古一戸建て | ||
| 所在地 | 宮崎県宮崎市大字赤江 | ||
| アクセス | 
 | ||
| 建物面積 | 公166.67㎡ | 駐車場 | あり 普通:1台 | 
| 築年月 | 1976年(昭和51年)05月築 | ||
| 建物構造 | 木造 瓦葺き 2階建 | 工法 | |
| 主要採光 | バルコニー | ||
| 保証・評価 | |||
| リフォーム | |||
| 土地面積 | 公246.96㎡(74.70坪) | 接道 | 南東側幅 約4.5m | 
| 私道 | セットバック | ||
| 地目 | 宅地 | 地勢 | |
| 権利 | 所有権 | ||
| 都市計画 | 市街化区域 | 用途地域 | 工業 | 
| 建ぺい/容積率 | 60% / 200% | 土地国土法 | |
| 許可番号 | 建築基準法 | ||
| 法令制限 | |||
| 小学区 | 赤江小学校 徒歩28分 (約2220m) | 中学区 | 赤江東中学校 徒歩24分 (約1880m) | 
| 現況 | 空 | 引渡 | 相談 | 
| その他費用 | |||
| 周辺環境 | セブンイレブン 宮崎飛江田 徒歩8分 (約620m) 宮崎空港駅 徒歩48分 (約3840m) セブンイレブン 宮崎田吉店 徒歩20分 (約1590m) 赤江東中学校 徒歩24分 (約1880m) 田吉駅 徒歩27分 (約2120m) Foodaly 赤江店 徒歩26分 (約2060m) コスモス 赤江店 徒歩25分 (約1960m) 赤江小学校 徒歩28分 (約2220m) ダイレックス 赤江店 徒歩33分 (約2640m) タイヨー 赤江店 徒歩29分 (約2260m) | ||
| 備考 | |||
| 物件番号 | 4359228 | 取引態様 | 媒介 | 
取扱店舗情報
| 電話番号 | 0985-86-7336 | 
|---|---|
| 所在地 | 〒889-1607 宮崎県宮崎市清武町加納3丁目16 メモワールII101号室 | 
| 営業時間 | 9:00~20:00 | 
| 定休日 | 不定休 | 
| 宅建免許番号 | 宮崎県知事(1)第4995号 | 
| アクセス | 店舗への地図はこちら | 

来店ご予約
宮崎県宮崎市で価格が似ている物件はこちら
- 宮崎県
 マイページ物件数
- 1,642件
最近見た物件
- 
                        - 
									                                     
- 
                                - 中古マンション
- 3,698万円
- 
                                        
                                            安芸郡府中町柳ケ丘 
- 
                                        JR呉線向洋 
 
 
- 
									                                    
- 
                        - 
									                                     
- 
                                - 中古マンション
- 1,180万円
- 
                                        
                                            一宮市北方町北方字宝江新田砂越 
- 
                                        名鉄名古屋本線木曽川堤 
 
 
- 
									                                    
- 
                        - 
									                                     
- 
                                - 中古一戸建て
- 770万円
- 
                                        
                                            鹿児島市光山1丁目 
- 
                                        JR指宿枕崎線坂之上 
 
 
- 
									                                    
宮崎県中古一戸建て新着物件
- お近くの店舗を探す
- 
            
            
            
おすすめ物件
- 
				- 
														 
- 
						- 中古一戸建て
- 650万円
- 
								
									宮崎市佐土原町東上那珂 
- 
								野久尾バス停 
 
 
- 
														
- 
				- 
														 
- 
						- 中古一戸建て
- 1,870万円
- 
								
									宮崎市大字小松 
- 
								JR日豊本線宮崎神宮 
 
 
- 
														
- 
				- 
														 
- 
						- 中古一戸建て
- 2,300万円
- 
								
									宮崎市学園木花台南3丁目 
- 
								JR日南線木花 
 
 
- 
														
- 
				- 
														 
- 
						- 中古一戸建て
- 1,600万円
- 
								
									日南市時任町 
- 
								JR日南線飫肥 
 
 
- 
														
- 
				- 
														 
- 
						- 中古一戸建て
- 1,550万円
- 
								
									宮崎市堀川町 
- 
								JR日豊本線宮崎 
 
 
- 
														
- 
				- 
														 
- 
						- 中古一戸建て
- 700万円
- 
								
									日南市南郷町中村乙 
- 
								JR日南線南郷 
 
 
- 
														
- 
				- 
														 
- 
						- 中古一戸建て
- 1,350万円
- 
								
									宮崎市清武町今泉丙 
- 
								JR日豊本線清武 
 
 
- 
														
- 
				- 
														 
- 
						- 中古一戸建て
- 1,390万円
- 
								
									宮崎市大塚町小原田 
- 
								JR日豊本線宮崎 
 
 
- 
														
- 
				- 
														 
- 
						- 中古一戸建て
- 3,600万円
- 
								
									宮崎市高岡町飯田3丁目 
- 
								JR日豊本線宮崎 
 
 
- 
														
- 
				- 
														 
- 
						- 中古一戸建て
- 1,990万円
- 
								
									宮崎市吉村町曽師前 
- 
								JR日豊本線宮崎 
 
 
- 
														
 
     
                         
                         
                         
                    







 
                




 
                 
             
                 
                    

 
                                            
 
                                             
                                             
                                             
                                             
                                             
                                             
                                             
                                             
                                             
                                             
                                             
                                             
                                             
                                             
                                             
                                             
                                             
                                             
                                             
                                             
                                             
                                             
                                             
                                             
                                             
                                             
                                             
                                     
                                             
                                            




 
						 
						