宮崎市瀬頭1丁目の中古戸建
掲載情報更新日:2025年11月18日 次回更新予定日:2025年12月02日
- 2,480万円
-
- 借入ご希望金額
万円 - 借入期間
年 - 借入金利
% - 月々のお支払い金額
円
- 借入ご希望金額
※ 月々のお支払例は目安の試算となりますので、実際の金額とは異なる場合がございます。詳しくは店舗までお問合わせください。
- 宮崎市瀬頭1丁目
-
JR日豊本線『宮崎』 徒歩14分 (約1090m)
JR日豊本線『南宮崎』 徒歩21分 (約1630m)
JR日豊本線『宮崎神宮』 徒歩48分 (約3800m)
『東瀬頭バス停』 徒歩2分 (約89m)
宮崎市瀬頭1丁目一戸建て | 物件情報
\平屋/《宮崎駅まで徒歩14分》お気軽にお問い合わせください♪
※マウスを乗せると画像が切り替わります。
▼オススメポイント
◎アミュプラザまで徒歩13分
◎スーパーやコンビニに近く、毎日のお買い物に便利です。
◎落ち着く和室あり
▼立地
◎宮崎小学校…徒歩7分(550m)
◎宮崎中学校…徒歩7分(520m)
◎ローソン永楽町店…徒歩5分(400m)
◎ナガノヤ 瀬頭店…徒歩5分(400m)
◆◇当店について◇◆
〇不動産売買仲介専門FCで
店舗数第1位のハウスドゥ加盟店です
安心してご相談ください
■弊社サービスご案内
〇資金計画の無料相談
〇ハウスメーカー・工務店のご紹介
〇オプション、リフォーム、太陽光発電
のお見積もりから施工まで
〇保険の加入や引越しの段取り
物件の設備
- 公営水道
- 下水道
- 都市ガス
- 浄水器
- 和室
- 全居室6畳以上
- フローリング
- シューズボックス
物件の特徴
- 駅まで平坦
- 市街地が近い
- 陽当り良好
- 平坦地
物件詳細情報
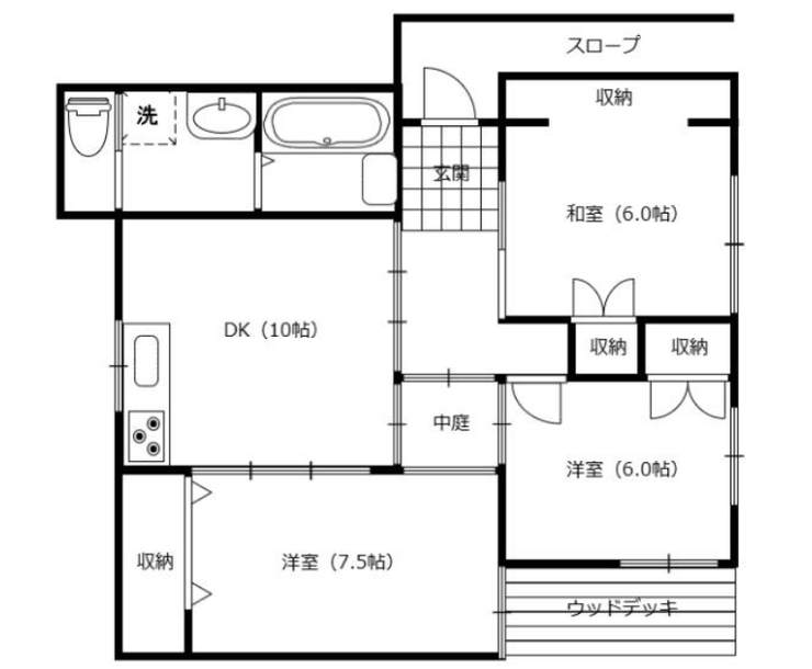
| 価格 | 2,480万円 | 間取り | 3DK |
|---|---|---|---|
| 物件種別 | 中古一戸建て | ||
| 所在地 | 宮崎県宮崎市瀬頭1丁目 | ||
| アクセス |
|
||
| 建物面積 | 72.29㎡ | 駐車場 | あり 普通:3台 |
| 築年月 | 2009年(平成21年)11月築 | ||
| 建物構造 | 木造 1階建 | 工法 | |
| 主要採光 | バルコニー | ||
| 保証・評価 | |||
| リフォーム | |||
| 土地面積 | 175.87㎡(53.20坪) | 接道 | 北側(公道)幅 約5.0m 南東側(公道)幅 約3.5m |
| 私道 | セットバック | ||
| 地目 | 宅地 | 地勢 | |
| 権利 | 所有権 |
||
| 都市計画 | 市街化区域 |
用途地域 | 2種住居 |
| 建ぺい/容積率 | 60% / 200% | 土地国土法 | |
| 許可番号 | 建築基準法 | ||
| 法令制限 | |||
| 小学区 | 宮崎小学校 徒歩7分 (約550m) | 中学区 | 宮崎中学校 徒歩7分 (約520m) |
| 現況 | 空 | 引渡 | 相談 |
| その他費用 | |||
| 周辺環境 | ローソン永楽町店 徒歩5分 (約400m) セブンイレブン宮崎吾妻町店 徒歩6分 (約440m) 宮崎中学校 徒歩7分 (約520m) 宮崎小学校 徒歩7分 (約550m) 宮崎学園高等学校 徒歩13分 (約970m) みどり幼稚園 徒歩13分 (約1040m) ファミリーマート宮崎学園前店 徒歩14分 (約1090m) アミュプラザみやざき 徒歩13分 (約990m) ほっかほっか亭昭和店 徒歩13分 (約980m) 宮崎駅 徒歩14分 (約1090m) |
||
| 備考 | |||
| 物件番号 | 4433556 | 取引態様 | 媒介 |
取扱店舗情報
| 電話番号 | 0985-66-0753 |
|---|---|
| 所在地 | 〒880-0872 宮崎県宮崎市永楽町17 |
| 営業時間 | 9:00~18:00 |
| 定休日 | 水曜日、年末年始 |
| 宅建免許番号 | 宮崎県知事(1)第5078号 |
| アクセス | 店舗への地図はこちら |

来店ご予約
宮崎県宮崎市で価格が似ている物件はこちら
![]()
![]()
-
- 中古一戸建て 2023.06.17
-
-
- 2,380万円
-
宮崎市佐土原町下那珂
-
JR日豊本線「佐土原駅」まで徒歩15分
- 5DK
-
-
- 中古一戸建て 2024.05.31
-
-
- 2,380万円
-
宮崎市生目台西5丁目
-
JR日豊本線「南宮崎駅」まで徒歩73分
- 4LDK
-
-
- 中古一戸建て 2024.06.03
-
-
- 2,550万円
-
宮崎市太田2丁目
-
JR日豊本線「南宮崎駅」まで徒歩10分
- 3DK
-
-
- 中古一戸建て 2024.07.04
-
-
- 2,399万円
-
宮崎市大字恒久
-
JR日豊本線「南宮崎駅」まで徒歩15分
- 3LDK
-
-
- 中古一戸建て 2024.07.04
-
-
- 2,399万円
-
宮崎市大字恒久
-
JR日豊本線「南宮崎駅」まで徒歩15分
- 3LDK
-
-
- 中古一戸建て 2024.07.05
-
-
- 2,500万円
-
宮崎市大字赤江
-
JR日南線「田吉駅」まで徒歩20分
- 3LDK
-
-
- 中古一戸建て 2024.07.19
-
-
- 2,480万円
-
宮崎市大字赤江
-
JR日南線「田吉駅」まで徒歩30分
- 4LDK+S
-
-
- 中古一戸建て 2024.08.01
-
-
- 2,530万円
-
宮崎市清武町あさひ1丁目
-
JR日豊本線「加納駅」まで徒歩11分
- 4LDK
-
-
- 中古一戸建て 2024.08.16
-
-
- 2,530万円
-
宮崎市清武町あさひ1丁目
-
JR日豊本線「加納駅」まで徒歩11分
- 4LDK
-
-
- 中古一戸建て 2024.08.27
-
-
- 2,480万円
-
宮崎市大塚町乱橋
-
JR日豊本線「南宮崎駅」まで徒歩44分
- 1LDK+S
-
-
- 中古一戸建て 2024.09.26
-
-
- 2,380万円
-
宮崎市佐土原町下那珂
-
JR日豊本線「佐土原駅」まで徒歩29分
- 4LDK
-
-
- 中古一戸建て 2024.10.01
-
-
- 2,380万円
-
宮崎市大字熊野
-
JR日南線「木花駅」まで徒歩6分
- 3LDK
-
-
- 中古一戸建て 2024.10.21
-
-
- 2,500万円
-
宮崎市佐土原町上田島
-
JR日豊本線「佐土原駅」まで徒歩77分
- 7LDK
-
-
- 中古一戸建て 2024.10.25
-
-
- 2,500万円
-
宮崎市高岡町下倉永
-
JR日豊本線「宮崎神宮駅」まで車27分
- 5DK
-
-
- 中古一戸建て 2024.11.13
-
-
- 2,399万円
-
宮崎市大字恒久
-
農高前まで徒歩4分
- 3LDK
-
-
- 中古一戸建て 2024.11.13
-
-
- 2,399万円
-
宮崎市大字恒久
-
農高前まで徒歩4分
- 3LDK
-
-
- 中古一戸建て 2024.12.05
-
-
- 2,380万円
-
宮崎市佐土原町石崎2丁目
-
JR日豊本線「佐土原駅」まで徒歩24分
- 3LDK
-
-
- 中古一戸建て 2024.12.21
-
-
- 2,480万円
-
宮崎市谷川2丁目
-
JR日豊本線「南宮崎駅」まで徒歩20分
- 6LDK
-
-
- 中古一戸建て 2025.01.16
-
-
- 2,400万円
-
宮崎市大塚台東2丁目
-
市営住宅前まで徒歩10分
- 4LDK
-
-
- 中古一戸建て 2025.01.26
-
-
- 2,410万円
-
宮崎市大字本郷南方
-
JR日南線「南方駅」まで徒歩5分
- 3LDK
-
-
- 中古一戸建て 2025.01.27
-
-
- 2,400万円
-
宮崎市清武町加納乙
-
JR日豊本線「加納駅」まで徒歩18分
- 4DK
-
-
- 中古一戸建て 2025.01.28
-
-
- 2,580万円
-
宮崎市大塚町権現前
-
JR日豊本線「宮崎駅」まで徒歩57分
- 4LDK+S
-
-
- 中古一戸建て 2025.01.28
-
-
- 2,550万円
-
宮崎市薫る坂1丁目
-
JR日豊本線「南宮崎駅」まで徒歩30分
- 4LDK
-
-
- 中古一戸建て 2025.02.02
-
-
- 2,450万円
-
宮崎市阿波岐原町火切塚
-
JR日豊本線「宮崎神宮駅」まで徒歩32分
- 3LDK+S
-
-
- 中古一戸建て 2025.02.07
-
-
- 2,450万円
-
宮崎市阿波岐原町火切塚
-
東小学校前まで徒歩2分
- 3LDK+S
-
-
- 中古一戸建て 2025.02.12
-
-
- 2,380万円
-
宮崎市清武町池田台
-
第三池田台まで徒歩3分
- 4LDK
-
-
- 中古一戸建て 2025.02.16
-
-
- 2,450万円
-
宮崎市阿波岐原町火切塚
-
JR日豊本線「宮崎神宮駅」まで徒歩33分
- 3LDK+S
-
-
- 中古一戸建て 2025.02.27
-
-
- 2,400万円
-
宮崎市清武町加納乙
-
JR日豊本線「加納駅」まで徒歩18分
- 4DK
-
-
- 中古一戸建て 2025.04.05
-
-
- 2,550万円
-
宮崎市阿波岐原町火切塚
-
JR日豊本線「宮崎神宮駅」まで徒歩29分
- 3LDK+S
-
-
- 中古一戸建て 2025.04.13
-
-
- 2,580万円
-
宮崎市大塚町権現前
-
JR日豊本線「宮崎駅」まで徒歩56分
- 4LDK+S
-
-
- 中古一戸建て 2025.04.18
-
-
- 2,500万円
-
宮崎市小松台東3丁目
-
JR日豊本線「宮崎神宮駅」まで徒歩56分
- 3LDK+S
-
-
- 中古一戸建て 2025.04.21
-
-
- 2,380万円
-
宮崎市恒久6丁目
-
JR日南線「田吉駅」まで徒歩24分
- 4LDK+S
-
-
- 中古一戸建て 2025.06.16
-
-
- 2,580万円
-
宮崎市丸山1丁目
-
JR日豊本線「宮崎駅」まで徒歩22分
- 4LDK
-
-
- 中古一戸建て 2025.07.11
-
-
- 2,549万円
-
宮崎市吉村町中原
-
JR日豊本線「宮崎駅」まで徒歩20分
- 3LDK
-
-
- 中古一戸建て 2025.07.17
-
-
- 2,580万円
-
宮崎市大字郡司分
-
JR日南線「田吉駅」まで徒歩21分
- 5LDK
-
-
- 中古一戸建て 2025.07.25
-
-
- 2,500万円
-
宮崎市大字折生迫
-
白浜観音入口まで徒歩1分
-
-
- 中古一戸建て 2025.07.28
-
-
- 2,480万円
-
宮崎市瀬頭1丁目
-
JR日豊本線「宮崎駅」まで徒歩15分
- 3DK
-
-
- 中古一戸建て 2025.08.04
-
-
- 2,380万円
-
宮崎市月見ケ丘2丁目
-
JR日南線「田吉駅」まで徒歩13分
- 4LDK
-
-
- 中古一戸建て 2025.08.05
-
-
- 2,380万円
-
宮崎市生目台西5丁目
-
JR日豊本線「宮崎駅」まで徒歩87分
- 4LDK
-
-
- 中古一戸建て 2025.08.26
-
-
- 2,480万円
-
宮崎市大字赤江
-
JR日豊本線「南宮崎駅」まで徒歩47分
- 5LDK
-
-
- 中古一戸建て 2025.08.28
-
-
- 2,480万円
-
宮崎市生目台東2丁目
-
生目台東2丁目まで徒歩3分
- 3LDK+S
-
-
- 中古一戸建て 2025.08.28
-
-
- 2,580万円
-
宮崎市月見ケ丘6丁目
-
月見ヶ丘6丁目まで徒歩2分
- 4LDK
-
-
- 中古一戸建て 2025.09.01
-
-
- 2,499万円
-
宮崎市吉村町中原
-
JR日豊本線「宮崎駅」まで徒歩21分
- 3LDK
-
-
- 中古一戸建て 2025.09.10
-
-
- 2,549万円
-
宮崎市吉村町中原
-
大王町まで徒歩5分
- 3LDK
-
-
- 中古一戸建て 2025.09.11
-
-
- 2,380万円
-
宮崎市吉村町ハシテ
-
JR日豊本線「宮崎駅」まで徒歩24分
- 4LDK
-
-
- 中古一戸建て 2025.09.12
-
-
- 2,380万円
-
宮崎市月見ケ丘1丁目
-
JR日南線「田吉駅」まで徒歩13分
- 3DK+S
-
-
- 中古一戸建て 2025.09.14
-
-
- 2,480万円
-
宮崎市生目台西4丁目
-
JR日豊本線「南宮崎駅」まで徒歩69分
- 3LDK+S
-
-
- 中古一戸建て 2025.09.16
-
-
- 2,480万円
-
宮崎市大塚台西3丁目
-
JR日豊本線「南宮崎駅」まで徒歩62分
- 6LDK
-
-
- 中古一戸建て 2025.09.19
-
-
- 2,480万円
-
宮崎市生目台東4丁目
-
JR日豊本線「南宮崎駅」まで徒歩60分
- 4LDK
-
-
- 中古一戸建て 2025.09.19
-
-
- 2,380万円
-
宮崎市吉村町ハシテ
-
JR日豊本線「宮崎駅」まで徒歩24分
- 4LDK
-
-
- 中古一戸建て 2025.09.22
-
-
- 2,550万円
-
宮崎市生目台西4丁目
-
JR日豊本線「宮崎駅」まで徒歩81分
- 4LDK
-
-
- 中古一戸建て 2025.10.07
-
-
- 2,388万円
-
宮崎市佐土原町下田島
-
JR日豊本線「佐土原駅」まで徒歩9分
- 4LDK
-
-
- 中古一戸建て 2025.10.19
-
-
- 2,480万円
-
宮崎市吉村町寺ノ下
-
JR日豊本線「宮崎駅」まで徒歩24分
- 3LDK
-
-
- 中古一戸建て 2025.10.19
-
-
- 2,499万円
-
宮崎市吉村町浮之城
-
JR日豊本線「宮崎駅」まで徒歩28分
- 4DK+S
-
-
-
中古一戸建て
2025.10.24
-
-
- 2,450万円
-
宮崎市生目台東4丁目
-
生目台センター前まで徒歩5分
- 4LDK
-
-
中古一戸建て
2025.10.24
-
-
中古一戸建て
2025.10.27
-
-
- 2,580万円
-
宮崎市大字恒久
-
JR日豊本線「南宮崎駅」まで徒歩19分
- 4LDK
-
-
中古一戸建て
2025.10.27
-
-
中古一戸建て
2025.11.13
-
-
- 2,480万円
-
宮崎市小松台北町
-
JR日豊本線「宮崎神宮駅」まで徒歩52分
- 5LDK+S
-
-
中古一戸建て
2025.11.13
-
-
中古一戸建て
2025.11.21
-
-
- 2,480万円
-
宮崎市生目台東4丁目
-
生目台東4丁目まで徒歩5分
- 4LDK
-
-
中古一戸建て
2025.11.21
- 宮崎県
マイページ物件数 - 1,683件
最近見た物件
-
-

-
- 中古マンション
- 1,880万円
-
名古屋市天白区植田3丁目
-
名古屋市鶴舞線植田
-
-
-

-
- 新築一戸建て
- 3,690万円
-
三郷市彦糸1丁目
-
JR武蔵野線新三郷
-
-
-

-
- 中古一戸建て
- 1,800万円
-
倉敷市中島
-
JR山陽本線西阿知
-
宮崎県中古一戸建て新着物件
-
-

-
- 中古一戸建て
- 1,880万円
-
宮崎市田代町
-
JR日豊本線宮崎駅
-
-
-

-
- 中古一戸建て
- 899万円
-
宮崎市清武町今泉甲
-
JR日豊本線日向沓掛駅
-
-
-

-
- 中古一戸建て
- 2,480万円
-
宮崎市生目台東4丁目
-
生目台東4丁目
-
-
-

-
- 中古一戸建て
- 2,150万円
-
宮崎市大字小松
-
JR日豊本線宮崎神宮駅
-
-
-

-
- 中古一戸建て
- 2,000万円
-
宮崎市月見ケ丘7丁目
-
JR日豊本線加納駅
-
-
-

-
- 中古一戸建て
- 1,690万円
-
宮崎市佐土原町下田島
-
JR日豊本線佐土原駅
-
-
-

-
- 中古一戸建て
- 690万円
-
宮崎市本郷3丁目
-
JR日南線南方駅
-
- お近くの店舗を探す
-
おすすめ物件
-
-

-
- 中古一戸建て
- 2,900万円
-
宮崎市田野町乙
-
JR日豊本線田野
-
-
-

-
- 中古一戸建て
- 700万円
-
日南市南郷町中村乙
-
JR日南線南郷
-
-
-

-
- 中古一戸建て
- 1,280万円
-
宮崎市大字本郷北方
-
JR日南線田吉
-
-
-

-
- 中古一戸建て
- 2,300万円
-
宮崎市学園木花台南3丁目
-
JR日南線木花
-
-
-

-
- 中古一戸建て
- 1,460万円
-
宮崎市堀川町
-
JR日豊本線宮崎
-
-
-

-
- 中古一戸建て
- 1,870万円
-
宮崎市大字小松
-
JR日豊本線宮崎神宮
-
-
-

-
- 中古一戸建て
- 650万円
-
宮崎市佐土原町東上那珂
-
野久尾バス停
-
-
-

-
- 中古一戸建て
- 1,350万円
-
宮崎市清武町今泉丙
-
JR日豊本線清武
-
-
-

-
- 中古一戸建て
- 890万円
-
宮崎市永楽町
-
JR日豊本線宮崎
-
-
-

-
- 中古一戸建て
- 3,600万円
-
宮崎市高岡町飯田3丁目
-
JR日豊本線宮崎
-

















不動産のご相談なら古田敦也さんのCMでおなじみの全国700店舗展開中のハウスドゥ宮崎中学校前へ!当店に相談してよかった!と大満足いただけるようにサポートいたします♪安心してご相談ください♪