守口市藤田町4丁目の中古戸建
NEW 11.08掲載情報更新日:2025年11月08日 次回更新予定日:2025年11月22日
- 2,980万円
-
- 借入ご希望金額
万円 - 借入期間
年 - 借入金利
% - 月々のお支払い金額
円
- 借入ご希望金額
※ 月々のお支払例は目安の試算となりますので、実際の金額とは異なる場合がございます。詳しくは店舗までお問合わせください。
- 守口市藤田町4丁目
-
京阪本線『大和田』 徒歩9分 (約720m)
京阪本線『萱島』 徒歩14分 (約1100m)
大阪モノレール『大日』 徒歩32分 (約2520m)
守口市藤田町4丁目一戸建て | 物件情報
☆月々7.7万円~ 未入居物件♪
☆月々7.7万円~
☆最寄駅から京橋駅まで15分
☆陽当たり良好!
☆10.5帖LDK
☆駐車場1台&ハイルーフ車可
☆近隣に学校、幼稚園、保育園、公園あり
☆複数スーパーあり
☆大日イオンモール車で11分
【内覧会開催中】
本日ご案内可能な場合もございます。
複数件併せてご内見も可能♪
他の掲載物件もまとめてご内見頂けます。気になる物件をお教え下さい。
☆0120ー684-571
お気軽にお電話ください♪
☆立地のポイント
【大和田駅】徒歩約9分
【大日駅】徒歩約32分
物件の設備
- 電気
- 上水道
- 下水道
- 給湯
- システムキッチン
- ユニットバス
- トイレ2箇所
- 室内洗濯機置場
- 洗面所独立
物件の特徴
- セットバック要
- 南側道路面す
- 3階建以上
物件詳細情報
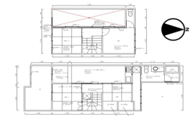
| 価格 | 2,980万円 | 間取り | 3LDK |
|---|---|---|---|
| 物件種別 | 中古一戸建て | ||
| 所在地 | 大阪府守口市藤田町4丁目 | ||
| アクセス |
|
||
| 建物面積 | 91.07㎡ | 駐車場 | なし |
| 築年月 | 2024年(令和6年)09月築 | ||
| 建物構造 | 木造 3階建 | 工法 | |
| 主要採光 | 南向 | バルコニー | |
| 保証・評価 | |||
| リフォーム | |||
| 土地面積 | 50.01㎡(15.12坪) | 接道 | 南側(私道)幅 約4.0m 間口 約4.50m |
| 私道 | 含:9.74㎡ | セットバック | 要 |
| 地目 | 宅地 | 地勢 | |
| 権利 | 所有権 |
||
| 都市計画 | 市街化区域 |
用途地域 | 2種中高 |
| 建ぺい/容積率 | 60% / 200% | 土地国土法 | |
| 許可番号 | 建築基準法 | ||
| 法令制限 | |||
| 小学区 | よつば小学校 徒歩5分 (約400m) | 中学区 | 大久保中学校 徒歩10分 (約750m) |
| 現況 | 空 | 引渡 | 相談 |
| その他費用 | 別途外構費:600000円 |
||
| 周辺環境 | サンディ 守口大久保店 徒歩6分 (約420m) 守口市立よつば小学校 徒歩7分 (約530m) 大久保中学校 徒歩12分 (約950m) ローソン守口大久保町一丁目店 徒歩12分 (約920m) |
||
| 備考 | ■別途外構費60万 ■建築確認番号:第R05確認建築近確0001557号 上記私道負担部分約9.76㎡には、セットバック部分約1.20㎡を含みます |
||
| 物件番号 | 4480910 | 取引態様 | 媒介 |
取扱店舗情報
| 電話番号 | 050-5805-9447 |
|---|---|
| 所在地 | 〒536-0006 大阪府大阪市城東区野江4丁目10-13 クリエイト野江内代1F |
| 営業時間 | 10:00~19:00 |
| 定休日 | なし |
| 宅建免許番号 | 国土交通大臣(1)第10706号 |
| アクセス | 店舗への地図はこちら |

来店ご予約
大阪府守口市で価格が似ている物件はこちら
- 大阪府
マイページ物件数 - 15,566件
最近見た物件
-
-

-
- 中古一戸建て
- 1,565万円
-
結城市大字結城
-
JR水戸線東結城
-
大阪府中古一戸建て新着物件
-
-

-
- 中古一戸建て
- 1,450万円
-
豊中市螢池西町1丁目
-
阪急電鉄宝塚線蛍池駅
-
-
-

-
- 中古一戸建て
- 6,580万円
-
大阪市阿倍野区阪南町3丁目
-
大阪市御堂筋線昭和町駅
-
-
-

-
- 中古一戸建て
- 1億5,000万円
-
豊中市服部南町2丁目
-
阪急電鉄宝塚線服部天神駅
-
-
-

-
- 中古一戸建て
- 3,380万円
-
守口市東光町2丁目
-
京阪本線守口市駅
-
-
-

-
- 中古一戸建て
- 3,480万円
-
大阪市東住吉区住道矢田3丁目
-
近鉄南大阪線矢田駅
-
-
-

-
- 中古一戸建て
- 6,280万円
-
大阪市西成区天下茶屋1丁目
-
大阪市堺筋線天下茶屋駅
-
-
-

-
- 中古一戸建て
- 3億1,000万円
-
大阪市浪速区日本橋東1丁目
-
南海電鉄本線難波駅
-
- お近くの店舗を探す
-
おすすめ物件
-
-

-
- 中古一戸建て
- 2,380万円
-
泉大津市寿町
-
南海電鉄本線松ノ浜
-
-
-

-
- 中古一戸建て
- 4,770万円
-
茨木市総持寺1丁目
-
阪急電鉄京都線総持寺
-
-
-

-
- 中古一戸建て
- 2,990万円
-
泉大津市豊中町3丁目
-
JR阪和線和泉府中
-
-
-

-
- 中古一戸建て
- 2,980万円
-
八尾市八尾木3丁目
-
JR関西本線志紀
-
-
-

-
- 中古一戸建て
- 4,580万円
-
大阪市住之江区住之江1丁目
-
南海電鉄本線住ノ江
-
-
-

-
- 中古一戸建て
- 1,650万円
-
和泉市黒鳥町2丁目
-
JR阪和線和泉府中
-
-
-

-
- 中古一戸建て
- 1億8,000万円
-
大阪市住吉区清水丘3丁目
-
南海電鉄高野線我孫子前
-
-
-

-
- 中古一戸建て
- 2,780万円
-
大阪市住吉区山之内4丁目
-
JR阪和線杉本町
-
-
-

-
- 中古一戸建て
- 2,780万円
-
泉大津市板原町1丁目
-
JR阪和線和泉府中
-
-
-

-
- 中古一戸建て
- 2,980万円
-
茨木市北春日丘1丁目
-
JR東海道線茨木
-







担当エージェント:尾関 親代
落ち着いた住環境でファミリー層にも単身者にも◎♪
住宅ローン相談会開催中です!
ぜひお気軽にお問い合わせください!
■別途外構費60万
■建築確認番号:第R05確認建築近確0001557号
上記私道負担部分約9.76㎡には、セットバック部分約1.20㎡を含みます