高槻市城南町3丁目の中古戸建
NEW 11.17掲載情報更新日:2025年11月24日 次回更新予定日:2025年12月08日
- 2,380万円
-
- 借入ご希望金額
万円 - 借入期間
年 - 借入金利
% - 月々のお支払い金額
円
- 借入ご希望金額
※ 月々のお支払例は目安の試算となりますので、実際の金額とは異なる場合がございます。詳しくは店舗までお問合わせください。
- 高槻市城南町3丁目
-
阪急電鉄京都線『高槻市』 徒歩22分 (約1760m)
高槻市城南町3丁目一戸建て | 物件情報
物件の設備
- 電気
- 上水道
- 下水道
- 都市ガス
- 給湯
- システムキッチン
- バス
- 浴室に窓
- トイレ
- トイレ2箇所
- 室内洗濯機置場
- 洗髪洗面化粧台
- 洗面所独立
- LDK15畳以上
- 24時間換気システム
- クローゼット
- バルコニー
物件の特徴
- 内装リフォーム済
- 外装リフォーム済
- 内外装リフォーム済
- 南側道路面す
- 眺望良好
- 通風良好
- 陽当り良好
- 3階建以上
- 角地
- 平坦地
- 即入居可
物件詳細情報
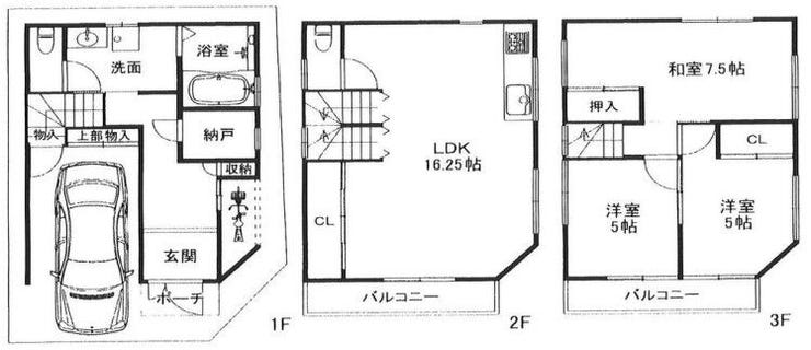
| 価格 | 2,380万円 | 間取り | 3LDK |
|---|---|---|---|
| 物件種別 | 中古一戸建て | ||
| 所在地 | 大阪府高槻市城南町3丁目 | ||
| アクセス |
|
||
| 建物面積 | 公100.83㎡ | 駐車場 | あり 普通:1台 |
| 築年月 | 1996年(平成8年)11月築 | ||
| 建物構造 | 木造 3階建 | 工法 | |
| 主要採光 | 南向 | バルコニー | |
| 保証・評価 | |||
| リフォーム | 【水回り】2013年01月 キッチン・浴室 【外装】2023年01月 外壁 |
||
| 土地面積 | 公50.95㎡(15.41坪) | 接道 | 南側(公道)幅 約4.7m 東側(公道)幅 約4.7m |
| 私道 | セットバック | ||
| 地目 | 宅地 | 地勢 | |
| 権利 | 所有権 |
||
| 都市計画 | 市街化区域 |
用途地域 | 2種中高 |
| 建ぺい/容積率 | 60% / 200% | 土地国土法 | |
| 許可番号 | 建築基準法 | ||
| 法令制限 | |||
| 小学区 | 西大冠小学校 徒歩3分 (約228m) | 中学区 | 城南中学校 徒歩5分 (約363m) |
| 現況 | 空 | 引渡 | 即 |
| その他費用 | |||
| 備考 | |||
| 物件番号 | 4492252 | 取引態様 | 媒介 |
取扱店舗情報
ハウスドゥ 高槻富田 株式会社コンフォート住宅販売 店舗詳細ページへ
| 電話番号 | 072-668-2246 |
|---|---|
| 所在地 | 〒569-0814 大阪府高槻市富田町3丁目15-15 |
| 営業時間 | 10:00~19:00 |
| 定休日 | 水曜日、年末年始 |
| 宅建免許番号 | 大阪府知事(2)第61490号 |
| アクセス | 店舗への地図はこちら |

来店ご予約
大阪府高槻市で価格が似ている物件はこちら
- 大阪府
マイページ物件数 - 15,924件
最近見た物件
-
-

-
- 中古一戸建て
- 700万円
-
高松市屋島東町
-
高松琴平電鉄志度線八栗
-
大阪府中古一戸建て新着物件
-
-

-
- 中古一戸建て
- 2,580万円
-
柏原市平野2丁目
-
近鉄大阪線法善寺駅
-
-
-

-
- 中古一戸建て
- 880万円
-
堺市西区平岡町
-
JR阪和線津久野駅
-
-
-

-
- 中古一戸建て
- 480万円
-
泉大津市二田町2丁目
-
南海電鉄本線松ノ浜駅
-
-
-

-
- 中古一戸建て
- 1,922万円
-
大阪市城東区野江2丁目
-
京阪本線野江駅
-
-
-

-
- 中古一戸建て
- 1,680万円
-
松原市立部2丁目
-
近鉄南大阪線恵我ノ荘駅
-
-
-

-
- 中古一戸建て
- 6,880万円
-
大阪市福島区玉川2丁目
-
大阪市千日前線玉川駅
-
-
-

-
- 中古一戸建て
- 5,380万円
-
大阪市東成区神路3丁目
-
大阪市千日前線新深江駅
-
- お近くの店舗を探す
-
おすすめ物件
-
-

-
- 中古一戸建て
- 480万円
-
貝塚市橋本
-
JR阪和線和泉橋本
-
-
-

-
- 中古一戸建て
- 2,430万円
-
大阪市淀川区三津屋中1丁目
-
阪急電鉄神戸線神崎川
-
-
-

-
- 中古一戸建て
- 2,180万円
-
東大阪市末広町
-
近鉄難波・奈良線瓢箪山
-
-
-

-
- 中古一戸建て
- 2,798万円
-
高槻市東天川3丁目
-
阪急電鉄京都線高槻市
-
-
-

-
- 中古一戸建て
- 1,780万円
-
堺市中区伏尾
-
南海電鉄泉北線泉ケ丘
-
-
-

-
- 中古一戸建て
- 3,280万円
-
大阪市西成区鶴見橋2丁目
-
JR大阪環状線今宮
-
-
-

-
- 中古一戸建て
- 1億8,000万円
-
大阪市住吉区清水丘3丁目
-
南海電鉄高野線我孫子前
-
-
-

-
- 中古一戸建て
- 3,250万円
-
大阪市此花区酉島6丁目
-
JR桜島線安治川口
-
-
-

-
- 中古一戸建て
- 2,490万円
-
八尾市南本町7丁目
-
JR関西本線八尾
-
-
-

-
- 中古一戸建て
- 730万円
-
泉南郡熊取町山の手台3丁目
-
JR阪和線熊取
-


