菊池郡大津町美咲野3丁目
掲載情報更新日:2026年04月24日 次回更新予定日:2026年05月08日
- 2,498万円
-
- 借入ご希望金額
万円 - 借入期間
年 - 借入金利
% - 月々のお支払い金額
円
- 借入ご希望金額
※ 月々のお支払例は目安の試算となりますので、実際の金額とは異なる場合がございます。詳しくは店舗までお問合わせください。
- 菊池郡大津町美咲野3丁目
-
JR豊肥本線『肥後大津』 徒歩32分 (約2560m)
『美咲野団地』 徒歩4分 (約320m)
菊池郡大津町美咲野3丁目一戸建て | 物件情報
小学校・保育園が徒歩圏内の安心。内外装一新のフルリフォーム住宅で、家族の笑顔が広がる4LDK
【小学校徒歩4分×すぐに住み始めやすい×閑静な住環境】
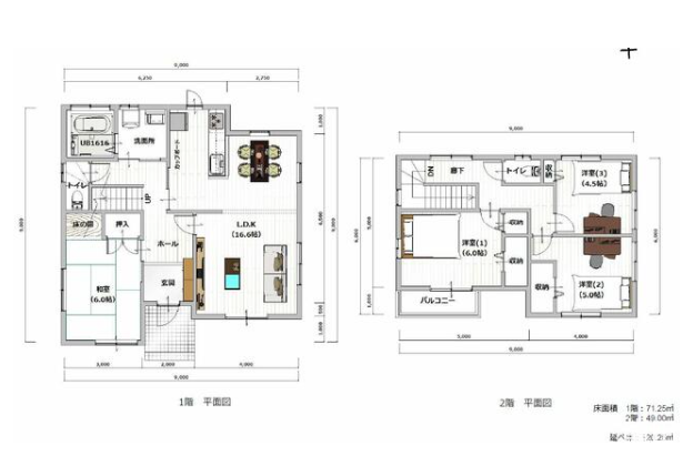
・土地65.42坪/建物36.37坪
・4LDKで、家族構成や暮らし方の変化にも対応しやすい間取り
・駐車2台可
・小学校徒歩4分
・小学校近く、子育て向け
物件の設備
- 電気
- オール電化
- 上水道
- 公営水道
- 下水道
- 公共下水
- 給湯
- IHクッキングヒータ
- コンロ三口
- カウンターキッチン
- システムキッチン
- バス
- バス1坪以上
- 浴室に窓
- トイレ
- トイレ2箇所
- 温水洗浄便座
- 室内洗濯機置場
- 洗面所独立
- ダウンライト
- モニタ付インターホン
- 火災警報器/報知機
- LDK15畳以上
- 和室
- 2面採光
- クローゼット
- クローゼット2箇所
- クローゼット3箇所
- 全居室収納
- シューズボックス
- バルコニー
物件の特徴
- 内装リフォーム済
- 外装リフォーム済
- 内外装リフォーム済
- 緑豊かな住宅地
- 閑静な住宅街
- 通風良好
- 陽当り良好
- 2階建
オープンハウス・イベント情報
【菊池郡大津町】オープンハウス公開中!地域密着のプロが教える「失敗しない家探し」現地見学会
開催日時:公開中
開催場所:熊本県菊池郡大津町
現地案内会を開催しております。 公開中につき、すぐにご案内可能: 現在オープンハウスを開催しています。 まずは実際の建物を見て、暮らしのイメージを膨らませてみませんか? 事前お問い合わせ制: お一人おひとりに寄り添ったご提案ができるよう、個別でご案内いたします。 不動産のプロに相談:…
物件詳細情報
| 価格 | 2,498万円 | 間取り | 4LDK |
|---|---|---|---|
| 物件種別 | 中古一戸建て | ||
| 所在地 | 熊本県菊池郡大津町美咲野3丁目10-18 | ||
| アクセス |
|
||
| 建物面積 | 120.25㎡ | 駐車場 | あり 普通:2台 |
| 築年月 | 2001年(平成13年)04月築 | ||
| 建物構造 | 木造 2階建 | 工法 | |
| 主要採光 | 南向 | バルコニー | |
| 保証・評価 | |||
| リフォーム | 【水回り】2025年12月 キッチン・浴室・トイレ・洗面・給湯器 【外装】2025年12月 外壁 ・屋根 【内装】2025年12月 壁、天井 ・全室クロス |
||
| 土地面積 | 公216.29㎡(65.42坪) | 接道 | |
| 私道 | セットバック | ||
| 地目 | 宅地 | 地勢 | 平坦 |
| 権利 | 所有権 |
||
| 都市計画 | 非線引区域 |
用途地域 | 2種低層 |
| 建ぺい/容積率 | 50% / 100% | 土地国土法 | |
| 許可番号 | 建築基準法 | ||
| 法令制限 | |||
| 小学区 | 美咲野小学校 徒歩7分 (約550m) | 中学区 | 大津北中学校 徒歩22分 (約1700m) |
| 現況 | 空 | 引渡 | 相談 |
| その他費用 | |||
| 周辺環境 | 緑ヶ丘保育園 徒歩5分 (約400m) | ||
| 備考 | 【小学校徒歩4分×すぐに住み始めやすい×閑静な住環境】 ・土地65.42坪/建物36.37坪 ・4LDKで、家族構成や暮らし方の変化にも対応しやすい間取り ・駐車2台可 ・小学校徒歩4分 ・小学校近く、子育て向け |
||
| 物件番号 | 4553857 | 取引態様 | 媒介 |
取扱店舗情報
| 電話番号 | 096-201-2905 |
|---|---|
| 所在地 | 〒861-8083 熊本県熊本市北区楡木2丁目11-95 |
| 営業時間 | 9:00~18:00 |
| 定休日 | 年末年始 |
| 宅建免許番号 | 熊本県知事(2)第5316号 |
| アクセス | 店舗への地図はこちら |

来店ご予約
熊本県菊池郡大津町で価格が似ている物件はこちら
- 熊本県
マイページ物件数 - 3,111件
熊本県中古一戸建て新着物件
-
-

-
- 中古一戸建て
- 2,499万円
-
菊池郡大津町大字外牧
-
JR豊肥本線立野駅
-
-
-

-
- 中古一戸建て
- 2,880万円
-
八代市八幡町
-
JR鹿児島本線八代駅
-
-
-

-
- 中古一戸建て
- 2,880万円
-
八代市八幡町
-
JR鹿児島本線八代駅
-
-
-

-
- 中古一戸建て
- 380万円
-
八代市敷川内町
-
肥薩おれんじ鉄道日奈久温泉駅
-
-
-

-
- 中古一戸建て
- 2,198万円
-
菊池郡大津町美咲野3丁目
-
JR豊肥本線肥後大津駅
-
-
-

-
- 中古一戸建て
- 1,490万円
-
熊本市北区龍田弓削2丁目
-
JR豊肥本線武蔵塚駅
-
-
-

-
- 中古一戸建て
- 3,490万円
-
菊池郡菊陽町光の森4丁目
-
JR豊肥本線光の森駅
-
- お近くの店舗を探す
-
おすすめ物件
-
-

-
- 中古一戸建て
- 5,500万円
-
熊本市北区楡木2丁目
-
JR豊肥本線武蔵塚
-
-
-

-
- 中古一戸建て
- 4,900万円
-
合志市御代志
-
熊本電気鉄道御代志
-
-
-

-
- 中古一戸建て
- 2,350万円
-
熊本市北区楠4丁目
-
JR豊肥本線武蔵塚
-
-
-

-
- 中古一戸建て
- 1,758万円
-
熊本市南区日吉2丁目
-
JR鹿児島本線西熊本
-
-
-

-
- 中古一戸建て
- 2,298万円
-
熊本市南区野口1丁目
-
JR鹿児島本線西熊本
-
-
-

-
- 中古一戸建て
- 1,130万円
-
合志市須屋
-
熊本電気鉄道須屋
-
-
-

-
- 中古一戸建て
- 2,550万円
-
熊本市南区八分字町
-
JR鹿児島本線西熊本
-
-
-

-
- 中古一戸建て
- 2,498万円
-
熊本市南区薄場1丁目
-
JR鹿児島本線西熊本
-
-
-

-
- 中古一戸建て
- 2,570万円
-
合志市野々島
-
熊本電気鉄道御代志
-
-
-

-
- 中古一戸建て
- 1,300万円
-
菊池市下河原日向
-
熊本電気鉄道御代志
-





































担当エージェント:竹本 和恵
【住まい探しの進め方】
■ お問い合わせ後すぐに見学ではなく、先にヒアリング・資金計画・光熱費を整理してから物件ツアーへ進むため、条件に合う住まいを比較しやすくなります
■ ヒアリング後に資金計画や光熱費を整理し、住み始めてからの費用感まで確認できます
■ 太陽光やオール電化を含め、住んだ後の支出見直しまでご相談いただけます
■ 相談だけの段階でもお気軽にご相談ください