菊池郡大津町美咲野3丁目の中古戸建
掲載情報更新日:2026年04月28日 次回更新予定日:2026年05月12日
- 2,498万円
-
- 借入ご希望金額
万円 - 借入期間
年 - 借入金利
% - 月々のお支払い金額
円
- 借入ご希望金額
※ 月々のお支払例は目安の試算となりますので、実際の金額とは異なる場合がございます。詳しくは店舗までお問合わせください。
- 菊池郡大津町美咲野3丁目
-
JR豊肥本線『肥後大津』 徒歩33分 (約2580m)
熊本電気鉄道『再春医療センター前』 車25分(約13.4km)
『美咲野団地』 徒歩4分 (約320m)
菊池郡大津町美咲野3丁目一戸建て | 物件情報
《一気見ツアー今すぐOK》☆仲介手数料無料物件(80万円相当がお得!)お気軽にお問合せください♪
【内覧ツアー×最安値保証】ネットの物件、すべて当社で紹介可能!交渉力で「理想の価格」を叶えます
当社は通常かかる仲介手数料(物件価格の3%+6万円)が無料(例:3000万円の場合、90万円相当)
売主様への価格交渉も得意なので、どこよりもお安くご購入いただけるよう徹底サポートします!
他社様でお見積もりを取った後でも大丈夫!もっと安く買えるのでは?そんな悩みは当社が解決します
【内覧ツアー】
熊本県内全域の気になる物件をすべて当社でご内覧いただける『内覧ツアー』を実施中☆
新築・中古・中古マンションも!見学されたい物件を1日で内覧可能♪
窓口を一つに絞れるから、手間も時間もかかりません。
【最安値保証】
\最 安 値 徹 底 宣 言/
他社様よりも必ずお得にご購入いただけることをお約束します
当社ではオプション費用(エアコン、網戸、太陽光等)もお客様に代わり相見積もりします
トータルの費用が100万円以上変わることも!
全国700店舗以上展開!
ハウスドゥだからこその豊富な物件数・情報量でお客様のお家選びをトータルサポートいたします!
物件の設備
- オール電化
- 公営水道
- 下水道
- IHクッキングヒータ
- コンロ三口
- グリル
- カウンターキッチン
- バス
- ユニットバス
- 浴室に窓
- トイレ
- 温水洗浄便座
- 室内洗濯機置場
- 洗髪洗面化粧台
- 洗面所独立
- ダウンライト
- ディンプルキー
- ダブルロックキー
- モニタ付インターホン
- LDK15畳以上
- 和室
- 3面採光
- 一部フローリング
- クローゼット
- 全居室収納
- シューズボックス
- バルコニー
- 庭
物件の特徴
- 南向
- 2沿線利用可
- 小学校徒歩10分以内
- スーパーが近い
- 閑静な住宅街
- 通風良好
- 陽当り良好
- 2階建
- 即入居可
オープンハウス・イベント情報
開催日時:毎週土日祝 09:00~19:00
開催場所:熊本県菊池郡大津町
\\現地見学会ご予約受付中// ○平日・土日祝いつでも承ります!! 〇お仕事帰りもOK!早朝・19時以降も対応致します! ◇◆◇お問い合わせ◇◆◇ 電話:096-243-3000 または 見学予約フォームにて事前にご予約をお願いします♪ ◇◆◇見学のご予約◇◆◇ 事前にご希望日時…
物件詳細情報
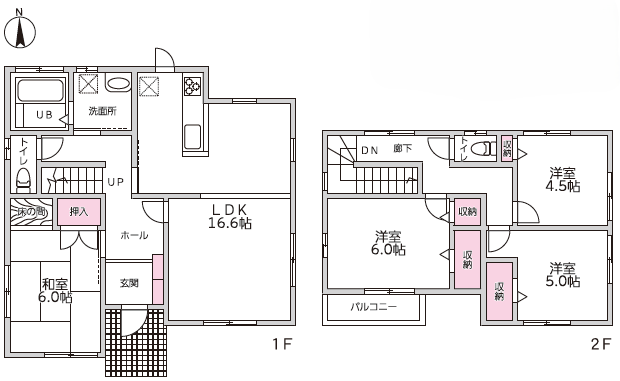
| 価格 | 2,498万円 | 間取り | 4LDK |
|---|---|---|---|
| 物件種別 | 中古一戸建て | ||
| 所在地 | 熊本県菊池郡大津町美咲野3丁目 | ||
| アクセス |
|
||
| 建物面積 | 120.25㎡ | 駐車場 | あり 普通:2台 |
| 築年月 | 2001年(平成13年)04月築 | ||
| 建物構造 | 木造 2階建 | 工法 | |
| 主要採光 | 南向 | バルコニー | |
| 保証・評価 | |||
| リフォーム | |||
| 土地面積 | 216.29㎡(65.42坪) | 接道 | |
| 私道 | セットバック | ||
| 地目 | 宅地 | 地勢 | |
| 権利 | 所有権 |
||
| 都市計画 | 非線引区域 |
用途地域 | 2種低層 |
| 建ぺい/容積率 | 50% / 100% | 土地国土法 | |
| 許可番号 | 建築基準法 | ||
| 法令制限 | |||
| 小学区 | 美咲野小学校 徒歩8分 (約590m) | 中学区 | 大津北中学校 徒歩21分 (約1670m) |
| 現況 | 空 | 引渡 | 即 |
| その他費用 | |||
| 周辺環境 | 美咲野小学校 徒歩8分 (約590m) 大津北中学校 徒歩21分 (約1670m) 緑ヶ丘保育園 徒歩5分 (約400m) ローソン 大津美咲野店 徒歩4分 (約300m) 鮮ど市場 大津店 徒歩27分 (約2150m) のざわ医院 徒歩24分 (約1920m) 美咲野1丁目西公園 徒歩8分 (約600m) 大津郵便局 徒歩24分 (約1920m) 肥後銀行ATM 大津町役場 徒歩29分 (約2280m) ドラッグストアコスモス 引水店 徒歩28分 (約2200m) |
||
| 備考 | ・美咲野小学校まで徒歩8分(約590m) ・大津北中学校まで徒歩21分(約1670m) ・緑ヶ丘保育園まで徒歩5分(約400m) ・ローソン 大津美咲野店まで徒歩4分(約300m) ・鮮ど市場 大津店まで徒歩27分(約2150m) ・のざわ医院まで徒歩24分(約1920m) ・美咲野1丁目西公園まで徒歩8分(約600m) ・大津郵便局まで徒歩24分(約1920m) ・肥後銀行ATM 大津町役場まで徒歩29分(約2280m) ・ドラッグストアコスモス 引水店まで徒歩28分(約2200m) |
||
| 物件番号 | 4576581 | 取引態様 | 媒介 |
取扱店舗情報
ハウスドゥ 御幸田迎 株式会社Remado 店舗詳細ページへ
| 電話番号 | 096-243-3000 |
|---|---|
| 所在地 | 〒861-4108 熊本県熊本市南区幸田1丁目7-20 |
| 営業時間 | 10:00~18:00 |
| 定休日 | お盆、年末年始 |
| 宅建免許番号 | 熊本県知事(1)第5556号 |
| アクセス | 店舗への地図はこちら |

来店ご予約
熊本県菊池郡大津町で価格が似ている物件はこちら
- 熊本県
マイページ物件数 - 3,100件
最近見た物件
-
-

-
- 中古一戸建て
- 2,599万円
-
三島市川原ケ谷
-
JR東海道本線三島
-
-
-

-
- 新築一戸建て
- 2,790万円
-
名古屋市守山区桜坂2丁目
-
JR中央本線高蔵寺
-
-
-

-
- 中古一戸建て
- 2,380万円
-
名古屋市緑区大高町字鷲津
-
JR東海道本線大高
-
熊本県中古一戸建て新着物件
-
-

-
- 中古一戸建て
- 2,850万円
-
熊本市東区若葉1丁目
-
熊本市健軍線健軍町駅
-
-
-

-
- 中古一戸建て
- 2,850万円
-
熊本市東区若葉1丁目
-
熊本市健軍線健軍町駅
-
-
-

-
- 中古一戸建て
- 1,548万円
-
合志市御代志
-
熊本電気鉄道御代志駅
-
-
-

-
- 中古一戸建て
- 2,298万円
-
熊本市北区清水東町
-
熊本電気鉄道八景水谷駅
-
-
-

-
- 中古一戸建て
- 2,499万円
-
菊池郡大津町大字外牧
-
JR豊肥本線立野駅
-
-
-

-
- 中古一戸建て
- 2,880万円
-
八代市八幡町
-
JR鹿児島本線八代駅
-
-
-

-
- 中古一戸建て
- 2,880万円
-
八代市八幡町
-
JR鹿児島本線八代駅
-
- お近くの店舗を探す
-
おすすめ物件
-
-

-
- 中古一戸建て
- 1,880万円
-
熊本市西区新土河原1丁目
-
JR鹿児島本線西熊本
-
-
-

-
- 中古一戸建て
- 2,058万円
-
熊本市北区清水岩倉2丁目
-
熊本電気鉄道新須屋
-
-
-

-
- 中古一戸建て
- 4,900万円
-
合志市御代志
-
熊本電気鉄道御代志
-
-
-

-
- 中古一戸建て
- 1,750万円
-
熊本市北区山室2丁目
-
熊本電気鉄道八景水谷
-
-
-

-
- 中古一戸建て
- 2,380万円
-
合志市野々島
-
熊本電気鉄道御代志
-
-
-

-
- 中古一戸建て
- 2,298万円
-
熊本市東区戸島西1丁目
-
熊本市健軍線健軍町
-
-
-

-
- 中古一戸建て
- 750万円
-
熊本市北区徳王1丁目
-
JR鹿児島本線崇城大学前
-
-
-

-
- 中古一戸建て
- 2,498万円
-
熊本市南区薄場1丁目
-
JR鹿児島本線西熊本
-
-
-

-
- 中古一戸建て
- 5,500万円
-
熊本市北区楡木2丁目
-
JR豊肥本線武蔵塚
-
-
-

-
- 中古一戸建て
- 4,380万円
-
合志市御代志
-
熊本電気鉄道御代志
-























担当エージェント:林原 綾乃
【月々の支払い例】
2500万円借り入れの場合
月々50,331円(頭金・ボーナス払いなし)
金利0.780%の場合(SBI新生銀行、金利優遇有)
変動金利 返済期間50年
※あくまで一例。条件有。
【周辺環境】
・美咲野小学校まで徒歩8分(約590m)
・大津北中学校まで徒歩21分(約1670m)
・緑ヶ丘保育園まで徒歩5分(約400m)
・ローソン 大津美咲野店まで徒歩4分(約300m)
・鮮ど市場 大津店まで徒歩27分(約2150m)
・のざわ医院まで徒歩24分(約1920m)
・美咲野1丁目西公園まで徒歩8分(約600m)
・大津郵便局まで徒歩24分(約1920m)
・肥後銀行ATM 大津町役場まで徒歩29分(約2280m)
・ドラッグストアコスモス 引水店まで徒歩28分(約2200m)
いつでもお気軽にご連絡ください☆彡
お問い合わせは『株式会社Remado』まで♪