菊池郡大津町美咲野3丁目の中古戸建
掲載情報更新日:2026年05月09日 次回更新予定日:2026年05月23日
- 2,498万円
-
- 借入ご希望金額
万円 - 借入期間
年 - 借入金利
% - 月々のお支払い金額
円
- 借入ご希望金額
※ 月々のお支払例は目安の試算となりますので、実際の金額とは異なる場合がございます。詳しくは店舗までお問合わせください。
- 菊池郡大津町美咲野3丁目
-
JR豊肥本線『肥後大津』 徒歩33分 (約2580m)
熊本電気鉄道『再春医療センター前』 車25分(約13.4km)
『美咲野団地』 徒歩4分 (約320m)
菊池郡大津町美咲野3丁目一戸建て | 物件情報
《本日ご案内できます!》☆仲介手数料無料物件(80万円相当がお得!)お気軽にお問合せください♪
■【最安値保証】諸費用で損したくない方必見!熊本県全域の物件、どこよりも安く買えます◎
〈新耐震基準〉震度6~7の大地震でも倒壊しない安心の基準です。地震保険料の割引も。
〈防蟻工事5年保証〉シロアリへの備え付き。「見えない場所の安心」も、セットでお届け。
〈契約不適合責任2年〉入居後の雨漏りなどにも対応◎2年間は売主の保証が付きます。
■熊本で「一番安く、賢く」家を買うなら『ハウスドゥ熊本桜町』へ!
私たちは「物件価格+諸費用」の総額で地域一番の安さに挑戦しています。
1.【最安値保証】 諸費用を最小限に。お見積りのセカンドオピニオンも受付中。
2.【全物件ご紹介】 熊本県内の全物件が対象。窓口ひとつで家探しを完結。
3.【即日内覧ツアー】 1日で効率よく比較!スケジュール調整はすべてお任せください
4.【交渉力に自信】 「もう少し安ければ…」を現実に。売主様への価格交渉も得意です。
「自分たちの条件でいくら安くなる?」「住宅ローンが不安」といったご相談だけでもお気軽にどうぞ!
物件の設備
- オール電化
- 公営水道
- 下水道
- IHクッキングヒータ
- コンロ三口
- グリル
- カウンターキッチン
- バス
- ユニットバス
- 浴室に窓
- トイレ
- 温水洗浄便座
- 室内洗濯機置場
- 洗髪洗面化粧台
- 洗面所独立
- ダウンライト
- ディンプルキー
- ダブルロックキー
- モニタ付インターホン
- LDK15畳以上
- 和室
- 3面採光
- 一部フローリング
- クローゼット
- 全居室収納
- シューズボックス
- バルコニー
- 庭
物件の特徴
- 南向
- 2沿線利用可
- 小学校徒歩10分以内
- スーパーが近い
- 閑静な住宅街
- 通風良好
- 陽当り良好
- 2階建
- 即入居可
オープンハウス・イベント情報
開催日時:毎週土日祝 09:00~19:00
開催場所:熊本県菊池郡大津町
\\現地見学会ご予約受付中// ○平日・土日祝いつでも承ります!! 〇お仕事帰りもOK!早朝・19時以降も対応致します! ◆◇お問い合わせ◇◆ 電話:096-274-4666 または 見学予約フォームにて事前にご予約をお願いします♪ ◆◇見学のご予約◇◆ 事前にご希望日時をお申し…
物件詳細情報
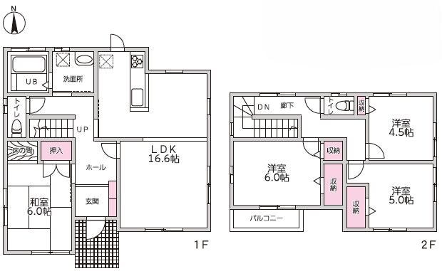
| 価格 | 2,498万円 | 間取り | 4LDK |
|---|---|---|---|
| 物件種別 | 中古一戸建て | ||
| 所在地 | 熊本県菊池郡大津町美咲野3丁目 | ||
| アクセス |
|
||
| 建物面積 | 120.25㎡ | 駐車場 | あり 普通:2台 |
| 築年月 | 2001年(平成13年)04月築 | ||
| 建物構造 | 木造 2階建 | 工法 | |
| 主要採光 | 南向 | バルコニー | |
| 保証・評価 | |||
| リフォーム | |||
| 土地面積 | 216.29㎡(65.42坪) | 接道 | |
| 私道 | セットバック | ||
| 地目 | 宅地 | 地勢 | |
| 権利 | 所有権 |
||
| 都市計画 | 非線引区域 |
用途地域 | 2種低層 |
| 建ぺい/容積率 | 50% / 100% | 土地国土法 | |
| 許可番号 | 建築基準法 | ||
| 法令制限 | |||
| 小学区 | 美咲野小学校 徒歩8分 (約590m) | 中学区 | 大津北中学校 徒歩21分 (約1670m) |
| 現況 | 空 | 引渡 | 即 |
| その他費用 | |||
| 周辺環境 | 美咲野小学校 徒歩8分 (約590m) 大津北中学校 徒歩21分 (約1670m) 緑ヶ丘保育園 徒歩5分 (約400m) ローソン 大津美咲野店 徒歩4分 (約300m) 鮮ど市場 大津店 徒歩27分 (約2150m) のざわ医院 徒歩24分 (約1920m) 美咲野1丁目西公園 徒歩8分 (約600m) 大津郵便局 徒歩24分 (約1920m) 肥後銀行ATM 大津町役場 徒歩29分 (約2280m) ドラッグストアコスモス 引水店 徒歩28分 (約2200m) |
||
| 備考 | ・美咲野小学校まで徒歩8分(約590m) ・大津北中学校まで徒歩21分(約1670m) ・緑ヶ丘保育園まで徒歩5分(約400m) ・ローソン 大津美咲野店まで徒歩4分(約300m) ・鮮ど市場 大津店まで徒歩27分(約2150m) ・のざわ医院まで徒歩24分(約1920m) ・美咲野1丁目西公園まで徒歩8分(約600m) ・大津郵便局まで徒歩24分(約1920m) ・肥後銀行ATM 大津町役場まで徒歩29分(約2280m) ・ドラッグストアコスモス 引水店まで徒歩28分(約2200m) |
||
| 物件番号 | 4588647 | 取引態様 | 媒介 |
取扱店舗情報
ハウスドゥ 熊本桜町 株式会社Remado 店舗詳細ページへ
| 電話番号 | 096-274-4665 |
|---|---|
| 所在地 | 〒860-0805 熊本県熊本市中央区桜町1-25 |
| 営業時間 | 10:00~18:00 |
| 定休日 | 年末年始, 夏季休暇(お盆) |
| 宅建免許番号 | 熊本県知事(1)第5556号 |
| アクセス | 店舗への地図はこちら |

来店ご予約
熊本県菊池郡大津町で価格が似ている物件はこちら
- 熊本県
マイページ物件数 - 3,061件
最近見た物件
-
-

-
- 新築一戸建て
- 2,930万円
-
静岡市清水区西大曲町
-
静岡鉄道静岡清水線桜橋
-
-
-

-
- 中古一戸建て
- 1,698万円
-
熊本市北区植木町舞尾
-
JR鹿児島本線植木
-
-
-

-
- 中古一戸建て
- 1,200万円
-
高知市北竹島町
-
とさでん交通桟橋線桟橋通三丁目
-
熊本県中古一戸建て新着物件
-
-

-
- 中古一戸建て
- 3,390万円
-
熊本市北区弓削6丁目
-
JR豊肥本線武蔵塚駅
-
-
-

-
- 中古一戸建て
- 1,650万円
-
熊本市西区出町
-
熊本電気鉄道池田駅
-
-
-

-
- 中古一戸建て
- 2,850万円
-
熊本市東区若葉1丁目
-
熊本市健軍線健軍町駅
-
-
-

-
- 中古一戸建て
- 2,850万円
-
熊本市東区若葉1丁目
-
熊本市健軍線健軍町駅
-
-
-

-
- 中古一戸建て
- 1,548万円
-
合志市御代志
-
熊本電気鉄道御代志駅
-
-
-

-
- 中古一戸建て
- 2,298万円
-
熊本市北区清水東町
-
熊本電気鉄道八景水谷駅
-
-
-

-
- 中古一戸建て
- 3,098万円
-
熊本市東区小山7丁目
-
JR豊肥本線光の森駅
-
- お近くの店舗を探す
-
おすすめ物件
-
-

-
- 中古一戸建て
- 1,750万円
-
熊本市北区山室2丁目
-
熊本電気鉄道八景水谷
-
-
-

-
- 中古一戸建て
- 4,698万円
-
熊本市南区八幡11丁目
-
JR鹿児島本線川尻
-
-
-

-
- 中古一戸建て
- 4,380万円
-
宇城市不知火町御領
-
JR鹿児島本線松橋
-
-
-

-
- 中古一戸建て
- 1,300万円
-
菊池市下河原日向
-
熊本電気鉄道御代志
-
-
-

-
- 中古一戸建て
- 5,500万円
-
熊本市北区楡木2丁目
-
JR豊肥本線武蔵塚
-
-
-

-
- 中古一戸建て
- 2,058万円
-
熊本市北区清水岩倉2丁目
-
熊本電気鉄道新須屋
-
-
-

-
- 中古一戸建て
- 2,298万円
-
熊本市南区野口1丁目
-
JR鹿児島本線西熊本
-
-
-

-
- 中古一戸建て
- 1,670万円
-
熊本市南区城南町藤山
-
JR三角線富合
-
-
-

-
- 中古一戸建て
- 750万円
-
熊本市北区徳王1丁目
-
JR鹿児島本線崇城大学前
-
-
-

-
- 中古一戸建て
- 2,698万円
-
熊本市東区戸島1丁目
-
JR豊肥本線光の森
-























担当エージェント:藤原 章裕
【月々の支払い例】
2500万円借り入れの場合
月々50,331円(頭金・ボーナス払いなし)
金利0.780%の場合(SBI新生銀行、金利優遇有)
変動金利 返済期間50年
※あくまで一例。条件有。
【周辺環境】
・美咲野小学校まで徒歩8分(約590m)
・大津北中学校まで徒歩21分(約1670m)
・緑ヶ丘保育園まで徒歩5分(約400m)
・ローソン 大津美咲野店まで徒歩4分(約300m)
・鮮ど市場 大津店まで徒歩27分(約2150m)
・のざわ医院まで徒歩24分(約1920m)
・美咲野1丁目西公園まで徒歩8分(約600m)
・大津郵便局まで徒歩24分(約1920m)
・肥後銀行ATM 大津町役場まで徒歩29分(約2280m)
・ドラッグストアコスモス 引水店まで徒歩28分(約2200m)
お気軽にご相談ください!
お問い合わせは『ハウスドゥ熊本桜町』まで♪