枚方市藤阪元町3丁目の中古戸建
NEW 02.15掲載情報更新日:2026年02月21日 次回更新予定日:2026年03月07日
- 1,580万円
-
- 借入ご希望金額
万円 - 借入期間
年 - 借入金利
% - 月々のお支払い金額
円
- 借入ご希望金額
※ 月々のお支払例は目安の試算となりますので、実際の金額とは異なる場合がございます。詳しくは店舗までお問合わせください。
- 枚方市藤阪元町3丁目
-
JR片町線『藤阪』 徒歩11分 (約880m)
JR片町線『長尾』 徒歩15分 (約1200m)
JR片町線『津田』 徒歩36分 (約2880m)
枚方市藤阪元町3丁目一戸建て | 物件情報
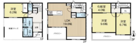
■間取り4LDKのファミリータイプ♪ ■吹抜のある明るいリビング♪ ■バルコニーが2カ所ございます♪
■間取り4LDKのファミリータイプです♪
■吹抜のある明るいリビングです♪
■全居室約6帖です♪
■バルコニーが2カ所ございます♪
ご覧いただきありがとうございます。
■周辺環境施設■
【スーパー】 業務スーパー長尾店:徒歩4分
【スーパー】 フレスト長尾店:徒歩10分
【スーパー】 フレッシュバザール枚方藤阪駅前店:徒歩12分
【コンビニ】 ファミリーマート枚方長尾谷町店:徒歩9分
【ドラッグストア】 キリン堂長尾店:徒歩10分
【ドラッグストア】 ドラッグアカカベ長尾元町店:徒歩11分
【中学校】 枚方市立杉中学校:徒歩11分
【小学校】 枚方市立藤阪小学校:徒歩11分
ぜひお気軽にお問い合わせください。
物件の設備
- 公営水道
- 公共下水
- 都市ガス
- 食器洗浄乾燥機
- IHクッキングヒータ
- システムキッチン
- ユニットバス
- オートバス
- 追焚機能
- 室内洗濯機置場
- 洗髪洗面化粧台
- 天井高3m以上
- 吹抜
物件の特徴
- 閑静な住宅街
- 3階建以上
- 平坦地
- 整形地
物件詳細情報
| 価格 | 1,580万円 | 間取り | 4LDK |
|---|---|---|---|
| 物件種別 | 中古一戸建て | ||
| 所在地 | 大阪府枚方市藤阪元町3丁目 | ||
| アクセス |
|
||
| 建物面積 | 公82.62㎡ | 駐車場 | あり 普通:1台 |
| 築年月 | 2003年(平成15年)06月築 | ||
| 建物構造 | 木造 3階建 | 工法 | |
| 主要採光 | バルコニー | ||
| 保証・評価 | |||
| リフォーム | |||
| 土地面積 | 公67.5㎡(20.41坪) | 接道 | 西側(公道)幅 約4.7m |
| 私道 | セットバック | ||
| 地目 | 宅地 | 地勢 | |
| 権利 | 所有権 |
||
| 都市計画 | 市街化区域 |
用途地域 | 2種中高 |
| 建ぺい/容積率 | 60% / 200% | 土地国土法 | |
| 許可番号 | 建築基準法 | ||
| 法令制限 | |||
| 小学区 | 藤阪小学校 徒歩11分 (約850m) | 中学区 | 杉中学校 徒歩11分 (約850m) |
| 現況 | 居住中 | 引渡 | 相談 |
| その他費用 | |||
| 周辺環境 | 業務スーパー長尾店 徒歩4分 (約290m) フレスト長尾店 徒歩10分 (約750m) フレッシュバザール 枚方藤阪駅前店 徒歩12分 (約950m) ファミリーマート枚方長尾谷町店 徒歩9分 (約700m) キリン堂長尾店 徒歩10分 (約800m) ドラッグアカカベ長尾元町店 徒歩11分 (約850m) 枚方市立杉中学校 徒歩11分 (約850m) 枚方市立藤阪小学校 徒歩11分 (約850m) |
||
| 備考 | |||
| 物件番号 | 4599844 | 取引態様 | 専属専任 |
取扱店舗情報
ハウスドゥ 津田 株式会社Neo不動産販売 店舗詳細ページへ
| 電話番号 | 072-808-9032 |
|---|---|
| 所在地 | 〒573-0126 大阪府枚方市津田西町3丁目1-3 |
| 営業時間 | 10:00~20:00 |
| 定休日 | 水曜日 |
| 宅建免許番号 | 大阪府知事(2)第61431号 |
| アクセス | 店舗への地図はこちら |

来店ご予約
大阪府枚方市で価格が似ている物件はこちら
- 大阪府
マイページ物件数 - 17,564件
大阪府中古一戸建て新着物件
-
-

-
- 中古一戸建て
- 2,580万円
-
箕面市半町4丁目
-
阪急電鉄箕面線桜井駅
-
-
-

-
- 中古一戸建て
- 3,480万円
-
大阪市東住吉区鷹合2丁目
-
近鉄南大阪線針中野駅
-
-
-

-
- 中古一戸建て
- 5,980万円
-
大阪市生野区生野西4丁目
-
JR大阪環状線寺田町駅
-
-
-

-
- 中古一戸建て
- 6,180万円
-
大阪市都島区東野田町5丁目
-
京阪本線京橋駅
-
-
-

-
- 中古一戸建て
- 2,500万円
-
東大阪市岩田町5丁目
-
近鉄難波・奈良線若江岩田駅
-
-
-

-
- 中古一戸建て
- 2,480万円
-
貝塚市東山4丁目
-
水間鉄道水間線三ツ松駅
-
-
-

-
- 中古一戸建て
- 3,480万円
-
大阪市東住吉区鷹合2丁目
-
近鉄南大阪線針中野駅
-
- お近くの店舗を探す
-
おすすめ物件
-
-

-
- 中古一戸建て
- 2,980万円
-
高槻市真上町5丁目
-
JR東海道線高槻
-
-
-

-
- 中古一戸建て
- 780万円
-
堺市北区長曽根町
-
大阪市御堂筋線なかもず
-
-
-

-
- 中古一戸建て
- 2,599万円
-
茨木市庄1丁目
-
JR東海道線JR総持寺
-
-
-

-
- 中古一戸建て
- 2,980万円
-
茨木市北春日丘1丁目
-
JR東海道線茨木
-
-
-

-
- 中古一戸建て
- 4,680万円
-
大阪市住吉区遠里小野6丁目
-
南海電鉄高野線我孫子前
-
-
-

-
- 中古一戸建て
- 3,680万円
-
大阪市東住吉区東田辺1丁目
-
大阪市谷町線駒川中野
-
-
-

-
- 中古一戸建て
- 3,598万円
-
高槻市富田町6丁目
-
阪急電鉄京都線茨木市
-
-
-

-
- 中古一戸建て
- 3,680万円
-
八尾市相生町1丁目
-
JR関西本線八尾
-
-
-

-
- 中古一戸建て
- 2,498万円
-
泉大津市下条町
-
南海電鉄本線泉大津
-
-
-

-
- 中古一戸建て
- 690万円
-
泉佐野市日根野
-
JR阪和線日根野
-










