シャルマンコーポ大津のぞみが丘 大津市本宮2丁目の中古マンション
掲載情報更新日:2026年04月09日 次回更新予定日:2026年04月23日
- 2,200万円
-
- 借入ご希望金額
万円 - 借入期間
年 - 借入金利
% - 月々のお支払い金額
円
- 借入ご希望金額
※ 月々のお支払例は目安の試算となりますので、実際の金額とは異なる場合がございます。詳しくは店舗までお問合わせください。
- 大津市本宮2丁目
-
JR東海道線『大津』 徒歩12分 (約918m)
JR東海道線『膳所』 徒歩9分 (約657m)
京阪電鉄石山坂本線『京阪膳所』 徒歩12分 (約892m)
大津市本宮2丁目マンション | 物件情報
★JR・京阪2沿線利用可能、京都や大阪へのアクセスも◎★教育施設やお買い物施設が徒歩圏内に揃います★
物件の設備
- 公営水道
- 下水道
- 公共下水
- 都市ガス
- コンロ三口
- カウンターキッチン
- システムキッチン
- バス
- ユニットバス
- シャワー
- トイレ
- B/T別室
- 室内洗濯機置場
- 洗面所独立
- モニタ付インターホン
- 和室
- クローゼット
- 全居室収納
- シューズボックス
- バルコニー
- エレベーター
物件の特徴
- 管理人日勤
- 2沿線利用可
- 3沿線以上利用可
- 小学校徒歩10分以内
- スーパーが近い
物件詳細情報
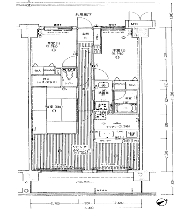
| 価格 | 2,200万円 | 間取り | 3LDK |
|---|---|---|---|
| 物件種別 | 中古マンション | ||
| 所在地 | 滋賀県大津市本宮2丁目 | ||
| アクセス |
|
||
| 専有面積 | 壁芯 69.30㎡ | 所在階 | 9階建/7階部分 |
| 主要採光 | 南東向 | バルコニー | 南東向11.34㎡ |
| その他 | |||
| 権利 | 所有権 |
||
| 保証・評価 | |||
| リフォーム | |||
| 総戸数 | 94戸 | 面積 | |
| 築年月 | 1997年(平成9年)03月築 | 建物構造 | RC |
| 施工会社 | 三菱建設株式会社 | ||
| 管理会社 | 東洋コミニティサービス(株) | 管理方式 | 全部委託 日勤管理 |
| 駐車場 | 【駐車場】空有 料金:11,000円/月 |
||
| 都市計画 | 市街化区域 |
用途地域 | 準工業 |
| 建ぺい/容積率 | 60% / 200% | 土地国土法 | |
| 法令制限 | |||
| 小学区 | 逢坂小学校 徒歩12分 (約920m) | 中学区 | 打出中学校 徒歩10分 (約765m) |
| 現況 | 空 | 引渡 | 相談 |
| 管理費 | 9,360円/月 | 修繕積立金 | 14,410円/月 |
| その他費用 | |||
| 周辺環境 | 朝日が丘保育園 徒歩6分 (約450m) 逢坂幼稚園 徒歩14分 (約1050m) コープぜぜ 徒歩7分 (約520m) フレンドマート大津駅前店 徒歩13分 (約1040m) ローソン 国道膳所店 徒歩11分 (約860m) ドラッグユタカ 大津市民病院前店 徒歩6分 (約430m) |
||
| 備考 | |||
| 物件番号 | 4259583 | 取引態様 | 媒介 |
取扱店舗情報
ハウスドゥ 大津石山 株式会社マキ不動産販売 店舗詳細ページへ
| 電話番号 | 077-531-1777 |
|---|---|
| 所在地 | 〒520-0832 滋賀県大津市粟津町2-63 マキ本社ビル |
| 営業時間 | 9:00~18:30 |
| 定休日 | 水曜日・第3火曜日 |
| 宅建免許番号 | 滋賀県知事(5)第3019号 |
| アクセス | 店舗への地図はこちら |

来店ご予約
滋賀県大津市で価格が似ている物件はこちら
- 滋賀県
マイページ物件数 - 2,880件
最近見た物件
-
-

-
- 中古一戸建て
- 2,590万円
-
倉敷市水江
-
JR山陽本線西阿知
-
-
-

-
- 中古マンション
- 950万円
-
名古屋市守山区川宮町
-
JR中央本線新守山
-
-
-

-
- 土地
- 1,110万円
-
福山市高西町川尻
-
JR山陽本線東尾道
-
滋賀県中古マンション新着物件
- お近くの店舗を探す
-
おすすめ物件
-
-

-
- 中古マンション
- 400万円
-
大津市大物
-
JR湖西線志賀
-
-
-

-
- 中古マンション
- 998万円
-
彦根市野良田町
-
JR東海道線稲枝
-
-
-

-
- 中古マンション
- 2,698万円
-
京都市山科区上花山桜谷
-
京都市営地下鉄東西線東野
-
-
-

-
- 中古マンション
- 1,998万円
-
宇治市槇島町月夜
-
JR奈良線宇治
-
-
-

-
- 中古マンション
- 990万円
-
彦根市岡町
-
JR東海道線南彦根
-
-
-

-
- 中古マンション
- 690万円
-
彦根市岡町
-
JR東海道線南彦根
-
-
-

-
- 中古マンション
- 1億3,400万円
-
京都市左京区吉田河原町
-
京阪鴨東線神宮丸太町
-
-
-

-
- 中古マンション
- 2,490万円
-
長浜市大宮町
-
JR北陸本線長浜
-
-
-

-
- 中古マンション
- 2,280万円
-
大津市皇子が丘1丁目
-
JR湖西線大津京
-
-
-

-
- 中古マンション
- 3,980万円
-
大津市皇子が丘2丁目
-
JR湖西線大津京
-









