東急ドエル・アルス鶴見緑地公園 大阪市城東区古市2丁目の中古マンション
掲載情報更新日:2025年12月04日 次回更新予定日:2025年12月18日
- 3,090万円
-
- 借入ご希望金額
万円 - 借入期間
年 - 借入金利
% - 月々のお支払い金額
円
- 借入ご希望金額
※ 月々のお支払例は目安の試算となりますので、実際の金額とは異なる場合がございます。詳しくは店舗までお問合わせください。
- 大阪市城東区古市2丁目
-
大阪市今里筋線『新森古市』 徒歩8分 (約640m)
大阪市長堀鶴見緑地線『今福鶴見』 徒歩13分 (約1040m)
大阪市城東区古市2丁目マンション | 物件情報
物件の設備
- 公営水道
- 下水道
- 都市ガス
- 浄水器
- カウンターキッチン
- ユニットバス
- 浴室乾燥機
- オートロック
- 防犯カメラ
- フローリング
- フローリング張替
- クローゼット3箇所
- シューズボックス
- バルコニー
- 南面バルコニー
- 宅配BOX
- エレベーター
物件の特徴
- 管理人日勤
- 内装リフォーム済
- 内装リフォーム後渡
物件詳細情報
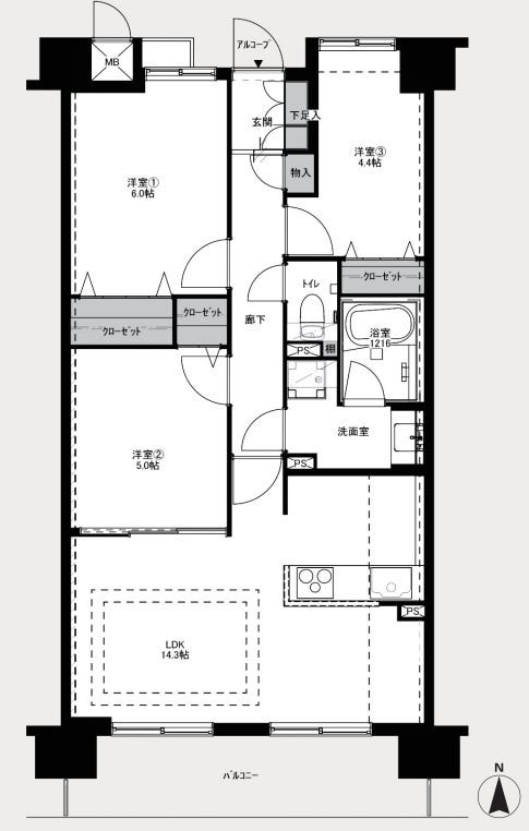
| 価格 | 3,090万円 | 間取り | 3LDK |
|---|---|---|---|
| 物件種別 | 中古マンション | ||
| 所在地 | 大阪府大阪市城東区古市2丁目8-23 | ||
| アクセス |
|
||
| 専有面積 | 壁芯 65.84㎡ | 所在階 | 9階建/3階部分 |
| 主要採光 | 南向 | バルコニー | 南向9.00㎡ |
| その他 | |||
| 権利 | 所有権 |
||
| 保証・評価 | |||
| リフォーム | 【水回り】2025年04月 キッチン・浴室・トイレ・洗面 |
||
| 総戸数 | 面積 | ||
| 築年月 | 1998年(平成10年)03月築 | 建物構造 | RC |
| 施工会社 | |||
| 管理会社 | 管理方式 | 全部委託 日勤管理 | |
| 駐車場 | |||
| 都市計画 | 用途地域 | ||
| 建ぺい/容積率 | 土地国土法 | ||
| 法令制限 | |||
| 小学区 | すみれ小学校 徒歩2分 (約94m) | 中学区 | 菫中学校 徒歩9分 (約669m) |
| 現況 | 空 | 引渡 | 相談 |
| 管理費 | 12,500円/月 | 修繕積立金 | 21,070円/月 |
| その他費用 | |||
| 備考 | |||
| 物件番号 | 4269097 | 取引態様 | 媒介 |
取扱店舗情報
ハウスドゥ 玉造駅前 株式会社ホワイトマルベリーホーム 店舗詳細ページへ
| 電話番号 | 06-6191-1515 |
|---|---|
| 所在地 | 〒543-0014 大阪府大阪市天王寺区玉造元町2番7号 |
| 営業時間 | 9:30~18:30 |
| 定休日 | 火曜日、水曜日 |
| 宅建免許番号 | 大阪府知事(2)第60854号 |
| アクセス | 店舗への地図はこちら |

来店ご予約
大阪府大阪市城東区で価格が似ている物件はこちら
- 大阪府
マイページ物件数 - 16,117件
最近見た物件
-
-

-
- 中古マンション
- 1,498万円
-
一宮市三ツ井7丁目
-
名鉄犬山線岩倉
-
-
-

-
- 新築一戸建て
- 3,690万円
-
熊本市東区月出7丁目
-
JR豊肥本線水前寺
-
-
-

-
- 中古マンション
- 890万円
-
明石市魚住町清水
-
JR山陽本線土山
-
大阪府中古マンション新着物件
-
-

-
- 中古マンション
- 1,850万円
-
茨木市西駅前町
-
JR東海道線茨木駅
-
-
-

-
- 中古マンション
- 2,290万円
-
茨木市新中条町
-
JR東海道線茨木駅
-
-
-

-
- 中古マンション
- 2,098万円
-
大阪市淀川区野中南2丁目
-
阪急電鉄神戸線十三駅
-
-
-

-
- 中古マンション
- 2,398万円
-
八尾市永畑町3丁目
-
JR関西本線八尾駅
-
-
-

-
- 中古マンション
- 4,950万円
-
豊中市小曽根5丁目
-
大阪市御堂筋線江坂駅
-
-
-

-
- 中古マンション
- 4,950万円
-
豊中市小曽根5丁目
-
大阪市御堂筋線江坂駅
-
-
-

-
- 中古マンション
- 2,098万円
-
大阪市淀川区野中南2丁目
-
阪急電鉄神戸線十三駅
-
- お近くの店舗を探す
-
おすすめ物件
-
-

-
- 中古マンション
- 2,599万円
-
大阪市住之江区新北島4丁目
-
大阪市四つ橋線住之江公園
-
-
-

-
- 中古マンション
- 4,480万円
-
尼崎市南塚口町6丁目
-
阪急電鉄神戸線塚口
-
-
-

-
- 中古マンション
- 2,790万円
-
茨木市天王2丁目
-
阪急電鉄京都線南茨木
-
-
-

-
- 中古マンション
- 4,180万円
-
大阪市淀川区西三国4丁目
-
阪急電鉄宝塚線三国
-
-
-

-
- 中古マンション
- 250万円
-
茨木市新郡山2丁目
-
JR東海道線茨木
-
-
-

-
- 中古マンション
- 1,180万円
-
茨木市東太田1丁目
-
JR東海道線JR総持寺
-
-
-

-
- 中古マンション
- 1,998万円
-
大阪市住之江区新北島5丁目
-
大阪市四つ橋線住之江公園
-
-
-

-
- 中古マンション
- 950万円
-
泉大津市尾井千原町
-
南海電鉄本線北助松
-
-
-

-
- 中古マンション
- 1,480万円
-
泉大津市助松町3丁目
-
南海電鉄本線松ノ浜
-
-
-

-
- 中古マンション
- 1,480万円
-
和泉市伏屋町5丁目
-
南海電鉄泉北線光明池
-



