東急ドエル・アルス鶴見緑地公園
掲載情報更新日:2025年09月27日 次回更新予定日:2025年10月11日
- 3,290万円
-
- 借入ご希望金額
万円 - 借入期間
年 - 借入金利
% - 月々のお支払い金額
円
- 借入ご希望金額
※ 月々のお支払例は目安の試算となりますので、実際の金額とは異なる場合がございます。詳しくは店舗までお問合わせください。
- 大阪市城東区古市2丁目
-
大阪市今里筋線『新森古市』 徒歩8分 (約640m)
大阪市長堀鶴見緑地線『今福鶴見』 徒歩14分 (約1120m)
京阪本線『関目』 徒歩19分 (約1520m)
東急ドエル・アルス鶴見緑地公園マンション | 物件情報
■南向きにつき陽当たり良好 ■大阪メトロ今里筋線【新森古市駅】徒歩約8分
*---*---*---*〇ここに注目〇*---*---*--*
〇2025年4月リノベーション完了済み
・システムキッチン(浄水器付き) ・ユニットバス(浴室乾燥機付き)
・トイレ ・洗面台 ・洗濯水栓器具 ・防水パン
・全室クロス ・全フローリング ・全CF ・全建具
・下足入れ ・スイッチパネル
・ダウンライト ・照明器具 ・玄関人感センサー
*---*---*---**---*----*---**---*---*---*
物件の設備
- 公営水道
- 下水道
- 都市ガス
- 給湯
- 浄水器
- コンロ三口
- カウンターキッチン
- システムキッチン
- バス
- ユニットバス
- オートバス
- 追焚機能
- 浴室乾燥機
- シャワー
- トイレ
- B/T別室
- 室内洗濯機置場
- 洗面所独立
- オートロック
- モニタ付インターホン
- 防犯カメラ
- フローリング
- 全室フローリング
- フローリング張替
- クローゼット
- クローゼット3箇所
- 収納スペース
- 全居室収納
- シューズボックス
- 平面駐車場
- 宅配BOX
- エレベーター
- 駐輪場
- バイク置場
物件の特徴
- 管理人日勤
- 内装リフォーム済
- 南向
- 2沿線利用可
- 駅まで平坦
- 小学校徒歩10分以内
- スーパーが近い
- 市街地が近い
- 都市近郊
- 陽当り良好
- 平坦地
物件詳細情報
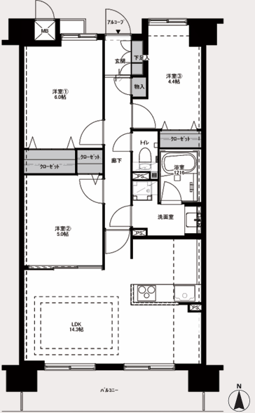
価格 | 3,290万円 | 間取り | 3LDK |
---|---|---|---|
物件種別 | 中古マンション | ||
所在地 | 大阪府大阪市城東区古市2丁目 | ||
アクセス |
|
||
専有面積 | 壁芯 65.84㎡ | 所在階 | 9階建/3階部分 |
主要採光 | 南向 | バルコニー | |
その他 | |||
権利 | 所有権 |
||
保証・評価 | |||
リフォーム | 【水回り】2025年04月 キッチン・浴室・トイレ・洗面・給湯器 【内装】2025年04月 壁、天井 ・床 ・全室クロス ・建具 |
||
総戸数 | 27戸 | 面積 | |
築年月 | 1998年(平成10年)03月築 | 建物構造 | RC |
施工会社 | 株式会社昭和工務店 | ||
管理会社 | 株式会社東急コミュニティ | 管理方式 | 全部委託 日勤管理 |
駐車場 | 【駐車場】空有 料金帯:17,000円/月~23,000円/月 【バイク置き場】空有 料金:800円/月 【駐輪場】空有 料金:100円/月 |
||
都市計画 | 用途地域 | 商業 | |
建ぺい/容積率 | 土地国土法 | ||
法令制限 | |||
小学区 | すみれ小学校 徒歩1分 (約73m) | 中学区 | 菫中学校 徒歩8分 (約600m) |
現況 | 空 | 引渡 | 相談 |
管理費 | 12,500円/月 | 修繕積立金 | 21,070円/月 |
その他費用 | |||
周辺環境 | 大阪市立すみれ小学校 徒歩9分 (約690m) 大阪市立菫中学校 徒歩6分 (約440m) セブンイレブン 大阪古市3丁目店 徒歩8分 (約640m) マルヤス 城東店 徒歩4分 (約290m) スギドラッグ 城東古市店 徒歩8分 (約610m) 大阪旭こども病院 徒歩10分 (約740m) 城東古市3郵便局 徒歩7分 (約490m) 三井住友銀行 イオンモール鶴見緑地店 徒歩13分 (約1020m) 新森サンフレンズ保育園 徒歩11分 (約850m) 新森東公園 徒歩13分 (約1000m) |
||
備考 | ・駐車場3台空有(平面2区画、機械式1区画)※2025年8月時点 ・バイク置場800~1,000円/月 ・駐輪場100円/月 |
||
物件番号 | 4387983 | 取引態様 | 媒介 |
取扱店舗情報
電話番号 | 06-6167-8666 |
---|---|
所在地 | 〒535-0005 大阪府大阪市旭区赤川2丁目2-4 PHOERME城北公園1階 |
営業時間 | 9:00~18:00 |
定休日 | |
宅建免許番号 | 大阪府知事(1)第64057号 |
アクセス | 店舗への地図はこちら |
来店ご予約
大阪府大阪市城東区で価格が似ている物件はこちら
- 大阪府
マイページ物件数 - 18,518件
大阪府中古マンション新着物件
-
-
-
- 中古マンション
- 3,280万円
-
大阪市都島区中野町5丁目
-
JR大阪環状線桜ノ宮駅
-
-
-
-
- 中古マンション
- 8,900万円
-
大阪市北区大淀南2丁目
-
JR大阪環状線福島駅
-
-
-
-
- 中古マンション
- 3,480万円
-
大阪市都島区友渕町1丁目
-
JRおおさか東線城北公園通駅
-
-
-
-
- 中古マンション
- 1,480万円
-
茨木市平田台
-
阪急電鉄京都線茨木市駅
-
-
-
-
- 中古マンション
- 3,280万円
-
大阪市城東区今福東3丁目
-
大阪市長堀鶴見緑地線今福鶴見駅
-
-
-
-
- 中古マンション
- 1,780万円
-
大阪市城東区中央1丁目
-
大阪市長堀鶴見緑地線蒲生四丁目駅
-
-
-
-
- 中古マンション
- 4,280万円
-
大阪市西区江戸堀2丁目
-
京阪電鉄中之島線中之島駅
-
- お近くの店舗を探す
-
おすすめ物件
-
-
-
- 中古マンション
- 5,690万円
-
吹田市垂水町1丁目
-
大阪市御堂筋線江坂
-
-
-
-
- 中古マンション
- 3,990万円
-
茨木市園田町
-
阪急電鉄京都線茨木市
-
-
-
-
- 中古マンション
- 2,380万円
-
池田市天神2丁目
-
阪急電鉄宝塚線石橋阪大前
-
-
-
-
- 中古マンション
- 2,198万円
-
堺市北区百舌鳥赤畑町2丁
-
JR阪和線三国ヶ丘
-
-
-
-
- 中古マンション
- 4,280万円
-
吹田市南金田2丁目
-
大阪市御堂筋線江坂
-
-
-
-
- 中古マンション
- 1,080万円
-
泉大津市東港町
-
南海電鉄本線泉大津
-
-
-
-
- 中古マンション
- 2,980万円
-
吹田市江の木町
-
大阪市御堂筋線江坂
-
-
-
-
- 中古マンション
- 1,580万円
-
吹田市五月が丘東
-
JR東海道線岸辺
-
-
-
-
- 中古マンション
- 2,680万円
-
茨木市天王2丁目
-
阪急電鉄京都線南茨木
-
-
-
-
- 中古マンション
- 290万円
-
茨木市新郡山2丁目
-
JR東海道線茨木
-
担当エージェント:久保田 聡
弊社は不動産売買専門の仲介会社とし、全国700店舗展開中のハウスドゥ城北公園でございます。
大阪市、守口市、門真市を中心に物件のご提案をさせていただいております。
購入・売却に関する様々なご相談承っております。
弊社は他社様が掲載されている物件でもご紹介可能です。お気軽にご相談くださいませ。