ルネ千里丘2号棟 吹田市山田南の中古マンション
掲載情報更新日:2025年11月26日 次回更新予定日:2025年12月10日
- 2,250万円
-
- 借入ご希望金額
万円 - 借入期間
年 - 借入金利
% - 月々のお支払い金額
円
- 借入ご希望金額
※ 月々のお支払例は目安の試算となりますので、実際の金額とは異なる場合がございます。詳しくは店舗までお問合わせください。
- 吹田市山田南
-
JR東海道線『千里丘』 徒歩21分 (約1650m)
JR東海道線『岸辺』 徒歩24分 (約1900m)
阪急電鉄京都線『摂津市』 徒歩27分 (約2110m)
吹田市山田南マンション | 物件情報
水廻り設備全て交換 2LDKへ変更 全居室フルリフォーム
住宅ローン・資金計画にお悩みの方、是非当社にご相談ください!
住宅購入・お住み替えにつきもののお悩みを一緒に解決していきましょう!
・頭金0円で購入したい・・・
・駅近くのマンションに住み替えたい・・・
・住宅ローンが通るか不安・・・
・頭金が用意できない・・・
・毎月いくらまで払えるかわからない・・・
など、様々なお悩みをお持ちの方。
お気軽にお申し付け下さい♪
★物件のご内覧は、ご自宅への送迎や指定場所お待合わせでのご案内可。
★キッズスペース完備!DVDおもちゃなどご用意していますので安心してご来店ください。
★お客様専用駐車場完備!お気軽にご来店お待ちいたしております。
物件の設備
- 公営水道
- 都市ガス
- システムキッチン
- オートバス
- シャワー
- 室内洗濯機置場
- モニタ付インターホン
- 防犯カメラ
- クローゼット
- 全居室収納
- シューズボックス
- エレベーター
物件の特徴
- 管理人日勤
- 南向
- ペット相談
- ペット対応
物件詳細情報
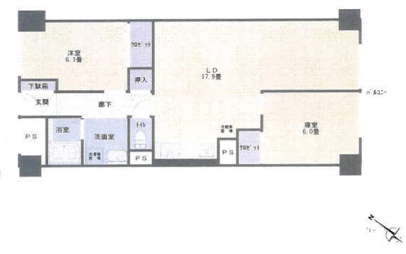
| 価格 | 2,250万円 | 間取り | 2LDK |
|---|---|---|---|
| 物件種別 | 中古マンション | ||
| 所在地 | 大阪府吹田市山田南 | ||
| アクセス |
|
||
| 専有面積 | 66.60㎡ | 所在階 | 11階建/10階部分 |
| 主要採光 | 南向 | バルコニー | |
| その他 | |||
| 権利 | 所有権 |
||
| 保証・評価 | |||
| リフォーム | |||
| 総戸数 | 487戸 | 面積 | |
| 築年月 | 1975年(昭和50年)06月築 | 建物構造 | SRC |
| 施工会社 | 株式会社長谷川工務店 | ||
| 管理会社 | 株式会社浪速管理 | 管理方式 | 全部委託 日勤管理 |
| 駐車場 | |||
| 都市計画 | 市街化区域 |
用途地域 | 2種中高 |
| 建ぺい/容積率 | 60% / 200% | 土地国土法 | |
| 法令制限 | |||
| 小学区 | 山田第五小学校 徒歩8分 (約570m) | 中学区 | 山田中学校 徒歩14分 (約1090m) |
| 現況 | 空 | 引渡 | 相談 |
| 管理費 | 5,740円/月 | 修繕積立金 | |
| その他費用 | |||
| 備考 | |||
| 物件番号 | 4270393 | 取引態様 | 媒介 |
取扱店舗情報
ハウスドゥ 阪急茨木市駅南 株式会社エムアイエム 店舗詳細ページへ
| 電話番号 | 072-697-8701 |
|---|---|
| 所在地 | 〒567-0827 大阪府茨木市稲葉町11-8 ローズビルウチダ1F |
| 営業時間 | 10:00~19:00 |
| 定休日 | 水曜日、年末年始 |
| 宅建免許番号 | 大阪府知事(1)第64466号 |
| アクセス | 店舗への地図はこちら |

来店ご予約
大阪府吹田市で価格が似ている物件はこちら
- 大阪府
マイページ物件数 - 15,742件
最近見た物件
-
-

-
- 中古一戸建て
- 2,680万円
-
岡山市中区国府市場
-
JR山陽本線東岡山
-
大阪府中古マンション新着物件
-
-

-
- 中古マンション
- 2,498万円
-
茨木市西駅前町
-
JR東海道線茨木駅
-
-
-

-
- 中古マンション
- 2,180万円
-
茨木市沢良宜西1丁目
-
阪急電鉄京都線南茨木駅
-
-
-

-
- 中古マンション
- 2,480万円
-
茨木市西駅前町
-
JR東海道線茨木駅
-
-
-

-
- 中古マンション
- 2,500万円
-
茨木市南春日丘7丁目
-
大阪モノレール彩都阪大病院前駅
-
-
-

-
- 中古マンション
- 1,250万円
-
茨木市沢良宜西1丁目
-
阪急電鉄京都線南茨木駅
-
-
-

-
- 中古マンション
- 3,980万円
-
茨木市上穂積4丁目
-
JR東海道線茨木駅
-
-
-

-
- 中古マンション
- 2,280万円
-
茨木市天王2丁目
-
阪急電鉄京都線南茨木駅
-
- お近くの店舗を探す
-
おすすめ物件
-
-

-
- 中古マンション
- 2,990万円
-
大阪市住之江区北加賀屋5丁目
-
大阪市四つ橋線北加賀屋
-
-
-

-
- 中古マンション
- 1,880万円
-
大阪市淀川区塚本3丁目
-
JR東海道線塚本
-
-
-

-
- 中古マンション
- 1,480万円
-
泉大津市助松町3丁目
-
南海電鉄本線松ノ浜
-
-
-

-
- 中古マンション
- 2,480万円
-
大阪市淀川区西中島2丁目
-
阪急電鉄京都線南方
-
-
-

-
- 中古マンション
- 3,200万円
-
大阪市港区池島3丁目
-
大阪市中央線朝潮橋
-
-
-

-
- 中古マンション
- 4,398万円
-
大阪市住之江区新北島1丁目
-
大阪市四つ橋線住之江公園
-
-
-

-
- 中古マンション
- 2,290万円
-
茨木市豊原町
-
JR東海道線茨木
-
-
-

-
- 中古マンション
- 1,730万円
-
茨木市藤の里1丁目
-
大阪モノレール彩都豊川
-
-
-

-
- 中古マンション
- 2,550万円
-
大阪市港区池島3丁目
-
大阪市中央線朝潮橋
-
-
-

-
- 中古マンション
- 2,190万円
-
大阪市淀川区三国本町1丁目
-
大阪市御堂筋線新大阪
-





住宅ローン・資金計画にお悩みの方、是非当社にご相談ください!住宅購入・お住み替えにつきもののお悩みを一緒に解決していきましょう!お気軽にお申し付け下さい♪