上本町ガーデンハイツ 大阪市天王寺区小橋町の中古マンション
掲載情報更新日:2026年05月28日 次回更新予定日:2026年06月11日
- 3,480万円
-
- 借入ご希望金額
万円 - 借入期間
年 - 借入金利
% - 月々のお支払い金額
円
- 借入ご希望金額
※ 月々のお支払例は目安の試算となりますので、実際の金額とは異なる場合がございます。詳しくは店舗までお問合わせください。
- 大阪市天王寺区小橋町
-
大阪市千日前線『鶴橋』 徒歩2分 (約160m)
JR大阪環状線『鶴橋』 徒歩4分 (約320m)
近鉄難波・奈良線『大阪上本町』 徒歩8分 (約640m)
大阪市天王寺区小橋町マンション | 物件情報
物件の設備
- 公営水道
- 食器洗浄乾燥機
- 浴室乾燥機
- フローリング
- フローリング張替
- バルコニー
- 南面バルコニー
物件の特徴
- 管理人日勤
- 内装リフォーム済
- 2沿線利用可
- 3沿線以上利用可
- 即入居可
- ペット不可
物件詳細情報
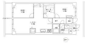
| 価格 | 3,480万円 | 間取り | 2LDK |
|---|---|---|---|
| 物件種別 | 中古マンション | ||
| 所在地 | 大阪府大阪市天王寺区小橋町14-78 | ||
| アクセス |
|
||
| 専有面積 | 壁芯 60.87㎡ | 所在階 | 14階建/5階部分 |
| 主要採光 | 南向 | バルコニー | 南向7.84㎡ |
| その他 | |||
| 権利 | 所有権 |
||
| 保証・評価 | |||
| リフォーム | 【水回り】2025年03月 キッチン・浴室・トイレ 【内装】2025年03月 床 ・全室クロス |
||
| 総戸数 | 150戸 | 面積 | |
| 築年月 | 1977年(昭和52年)10月築 | 建物構造 | SRC |
| 施工会社 | 近鉄住宅建設(株) | ||
| 管理会社 | 近鉄住宅建設(株) | 管理方式 | 全部委託 日勤管理 |
| 駐車場 | |||
| 都市計画 | 用途地域 | 商業 | |
| 建ぺい/容積率 | 土地国土法 | ||
| 法令制限 | |||
| 小学区 | 味原小学校 徒歩4分 (約280m) | 中学区 | 高津中学校 徒歩12分 (約950m) |
| 現況 | 空 | 引渡 | 即 |
| 管理費 | 6,600円/月 | 修繕積立金 | |
| その他費用 | |||
| 備考 | 阪急オアシス桃坂店まで約5分、真田山公園まで約9分 | ||
| 物件番号 | 4323528 | 取引態様 | 媒介 |
取扱店舗情報
ハウスドゥ 玉造駅前 株式会社ホワイトマルベリーホーム 店舗詳細ページへ
| 電話番号 | 06-6191-1515 |
|---|---|
| 所在地 | 〒543-0014 大阪府大阪市天王寺区玉造元町2番7号 |
| 営業時間 | 9:30~18:30 |
| 定休日 | 火曜日、水曜日 |
| 宅建免許番号 | 大阪府知事(2)第60854号 |
| アクセス | 店舗への地図はこちら |

来店ご予約
大阪府大阪市天王寺区で価格が似ている物件はこちら
- 大阪府
マイページ物件数 - 18,866件
大阪府中古マンション新着物件
-
-

-
- 中古マンション
- 3,490万円
-
豊中市上新田4丁目
-
北大阪急行南北線千里中央駅
-
-
-

-
- 中古マンション
- 2,280万円
-
大阪市此花区春日出中1丁目
-
阪神電鉄阪神なんば線千鳥橋駅
-
-
-

-
- 中古マンション
- 6,698万円
-
吹田市青山台2丁目
-
阪急電鉄千里線北千里駅
-
-
-

-
- 中古マンション
- 780万円
-
箕面市如意谷3丁目
-
阪急電鉄箕面線箕面駅
-
-
-

-
- 中古マンション
- 1,450万円
-
堺市北区新金岡町3丁
-
大阪市御堂筋線新金岡駅
-
-
-

-
- 中古マンション
- 2,280万円
-
大阪市西淀川区佃5丁目
-
阪神電鉄本線千船駅
-
-
-

-
- 中古マンション
- 3,480万円
-
大阪市西淀川区大和田3丁目
-
阪神電鉄本線千船駅
-
- お近くの店舗を探す
-
おすすめ物件
-
-

-
- 中古マンション
- 4,998万円
-
吹田市芳野町
-
大阪市御堂筋線江坂
-
-
-

-
- 中古マンション
- 3,299万円
-
吹田市江坂町2丁目
-
大阪市御堂筋線江坂
-
-
-

-
- 中古マンション
- 3,180万円
-
大阪市淀川区西宮原1丁目
-
大阪市御堂筋線新大阪
-
-
-

-
- 中古マンション
- 2,098万円
-
泉大津市田中町
-
南海電鉄本線泉大津
-
-
-

-
- 中古マンション
- 4,090万円
-
八尾市永畑町3丁目
-
JR関西本線八尾
-
-
-

-
- 中古マンション
- 2,380万円
-
大阪市住之江区平林南2丁目
-
南港ポートタウン線(ニュートラム)平林
-
-
-

-
- 中古マンション
- 2,380万円
-
茨木市東奈良3丁目
-
阪急電鉄京都線南茨木
-
-
-

-
- 中古マンション
- 1,080万円
-
泉大津市東港町
-
南海電鉄本線泉大津
-
-
-

-
- 中古マンション
- 4,580万円
-
八尾市山城町2丁目
-
近鉄大阪線近鉄八尾
-
-
-

-
- 中古マンション
- 2,480万円
-
大阪市淀川区西中島2丁目
-
阪急電鉄京都線南方
-










