藤和ライブタウン茨木南春日丘4番館 茨木市南春日丘7丁目の中古マンション
掲載情報更新日:2025年11月30日 次回更新予定日:2025年12月14日
- 2,500万円
-
- 借入ご希望金額
万円 - 借入期間
年 - 借入金利
% - 月々のお支払い金額
円
- 借入ご希望金額
※ 月々のお支払例は目安の試算となりますので、実際の金額とは異なる場合がございます。詳しくは店舗までお問合わせください。
- 茨木市南春日丘7丁目
-
大阪モノレール彩都『阪大病院前』 徒歩9分 (約720m)
茨木市南春日丘7丁目マンション | 物件情報
物件の設備
- 公営水道
- 下水道
- 都市ガス
- カウンターキッチン
- 温水洗浄便座
- 全居室収納
物件の特徴
- 管理人日勤
- 即入居可
- ペット相談
- ペット対応
物件詳細情報
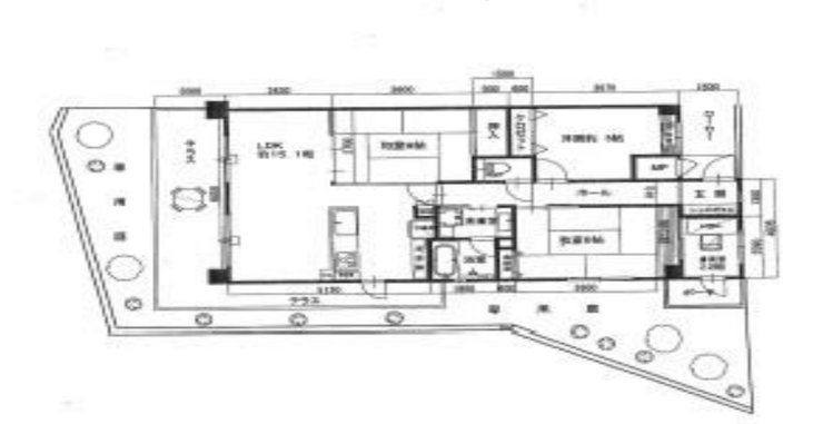
| 価格 | 2,500万円 | 間取り | 3LDK+S |
|---|---|---|---|
| 物件種別 | 中古マンション | ||
| 所在地 | 大阪府茨木市南春日丘7丁目 | ||
| アクセス |
|
||
| 専有面積 | 80.15㎡ | 所在階 | 3階建/1階部分 |
| 主要採光 | 南向 | バルコニー | |
| その他 | |||
| 権利 | 所有権 |
||
| 保証・評価 | |||
| リフォーム | |||
| 総戸数 | 99戸 | 面積 | |
| 築年月 | 1999年(平成11年)07月築 | 建物構造 | 鉄骨 |
| 施工会社 | |||
| 管理会社 | 管理方式 | 全部委託 日勤管理 | |
| 駐車場 | |||
| 都市計画 | 用途地域 | ||
| 建ぺい/容積率 | 土地国土法 | ||
| 法令制限 | |||
| 小学区 | 中学区 | ||
| 現況 | 空 | 引渡 | 即 |
| 管理費 | 11,900円/月 | 修繕積立金 | 13,080円/月 |
| その他費用 | |||
| 周辺環境 | 大阪モノレール彩都線阪大病院前駅 徒歩7分 (約560m) ファミリーマート茨木美穂ヶ丘店 徒歩8分 (約570m) 大阪大学医学部附属病院 徒歩8分 (約570m) 美穂ヶ丘公園 徒歩8分 (約570m) 国立民族学博物館 徒歩23分 (約1830m) |
||
| 備考 | |||
| 物件番号 | 4385906 | 取引態様 | 媒介 |
取扱店舗情報
ハウスドゥ 阪急茨木市駅南 株式会社エムアイエム 店舗詳細ページへ
| 電話番号 | 072-697-8701 |
|---|---|
| 所在地 | 〒567-0827 大阪府茨木市稲葉町11-8 ローズビルウチダ1F |
| 営業時間 | 10:00~19:00 |
| 定休日 | 水曜日、年末年始 |
| 宅建免許番号 | 大阪府知事(1)第64466号 |
| アクセス | 店舗への地図はこちら |

来店ご予約
大阪府茨木市で価格が似ている物件はこちら
- 大阪府
マイページ物件数 - 15,946件
最近見た物件
大阪府中古マンション新着物件
-
-

-
- 中古マンション
- 2,090万円
-
大阪市東住吉区山坂1丁目
-
大阪市谷町線田辺駅
-
-
-

-
- 中古マンション
- 850万円
-
門真市千石東町
-
京阪本線大和田駅
-
-
-

-
- 中古マンション
- 1,980万円
-
大阪市浪速区幸町1丁目
-
大阪市千日前線桜川駅
-
-
-

-
- 中古マンション
- 2,850万円
-
豊中市東泉丘4丁目
-
北大阪急行南北線桃山台駅
-
-
-

-
- 中古マンション
- 3,898万円
-
吹田市山田市場
-
JR東海道線千里丘駅
-
-
-

-
- 中古マンション
- 7,980万円
-
豊中市寺内1丁目
-
北大阪急行南北線緑地公園駅
-
-
-

-
- 中古マンション
- 2,700万円
-
豊中市曽根南町2丁目
-
阪急電鉄宝塚線曽根駅
-
- お近くの店舗を探す
-
おすすめ物件
-
-

-
- 中古マンション
- 3,280万円
-
西宮市小松東町3丁目
-
阪神電鉄本線武庫川
-
-
-

-
- 中古マンション
- 2,780万円
-
大阪市淀川区新高1丁目
-
阪急電鉄神戸線神崎川
-
-
-

-
- 中古マンション
- 1,250万円
-
茨木市白川3丁目
-
阪急電鉄京都線茨木市
-
-
-

-
- 中古マンション
- 4,580万円
-
茨木市上穂積1丁目
-
JR東海道線茨木
-
-
-

-
- 中古マンション
- 7,480万円
-
吹田市垂水町2丁目
-
大阪市御堂筋線江坂
-
-
-

-
- 中古マンション
- 2,190万円
-
大阪市淀川区三国本町1丁目
-
大阪市御堂筋線新大阪
-
-
-

-
- 中古マンション
- 2,580万円
-
大阪市住吉区墨江4丁目
-
南海電鉄高野線沢ノ町
-
-
-

-
- 中古マンション
- 4,980万円
-
吹田市江の木町
-
大阪市御堂筋線江坂
-
-
-

-
- 中古マンション
- 1,730万円
-
茨木市藤の里1丁目
-
大阪モノレール彩都豊川
-
-
-

-
- 中古マンション
- 2,990万円
-
大阪市住之江区北加賀屋5丁目
-
大阪市四つ橋線北加賀屋
-




