Loading
  1. TOP>
  2. 中古マンション>
  3. 近畿>
  4. 大阪府>
  5. 茨木市>
  6. 宇野辺1丁目>
  7. シャンボール茨木 茨木市宇野辺1丁目の中古マンション

シャンボール茨木 茨木市宇野辺1丁目の中古マンション

掲載情報更新日:2025年10月13日 次回更新予定日:2025年10月27日

  • 1,498万円
    • 借入ご希望金額
      万円
    • 借入期間
    • 借入金利
    • 月々のお支払い金額

※ 月々のお支払例は目安の試算となりますので、実際の金額とは異なる場合がございます。詳しくは店舗までお問合わせください。

  • 茨木市宇野辺1丁目
  • 大阪モノレール『宇野辺』 徒歩13分 (約1040m)
    阪急電鉄京都線『南茨木』 徒歩13分 (約1040m)
    JR東海道線『茨木』 徒歩19分 (約1520m)
取扱会社:ハウスドゥ 阪急茨木市駅南  株式会社エムアイエム
  • この物件に資料請求・問い合わせをする
  • ■お電話はこちら 通話料無料 0120-678-976

茨木市宇野辺1丁目マンション | 物件情報

◇2025年6月改装工事完了! ◇駅徒歩13分! ◇8階のお部屋!

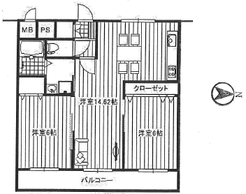
【間取り】

【間取り】

【洋室】

【洋室】

取扱会社
ハウスドゥ 阪急茨木市駅南  
  • この物件に資料請求・問い合わせをする
  • ■お電話はこちら 通話料無料 0120-678-976

アピールポイント

住宅ローン・資金計画にお悩みの方、是非当社にご相談ください!
住宅購入・お住み替えにつきもののお悩みを一緒に解決していきましょう!

・頭金0円で購入したい・・・
・駅近くのマンションに住み替えたい・・・
・住宅ローンが通るか不安・・・
・頭金が用意できない・・・
・毎月いくらまで払えるかわからない・・・

など、様々なお悩みをお持ちの方。

お気軽にお申し付け下さい♪

★物件のご内覧は、ご自宅への送迎や指定場所お待合わせでのご案内可。
★キッズスペース完備!DVDおもちゃなどご用意していますので安心してご来店ください。
★お客様専用駐車場完備!お気軽にご来店お待ちいたしております。

物件の設備

  • 浄水器
  • システムキッチン
  • 浴室乾燥機
  • 温水洗浄便座
  • 洗髪洗面化粧台
  • モニタ付インターホン
  • 和室
  • 全居室6畳以上
  • 全室フローリング
  • クローゼット
  • 全居室収納
  • エレベーター

物件の特徴

  • 管理人常駐
  • 内装リフォーム済
  • 内装リフォーム後渡
  • 2沿線利用可
  • 駅まで平坦
  • 小学校徒歩10分以内
  • 整備された歩道
  • スーパーが近い
  • 眺望良好
  • 通風良好
  • 陽当り良好
  • 高層階
  • 前面棟無
  • 平坦地

物件詳細情報

住宅ローン・資金計画にお悩みの方、是非当社にご相談ください!住宅購入・お住み替えにつきもののお悩みを一緒に解決していきましょう!お気軽にお申し付け下さい♪

価格 1,498万円 間取り 2LDK
物件種別 中古マンション
所在地 大阪府茨木市宇野辺1丁目
アクセス
  • 大阪モノレール『宇野辺』 徒歩13分 (約1040m)
  • 阪急電鉄京都線『南茨木』 徒歩13分 (約1040m)
  • JR東海道線『茨木』 徒歩19分 (約1520m)
専有面積 壁芯 57.60㎡ 所在階 11階建/8階部分
主要採光 東向 バルコニー
その他
権利 所有権
保証・評価
リフォーム 【水回り】2025年06月
キッチン・浴室・トイレ・洗面
総戸数 196戸 面積
築年月 1974年(昭和49年)11月築 建物構造 SRC
施工会社
管理会社 株式会社秀栄興産 管理方式 全部委託 常駐管理
駐車場
都市計画
用途地域 工業
建ぺい/容積率 土地国土法
法令制限
小学区 穂積小学校 徒歩13分 (約1010m) 中学区 西陵中学校 徒歩26分 (約2080m)
現況 引渡 相談
管理費 8,400円/月 修繕積立金 4,230円/月
その他費用
周辺環境 宇野辺駅(大阪モノレール) 徒歩8分 (約640m)
阪急南茨木駅 徒歩14分 (約1050m)
JR茨木 徒歩23分 (約1840m)
ファミリーマート吹田青葉丘店 徒歩5分 (約340m)
セブンイレブン青葉丘南店 徒歩6分 (約450m)
西松屋 吹田青葉丘店 徒歩6分 (約430m)
イオンモール茨木 徒歩15分 (約1150m)
茨木市立穂積図書館 徒歩15分 (約1150m)
茨木市立穂積小学校 徒歩13分 (約1010m)
茨木市立西陵中学校 徒歩26分 (約2080m)
備考
物件番号 4394875 取引態様 媒介

取扱店舗情報

ハウスドゥ 阪急茨木市駅南  株式会社エムアイエム 店舗詳細ページへ

電話番号 072-697-8701
所在地 〒567-0827
大阪府茨木市稲葉町11-8 ローズビルウチダ1F
営業時間 10:00~19:00
定休日 水曜日、年末年始
宅建免許番号 大阪府知事(1)第64466号
アクセス 店舗への地図はこちら

ハウスドゥ  阪急茨木市駅南の外観

この物件に関する資料請求・お問合せ

通話料無料 0120-678-976

お問い合わせの際に「ホームページを見た」といっていただくとお話がスムーズになります。

来店ご予約

ウィンドウを閉じる

ハウスドゥ 阪急茨木市駅南  株式会社エムアイエムへの地図

  • ハウスドゥ  阪急茨木市駅南の地図
  • ハウスドゥ  阪急茨木市駅南の外観

GoogleMapで地図を見る

ウィンドウを閉じる

大阪府茨木市で価格が似ている物件はこちら

戻る

次へ

  • 中古マンション 2023.11.19

    詳細を見る

  • 中古マンション 2024.01.29
    • 概観画像
    • 1,490万円
    • 茨木市白川3丁目

    • 阪急電鉄京都線「茨木市駅」バス乗車12分 バス停「白川3丁目」まで徒歩3分

    • 3LDK

    詳細を見る

  • 中古マンション 2024.01.29
    • 概観画像
    • 1,490万円
    • 茨木市白川3丁目

    • 阪急電鉄京都線「茨木市駅」バス乗車12分 バス停「白川三丁目」まで徒歩3分

    • 3LDK

    詳細を見る

  • 中古マンション 2024.02.02
    • 概観画像
    • 1,490万円
    • 茨木市白川3丁目

    • 阪急電鉄京都線「茨木市駅」バス乗車12分 バス停「京阪バス白川3丁目」まで徒歩3分

    • 3LDK

    詳細を見る

  • 中古マンション 2024.02.23
    • 概観画像
    • 1,580万円
    • 茨木市白川3丁目

    • JR東海道線「茨木駅」バス乗車26分 バス停「白川三丁目」まで徒歩1分

    • 3LDK

    詳細を見る

  • 中古マンション 2024.06.11

    詳細を見る

  • 中古マンション 2024.09.26

    詳細を見る

  • 中古マンション 2024.10.20

    詳細を見る

  • 中古マンション 2024.11.14

    詳細を見る

  • 中古マンション 2025.02.22

    詳細を見る

  • 中古マンション 2025.03.08

    詳細を見る

  • 中古マンション 2025.03.09

    詳細を見る

  • 中古マンション 2025.03.29

    詳細を見る

  • 中古マンション 2025.04.26

    詳細を見る

  • 中古マンション 2025.05.16

    詳細を見る

  • 中古マンション 2025.05.18

    詳細を見る

  • 中古マンション 2025.06.06

    詳細を見る

  • 中古マンション 2025.06.29

    詳細を見る

  • 中古マンション 2025.07.05

    詳細を見る

  • 中古マンション 2025.07.11

    詳細を見る

  • 中古マンション 2025.07.18

    詳細を見る

  • 中古マンション 2025.09.01

    詳細を見る

  • 中古マンション 2025.09.02

    詳細を見る

  • 中古マンション 2025.09.14

    詳細を見る

  • 中古マンション 2025.09.15

    詳細を見る

  • 中古マンション 2025.10.03 new
    • 間取画像
    • 1,480万円
    • 茨木市平田台

    • 阪急電鉄京都線「茨木市駅」バス乗車7分 バス停「近鉄バス平田一丁目」まで徒歩3分

    • 3LDK

    詳細を見る

  • 中古マンション 2025.10.05 new
    • 間取画像
    • 1,570万円
    • 茨木市平田2丁目

    • 阪急電鉄京都線「茨木市駅」バス乗車15分 バス停「平田1丁目」まで徒歩5分

    • 3LDK

    詳細を見る

  • 中古マンション 2025.10.06 new

    詳細を見る

  • 中古マンション 2025.10.06 new
    • 概観画像
    • 1,570万円
    • 茨木市平田2丁目

    • 阪急電鉄京都線「茨木市駅」バス乗車9分 バス停「近鉄バス平田一丁目」まで徒歩5分

    • 3LDK

    詳細を見る

  • 中古マンション 2025.10.06 new
    • 概観画像
    • 1,480万円
    • 茨木市平田台

    • 阪急電鉄京都線「茨木市駅」バス乗車9分 バス停「近鉄バス平田一丁目」まで徒歩3分

    • 3LDK

    詳細を見る

  • 中古マンション 2025.10.10 new

    詳細を見る

  • 中古マンション 2025.10.20 new

    詳細を見る

大阪府茨木市の 中古マンション 一覧から探す

大阪府茨木市で種別を変更して探す

大阪府
マイページ物件数
14,495

マイページサービス

新規登録(無料)
  • 物件探しがもっと便利に
  • 希望情報をいち早くお届け
  • マイページ物件が閲覧可能

最近見た物件

大阪府中古マンション新着物件

お近くの店舗を探す

おすすめ物件

無料アプリ