アカシヤコート藻岩 札幌市南区川沿三条2丁目の中古マンション
掲載情報更新日:2026年01月01日 次回更新予定日:2026年01月15日
- 700万円
-
- 借入ご希望金額
万円 - 借入期間
年 - 借入金利
% - 月々のお支払い金額
円
- 借入ご希望金額
※ 月々のお支払例は目安の試算となりますので、実際の金額とは異なる場合がございます。詳しくは店舗までお問合わせください。
- 札幌市南区川沿三条2丁目
-
札幌市南北線『真駒内』 バス乗車12分 川沿4条3丁目 停 徒歩3分 (約240m)
札幌市南北線『すすきの』 バス乗車30分 川沿4条3丁目 停 徒歩3分 (約240m)
JR函館本線『札幌』 バス乗車47分 川沿4条3丁目 停 徒歩3分 (約240m)
札幌市南区川沿三条2丁目マンション | 物件情報
【敷地内駐車場確保済み!】~家族が安心して過ごせるちょうどいい暮らし♪~
.
□ 地下鉄南北線「真駒内」駅 バス乗車12分
中央バス「川沿4条3丁目」停 徒歩3分
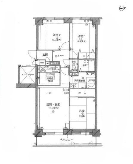
■ 専有面積:72.28㎡(約21.86坪)の3LDK♪
□ 地下1階付10階建ての2階部分
■ 駐車場空有 6.000円/月
□ 駐輪場 100円/月
■ トランクルームあり 500円/月
□ 東向きバルコニーだからこそ出会える朝の絶景
■ 全居室6帖以上のゆとり空間、心地よさ広がる住まい
□ 「暮らしの中心に“自分時間”を。」独立キッチンで集中できるひととき
日々の暮らしを支えるお店がすぐそばに。軽やかに、心地よく過ごせる街並みです☆
ご内覧も可能です!お気軽にお問い合わせください♪
物件の設備
- プロパンガス
- 集中プロパン
- システムキッチン
- 独立キッチン
- バス
- シャワー
- トイレ
- 室内洗濯機置場
- 灯油
- 可動間仕切
- 全居室6畳以上
- クローゼット
- トランクルーム
- 押入
- シューズボックス
- バルコニー
- ワイドバルコニー
- エレベーター
- 駐輪場
物件の特徴
- 管理人日勤
- 小学校徒歩10分以内
- スーパーが近い
- 通風良好
- 陽当り良好
- 即入居可
物件詳細情報
| 価格 | 700万円 | 間取り | 3LDK |
|---|---|---|---|
| 物件種別 | 中古マンション | ||
| 所在地 | 北海道札幌市南区川沿三条2丁目 | ||
| アクセス |
|
||
| 専有面積 | 壁芯 72.28㎡ | 所在階 | 10階建/2階部分 |
| 主要採光 | 東向 | バルコニー | 東向7.32㎡ |
| その他 | |||
| 権利 | 所有権 |
||
| 保証・評価 | |||
| リフォーム | |||
| 総戸数 | 116戸 | 面積 | |
| 築年月 | 1988年(昭和63年)10月築 | 建物構造 | SRC |
| 施工会社 | 三井建設株式会社 | ||
| 管理会社 | 太平洋興発株式会社 | 管理方式 | 一部管理 日勤管理 |
| 駐車場 | 【駐車場】空有 料金:6,000円/月 【駐輪場】あり |
||
| 都市計画 | 用途地域 | 2種住居 | |
| 建ぺい/容積率 | 土地国土法 | ||
| 法令制限 | |||
| 小学区 | 藻岩北小学校 徒歩5分 (約400m) | 中学区 | 藻岩中学校 徒歩14分 (約1100m) |
| 現況 | 空 | 引渡 | 即 |
| 管理費 | 6,500円/月 | 修繕積立金 | 11,930円/月 |
| その他費用 | トランクルーム使用料:500円/月 |
||
| 周辺環境 | サツドラ川沿店 徒歩4分 (約300m) コープさっぽろ ソシア店 徒歩12分 (約940m) セイコーマート ともえや店 徒歩15分 (約1140m) セイコーマートたけだ川沿店 徒歩14分 (約1090m) 北ノ沢公園 徒歩20分 (約1530m) ホクレンショップ 中ノ沢店 徒歩15分 (約1130m) サツドラ中ノ沢店 徒歩15分 (約1130m) 札幌市立藻岩中学校 徒歩16分 (約1230m) |
||
| 備考 | |||
| 物件番号 | 4425480 | 取引態様 | 媒介 |
取扱店舗情報
| 電話番号 | 011-299-9256 |
|---|---|
| 所在地 | 〒007-0842 北海道札幌市東区北42条東16丁目1-1 |
| 営業時間 | 9:00~18:00 |
| 定休日 | 水曜日、年末年始 |
| 宅建免許番号 | 北海道知事石狩(2)第8906号 |
| アクセス | 店舗への地図はこちら |

来店ご予約
北海道札幌市南区で価格が似ている物件はこちら
- 北海道
マイページ物件数 - 6,116件
最近見た物件
-
-

-
- 中古マンション
- 2,390万円
-
倉敷市川西町
-
JR山陽本線倉敷
-
-
-

-
- 土地
- 400万円
-
室蘭市日の出町2丁目
-
JR室蘭本線鷲別
-
-
-

-
- 中古マンション
- 2,680万円
-
大阪市淀川区十三本町1丁目
-
阪急電鉄神戸線十三
-
北海道中古マンション新着物件
-
-

-
- 中古マンション
- 2,790万円
-
札幌市東区北十八条東19丁目
-
札幌市東豊線環状通東駅
-
-
-

-
- 中古マンション
- 2,290万円
-
札幌市厚別区大谷地東4丁目
-
札幌市東西線大谷地駅
-
-
-

-
- 中古マンション
- 1,380万円
-
札幌市南区真駒内本町7丁目
-
札幌市南北線真駒内駅
-
-
-

-
- 中古マンション
- 3,190万円
-
札幌市中央区大通西26丁目
-
札幌市東西線円山公園駅
-
-
-

-
- 中古マンション
- 2,390万円
-
札幌市中央区北六条西25丁目
-
札幌市東西線西28丁目駅
-
-
-

-
- 中古マンション
- 1,250万円
-
札幌市清田区真栄五条1丁目
-
札幌市東豊線福住駅
-
-
-

-
- 中古マンション
- 2,190万円
-
札幌市北区北三十一条西12丁目
-
札幌市南北線北34条駅
-
- お近くの店舗を探す
-
おすすめ物件
-
-

-
- 中古マンション
- 3,490万円
-
札幌市白石区南郷通16丁目南
-
札幌市東西線南郷18丁目
-
-
-

-
- 中古マンション
- 1,180万円
-
小樽市奥沢1丁目
-
JR函館本線小樽
-
-
-

-
- 中古マンション
- 2,180万円
-
小樽市花園3丁目
-
JR函館本線南小樽
-
-
-

-
- 中古マンション
- 2,650万円
-
札幌市中央区北八条西24丁目
-
札幌市東西線二十四軒
-
-
-

-
- 中古マンション
- 1,580万円
-
札幌市北区北三十九条西5丁目
-
札幌市南北線麻生
-
-
-

-
- 中古マンション
- 1,780万円
-
札幌市北区新琴似八条6丁目
-
JR札沼線新琴似
-
-
-

-
- 中古マンション
- 700万円
-
札幌市豊平区美園五条7丁目
-
札幌市東豊線美園
-
-
-

-
- 中古マンション
- 1,280万円
-
札幌市北区篠路六条8丁目
-
JR札沼線篠路
-
-
-

-
- 中古マンション
- 1,990万円
-
札幌市西区二十四軒三条5丁目
-
札幌市東西線二十四軒
-
-
-

-
- 中古マンション
- 640万円
-
札幌市南区真駒内南町4丁目
-
札幌市南北線真駒内
-







担当エージェント:小笠原 敬貴
イオン札幌藻岩店まで徒歩8分!
広々とした店内で、日用品から食品まで何でも揃う便利な場所です♪
住宅ローン等住宅購入に関する事はなんでもご相談下さい! ハウスドゥ札幌栄町 011-299-9256