ネオコーポ茨木 茨木市藤の里1丁目の中古マンション
掲載情報更新日:2025年11月22日 次回更新予定日:2025年12月06日
- 1,830万円
-
- 借入ご希望金額
万円 - 借入期間
年 - 借入金利
% - 月々のお支払い金額
円
- 借入ご希望金額
※ 月々のお支払例は目安の試算となりますので、実際の金額とは異なる場合がございます。詳しくは店舗までお問合わせください。
- 茨木市藤の里1丁目
-
JR東海道線『茨木』 バス乗車12分 宿川原 停 徒歩4分 (約320m)
茨木市藤の里1丁目マンション | 物件情報
物件の設備
- 公営水道
- 公共下水
- 都市ガス
- 給湯
- システムキッチン
- バス
- トイレ
- 室内洗濯機置場
- 洗髪洗面化粧台
- LDK15畳以上
- 和室
- フローリング
- フローリング張替
- クローゼット
- シューズボックス
- バルコニー
- 3面バルコニー
- エレベーター
物件の特徴
- 管理人日勤
- 内装リフォーム済
- 緑豊かな住宅地
- 閑静な住宅街
- 通風良好
- 陽当り良好
- 即入居可
物件詳細情報
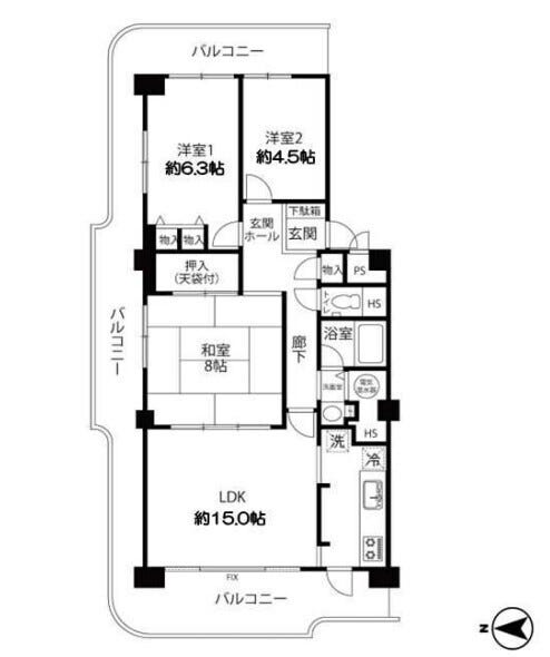
| 価格 | 1,830万円 | 間取り | 3LDK |
|---|---|---|---|
| 物件種別 | 中古マンション | ||
| 所在地 | 大阪府茨木市藤の里1丁目8 | ||
| アクセス |
|
||
| 専有面積 | 壁芯 76.33㎡ | 所在階 | 11階建/10階部分 |
| 主要採光 | 西向 | バルコニー | 北向32.72㎡ |
| その他 | |||
| 権利 | 所有権 |
||
| 保証・評価 | |||
| リフォーム | 【水回り】2025年05月 キッチン・浴室・トイレ・洗面 【内装】2025年05月 壁、天井 ・床 ・全室クロス |
||
| 総戸数 | 208戸 | 面積 | |
| 築年月 | 1980年(昭和55年)04月築 | 建物構造 | SRC |
| 施工会社 | |||
| 管理会社 | 大和ライフネクスト株式会社 | 管理方式 | 全部委託 日勤管理 |
| 駐車場 | 【駐車場】空無 |
||
| 都市計画 | 市街化区域 |
用途地域 | 準工業 |
| 建ぺい/容積率 | 60% / 200% | 土地国土法 | |
| 法令制限 | |||
| 小学区 | 豊川小学校 徒歩27分 (約2100m) | 中学区 | 豊川中学校 徒歩3分 (約200m) |
| 現況 | 空 | 引渡 | 即 |
| 管理費 | 6,180円/月 | 修繕積立金 | 8,940円/月 |
| その他費用 | |||
| 備考 | |||
| 物件番号 | 4436835 | 取引態様 | 媒介 |
取扱店舗情報
ハウスドゥ 高槻富田 株式会社コンフォート住宅販売 店舗詳細ページへ
| 電話番号 | 072-668-2246 |
|---|---|
| 所在地 | 〒569-0814 大阪府高槻市富田町3丁目15-15 |
| 営業時間 | 10:00~19:00 |
| 定休日 | 水曜日、年末年始 |
| 宅建免許番号 | 大阪府知事(2)第61490号 |
| アクセス | 店舗への地図はこちら |

来店ご予約
大阪府茨木市で価格が似ている物件はこちら
- 大阪府
マイページ物件数 - 15,503件
最近見た物件
大阪府中古マンション新着物件
- お近くの店舗を探す
-
おすすめ物件
-
-

-
- 中古マンション
- 2,990万円
-
大阪市住之江区北加賀屋5丁目
-
大阪市四つ橋線北加賀屋
-
-
-

-
- 中古マンション
- 2,598万円
-
大阪市淀川区新高4丁目
-
阪急電鉄宝塚線三国
-
-
-

-
- 中古マンション
- 780万円
-
大阪市住之江区粉浜西3丁目
-
南海電鉄本線住吉大社
-
-
-

-
- 中古マンション
- 5,280万円
-
茨木市若草町
-
大阪モノレール南茨木
-
-
-

-
- 中古マンション
- 2,280万円
-
八尾市永畑町3丁目
-
JR関西本線八尾
-
-
-

-
- 中古マンション
- 1,598万円
-
泉大津市東雲町
-
南海電鉄本線泉大津
-
-
-

-
- 中古マンション
- 1,580万円
-
和泉市伏屋町5丁目
-
南海電鉄泉北線光明池
-
-
-

-
- 中古マンション
- 1,780万円
-
大阪市淀川区木川東4丁目
-
JR山陽新幹線新大阪
-
-
-

-
- 中古マンション
- 1,180万円
-
茨木市東太田1丁目
-
JR東海道線JR総持寺
-
-
-

-
- 中古マンション
- 1,480万円
-
泉大津市助松町3丁目
-
南海電鉄本線松ノ浜
-













