日商岩井京橋ハイツ
NEW 11.12掲載情報更新日:2025年11月12日 次回更新予定日:2025年11月26日
- 2,100万円
-
- 借入ご希望金額
万円 - 借入期間
年 - 借入金利
% - 月々のお支払い金額
円
- 借入ご希望金額
※ 月々のお支払例は目安の試算となりますので、実際の金額とは異なる場合がございます。詳しくは店舗までお問合わせください。
- 大阪市城東区中央1丁目
-
大阪市長堀鶴見緑地線『蒲生四丁目』 徒歩5分 (約400m)
京阪本線『野江』 徒歩11分 (約860m)
JR大阪環状線『京橋』 徒歩12分 (約960m)
日商岩井京橋ハイツマンション | 物件情報
2025年10月フルリフォーム済 蒲生四丁目駅徒歩5分! 3沿線3駅利用! 即内見可!
☆月々5.4万円~
☆2025年10月リフォーム済
☆最寄駅から京橋駅まで2分
※京橋駅まで徒歩12分
☆3沿線3駅利用可
☆駐車場あり ※空き状況要確認
☆近隣に学校、幼稚園、保育園、公園あり
☆複数スーパーあり
【内覧会開催中】
本日ご案内可能な場合もございます。
複数件併せてご内見も可能♪
他の掲載物件もまとめてご内見頂けます。気になる物件をお教え下さい。
☆0120ー684-571
お気軽にお電話ください♪
☆立地のポイント
【蒲生四丁目駅】徒歩約5分
【野江駅】徒歩約11分
【京橋駅】徒歩約12分
物件の設備
- 公営水道
- 公共下水
- 都市ガス
- フローリング張替
- バルコニー
物件の特徴
- 管理人日勤
- 内装リフォーム済
- 即入居可
物件詳細情報
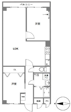
| 価格 | 2,100万円 | 間取り | 2LDK |
|---|---|---|---|
| 物件種別 | 中古マンション | ||
| 所在地 | 大阪府大阪市城東区中央1丁目 | ||
| アクセス |
|
||
| 専有面積 | 壁芯 67.50㎡ | 所在階 | 11階建/6階部分 |
| 主要採光 | 東向 | バルコニー | 東向5.40㎡ |
| その他 | |||
| 権利 | 所有権 |
||
| 保証・評価 | |||
| リフォーム | 【水回り】2025年10月 キッチン・浴室・トイレ・洗面 システムキッチン新調(食洗器付き)、浴室新調、洗面化粧台新調、トイレ新調、洗濯パン新調 【内装】2025年10月 壁、天井 ・床 ・建具 間取り変更、建具新調、壁紙貼替、下駄箱新調、モニター付きインターホン新調、フローリング貼替等 |
||
| 総戸数 | 263戸 | 面積 | |
| 築年月 | 1974年(昭和49年)03月築 | 建物構造 | SRC |
| 施工会社 | |||
| 管理会社 | 日本住宅管理(株) | 管理方式 | 全部委託 日勤管理 |
| 駐車場 | 【駐車場】空無 |
||
| 都市計画 | 市街化区域 |
用途地域 | 商業 |
| 建ぺい/容積率 | 80% / 400% | 土地国土法 | |
| 法令制限 | |||
| 小学区 | 聖賢小学校 徒歩6分 (約480m) | 中学区 | 蒲生中学校 徒歩11分 (約880m) |
| 現況 | 空 | 引渡 | 即 |
| 管理費 | 9,480円/月 | 修繕積立金 | 8,400円/月 |
| その他費用 | |||
| 周辺環境 | 業務用食品館 城東中央店 徒歩2分 (約130m) ローソン 城東蒲生二丁目店 徒歩3分 (約210m) がもう保育園 徒歩4分 (約300m) パントリー蒲生 徒歩4分 (約260m) 福永記念診療所 徒歩4分 (約260m) ローソン蒲生四丁目駅前店 徒歩5分 (約360m) 大阪市立聖賢小学校 徒歩6分 (約480m) 蒲生四丁目駅 徒歩5分 (約400m) ライフ 京橋店 徒歩6分 (約470m) 大阪市立鯰江小学校 徒歩9分 (約670m) |
||
| 備考 | |||
| 物件番号 | 4486189 | 取引態様 | 媒介 |
取扱店舗情報
| 電話番号 | 050-5805-9447 |
|---|---|
| 所在地 | 〒536-0006 大阪府大阪市城東区野江4丁目10-13 クリエイト野江内代1F |
| 営業時間 | 10:00~19:00 |
| 定休日 | なし |
| 宅建免許番号 | 国土交通大臣(1)第10706号 |
| アクセス | 店舗への地図はこちら |

来店ご予約
大阪府大阪市城東区で価格が似ている物件はこちら
- 大阪府
マイページ物件数 - 15,707件
最近見た物件
-
-

-
- 中古一戸建て
- 390万円
-
堺市北区野遠町
-
大阪市御堂筋線新金岡
-
-
-

-
- 中古一戸建て
- 680万円
-
紀の川市貴志川町長山
-
和歌山電鐵貴志川線西山口
-
大阪府中古マンション新着物件
- お近くの店舗を探す
-
おすすめ物件
-
-

-
- 中古マンション
- 4,080万円
-
大阪市住吉区南住吉4丁目
-
JR阪和線我孫子町
-
-
-

-
- 中古マンション
- 1,350万円
-
貝塚市窪田
-
南海電鉄本線二色浜
-
-
-

-
- 中古マンション
- 1,880万円
-
大阪市淀川区塚本3丁目
-
JR東海道線塚本
-
-
-

-
- 中古マンション
- 4,398万円
-
大阪市住之江区新北島1丁目
-
大阪市四つ橋線住之江公園
-
-
-

-
- 中古マンション
- 2,290万円
-
茨木市豊原町
-
JR東海道線茨木
-
-
-

-
- 中古マンション
- 4,980万円
-
吹田市垂水町3丁目
-
大阪市御堂筋線江坂
-
-
-

-
- 中古マンション
- 3,280万円
-
西宮市小松東町3丁目
-
阪神電鉄本線武庫川
-
-
-

-
- 中古マンション
- 2,990万円
-
大阪市住之江区北加賀屋5丁目
-
大阪市四つ橋線北加賀屋
-
-
-

-
- 中古マンション
- 3,990万円
-
茨木市園田町
-
阪急電鉄京都線茨木市
-
-
-

-
- 中古マンション
- 7,480万円
-
吹田市桃山台2丁目
-
北大阪急行南北線桃山台
-












































担当エージェント:尾関 親代
最寄駅蒲生四丁目駅徒歩5分!
京橋まで徒歩12分の好立地!
通勤通学に便利な3沿線3駅利用可!
落ち着いた住環境でファミリー層にも単身者にも◎♪
住宅ローン相談会開催中です!
ぜひお気軽にお問い合わせください!