シャルム千里丘 吹田市新芦屋下の中古マンション
NEW 12.01掲載情報更新日:2025年12月01日 次回更新予定日:2025年12月15日
- 1,688万円
-
- 借入ご希望金額
万円 - 借入期間
年 - 借入金利
% - 月々のお支払い金額
円
- 借入ご希望金額
※ 月々のお支払例は目安の試算となりますので、実際の金額とは異なる場合がございます。詳しくは店舗までお問合わせください。
- 吹田市新芦屋下
-
大阪モノレール『宇野辺』 徒歩12分 (約960m)
阪急電鉄京都線『南茨木』 徒歩21分 (約1680m)
JR東海道線『千里丘』 徒歩19分 (約1520m)
吹田市新芦屋下マンション | 物件情報
吹田エリアにフルリノベーションマンション(R8.1末完成)に堂々登場!!現地待ち合わせ可!
◆こちらのおうちはハウスドゥ新大阪東口が鍵をお預かりしておりますので、あらかじめご予約頂きましたらお仕事終わりの夜の時間帯でもご案内可能です。(ぜひご予約下さい)
◆
現地待ち合わせも可能です。ご相談下さい
◆
住宅ローンの場合、月々のお支払いは【46,092円】から。(金利0.8%・期間35年)
詳細については、弊社担当にご相談下さいませ!
・室内フルリフォーム(R8.1末完成)で即日内覧可能
・モノレール宇野辺駅まで徒歩12分、通勤や通学、お出掛けにも便利
・小学校、保育所、公園が徒歩10分圏内に有り、小さなお子様がいらっしゃる方にもオススメです
・スーパーフレスコまで徒歩6分など商業施設多数有り、毎日の買物にも非常に便利な立地
●リフォーム内容
〇システムキッチン交換
〇ユニットバス交換
〇洗面化粧台交換
〇トイレ交換
〇建具交換
〇給湯器交換 他
物件の設備
- 公営水道
- 公共下水
- 都市ガス
- 給湯
- コンロ三口
- システムキッチン
- バス
- シャワー
- トイレ
- 室内洗濯機置場
- 洗髪洗面化粧台
- 洗面所独立
- LDK18畳以上
- 和室
- 2面採光
- フローリング張替
- シューズボックス
- バルコニー
- エレベーター
物件の特徴
- 管理人日勤
- 内装リフォーム済
- 内装リフォーム後渡
- 2沿線利用可
- 駅まで平坦
- 整備された歩道
- 緑豊かな住宅地
- 閑静な住宅街
- 周辺交通量少なめ
- 24時間ゴミ出可
- 即入居可
- IT重説
オープンハウス・イベント情報
開催日時:公開中 09:00~21:00
開催場所:大阪府吹田市
物件詳細情報
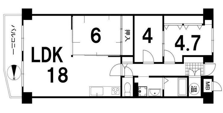
| 価格 | 1,688万円 | 間取り | 3LDK |
|---|---|---|---|
| 物件種別 | 中古マンション | ||
| 所在地 | 大阪府吹田市新芦屋下 | ||
| アクセス |
|
||
| 専有面積 | 壁芯 72.51㎡ | 所在階 | 6階建/5階部分 |
| 主要採光 | 東向 | バルコニー | 東向7.15㎡ |
| その他 | |||
| 権利 | 所有権 |
||
| 保証・評価 | |||
| リフォーム | 【水回り】2026年01月予定 キッチン・浴室・トイレ・洗面・給湯器 キッチン 浴室 トイレ 洗面 給湯器新調 他 【内装】2026年01月予定 全面 ・壁、天井 ・床 ・全室クロス ・建具 ・サッシ クロス 床 CF張替 建具交換 他 |
||
| 総戸数 | 46戸 | 面積 | |
| 築年月 | 1981年(昭和56年)11月築 | 建物構造 | RC |
| 施工会社 | |||
| 管理会社 | 管理方式 | 全部委託 日勤管理 管理組合あり | |
| 駐車場 | |||
| 都市計画 | 用途地域 | 1種中高 | |
| 建ぺい/容積率 | 土地国土法 | ||
| 法令制限 | |||
| 小学区 | 東山田小学校 徒歩11分 (約850m) | 中学区 | 千里丘中学校 徒歩11分 (約850m) |
| 現況 | 空 | 引渡 | 即 |
| 管理費 | 11,000円/月 | 修繕積立金 | 17,500円/月 |
| その他費用 | |||
| 周辺環境 | 宇野辺駅 徒歩11分 (約870m) JR東海道・千里丘 徒歩28分 (約2220m) スーパーフレスコ 徒歩6分 (約430m) 千里丘中学校 徒歩8分 (約620m) 東山田小学校 徒歩13分 (約1040m) |
||
| 備考 | |||
| 物件番号 | 4509350 | 取引態様 | 媒介 |
取扱店舗情報
ハウスドゥ 新大阪東口 株式会社トップレベル 店舗詳細ページへ
| 電話番号 | 06-6195-9101 |
|---|---|
| 所在地 | 〒533-0033 大阪府大阪市東淀川区東中島1丁目20-12 2階 |
| 営業時間 | 9:00~18:00 |
| 定休日 | 水曜日 |
| 宅建免許番号 | 大阪府知事(1)第64074号 |
| アクセス | 店舗への地図はこちら |

来店ご予約
大阪府吹田市で価格が似ている物件はこちら
- 大阪府
マイページ物件数 - 15,807件
最近見た物件
大阪府中古マンション新着物件
-
-

-
- 中古マンション
- 2,290万円
-
吹田市青葉丘南
-
大阪モノレール宇野辺駅
-
-
-

-
- 中古マンション
- 2,898万円
-
守口市八雲中町1丁目
-
大阪市谷町線守口駅
-
-
-

-
- 中古マンション
- 1,780万円
-
大阪市淀川区三国本町2丁目
-
大阪市御堂筋線新大阪駅
-
-
-

-
- 中古マンション
- 1,698万円
-
大阪市鶴見区放出東3丁目
-
JRおおさか東線放出駅
-
-
-

-
- 中古マンション
- 1,490万円
-
大阪市住之江区南港中4丁目
-
南港ポートタウン線(ニュートラム)ポートタウン東駅
-
-
-

-
- 中古マンション
- 2,350万円
-
大阪市住之江区平林南2丁目
-
南港ポートタウン線(ニュートラム)平林駅
-
-
-

-
- 中古マンション
- 1,680万円
-
大阪市住之江区南港中4丁目
-
南港ポートタウン線(ニュートラム)ポートタウン東駅
-
- お近くの店舗を探す
-
おすすめ物件
-
-

-
- 中古マンション
- 1,780万円
-
大阪市住之江区西住之江1丁目
-
南海電鉄本線住ノ江
-
-
-

-
- 中古マンション
- 5,198万円
-
吹田市芳野町
-
大阪市御堂筋線江坂
-
-
-

-
- 中古マンション
- 1,890万円
-
四條畷市大字中野
-
JR片町線忍ヶ丘
-
-
-

-
- 中古マンション
- 2,780万円
-
大阪市淀川区新高1丁目
-
阪急電鉄神戸線神崎川
-
-
-

-
- 中古マンション
- 5,380万円
-
茨木市庄2丁目
-
JR東海道線JR総持寺
-
-
-

-
- 中古マンション
- 1,180万円
-
泉大津市尾井千原町
-
南海電鉄本線北助松
-
-
-

-
- 中古マンション
- 2,999万円
-
大阪市住之江区新北島2丁目
-
大阪市四つ橋線住之江公園
-
-
-

-
- 中古マンション
- 3,480万円
-
大阪市住吉区墨江4丁目
-
南海電鉄高野線沢ノ町
-
-
-

-
- 中古マンション
- 4,880万円
-
吹田市垂水町3丁目
-
大阪市御堂筋線江坂
-
-
-

-
- 中古マンション
- 4,650万円
-
吹田市垂水町3丁目
-
大阪市御堂筋線江坂
-

























担当エージェント:大橋 徹也
◆こちらのおうちはハウスドゥ新大阪東口が鍵をお預かりしておりますので、あらかじめご予約頂きましたらお仕事終わりの夜の時間帯でもご案内可能です。(ぜひご予約下さい)
◆
現地待ち合わせも可能です。ご相談下さい
◆
住宅ローンの場合、月々のお支払いは【46,092円】から。(金利0.8%・期間35年)
詳細については、弊社担当にご相談下さいませ!
・室内フルリフォーム(R8.1末完成)で即日内覧可能
・モノレール宇野辺駅まで徒歩12分、通勤や通学、お出掛けにも便利
・小学校、保育所、公園が徒歩10分圏内に有り、小さなお子様がいらっしゃる方にもオススメです
・スーパーフレスコまで徒歩6分など商業施設多数有り、毎日の買物にも非常に便利な立地
●リフォーム内容
〇システムキッチン交換
〇ユニットバス交換
〇洗面化粧台交換
〇トイレ交換
〇建具交換
〇給湯器交換 他