グランドパレス大淀河畔 宮崎市吾妻町の中古マンション
NEW 12.01掲載情報更新日:2025年12月28日 次回更新予定日:2026年01月11日
- 3,400万円
-
- 借入ご希望金額
万円 - 借入期間
年 - 借入金利
% - 月々のお支払い金額
円
- 借入ご希望金額
※ 月々のお支払例は目安の試算となりますので、実際の金額とは異なる場合がございます。詳しくは店舗までお問合わせください。
- 宮崎市吾妻町
-
JR日豊本線『宮崎』 徒歩17分 (約1360m)
JR日豊本線『南宮崎』 徒歩20分 (約1570m)
JR日南線『田吉』 徒歩42分 (約3320m)
『吾妻町入口』 徒歩1分 (約80m)
宮崎市吾妻町マンション | 物件情報
\最上階/《いつでもご案内可能です♪》お気軽にお問い合わせください♪
▼オススメポイント
◎食器洗浄乾燥機付きで家事も楽々♪
◎最上階で眺望良好♪
◎中学校に近く通学に便利
▼立地
◎潮見小学校…徒歩11分(880m)
◎宮崎中学校…徒歩6分(460m)
◆◇当店について◇◆
〇不動産売買仲介専門FCで
店舗数第1位のハウスドゥ加盟店です
安心してご相談ください
■弊社サービスご案内
〇資金計画の無料相談
〇ハウスメーカー・工務店のご紹介
〇オプション、リフォーム、太陽光発電
のお見積もりから施工まで
〇保険の加入や引越しの段取り
物件の設備
- 公営水道
- プロパンガス
- 給湯
- 食器洗浄乾燥機
- IHクッキングヒータ
- カウンターキッチン
- バス
- ユニットバス
- 浴室乾燥機
- トイレ
- 温水洗浄便座
- 室内洗濯機置場
- オートロック
- 全居室収納
- エレベーター
物件の特徴
- 管理人日勤
- 南向
- 陽当り良好
- 最上階
- 平坦地
物件詳細情報
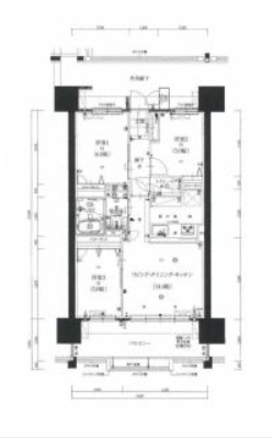
| 価格 | 3,400万円 | 間取り | 3LDK |
|---|---|---|---|
| 物件種別 | 中古マンション | ||
| 所在地 | 宮崎県宮崎市吾妻町 | ||
| アクセス |
|
||
| 専有面積 | 61.59㎡ | 所在階 | 15階建/14階部分 |
| 主要採光 | バルコニー | ||
| その他 | |||
| 権利 | |||
| 保証・評価 | |||
| リフォーム | |||
| 総戸数 | 130戸 | 面積 | |
| 築年月 | 2023年(令和5年)09月予定 | 建物構造 | RC |
| 施工会社 | |||
| 管理会社 | 管理方式 | 全部委託 日勤管理 | |
| 駐車場 | |||
| 都市計画 | 用途地域 | ||
| 建ぺい/容積率 | 土地国土法 | ||
| 法令制限 | |||
| 小学区 | 潮見小学校 徒歩11分 (約880m) | 中学区 | 宮崎中学校 徒歩6分 (約460m) |
| 現況 | 空 | 引渡 | 相談 |
| 管理費 | 7,800円/月 | 修繕積立金 | 6,500円/月 |
| その他費用 | |||
| 周辺環境 | セブンイレブン宮崎吾妻町店 徒歩2分 (約160m) 宮崎中学校 徒歩7分 (約530m) ローソン永楽町店 徒歩7分 (約560m) 宮崎小学校 徒歩12分 (約900m) ショッピングのだ出来島店 徒歩12分 (約910m) 潮見小学校 徒歩14分 (約1120m) ドラッグストアコスモス 城ケ崎店 徒歩14分 (約1100m) ファミリーマート潮見店 徒歩13分 (約1000m) ほっかほっか亭昭和店 徒歩15分 (約1170m) 宮崎学園高等学校 徒歩16分 (約1210m) |
||
| 備考 | ◎最上階 ◎食器洗浄乾燥機付き |
||
| 物件番号 | 4509353 | 取引態様 | 媒介 |
取扱店舗情報
| 電話番号 | 0985-66-0753 |
|---|---|
| 所在地 | 〒880-0872 宮崎県宮崎市永楽町17 |
| 営業時間 | 9:00~18:00 |
| 定休日 | 水曜日、年末年始 |
| 宅建免許番号 | 宮崎県知事(1)第5078号 |
| アクセス | 店舗への地図はこちら |

来店ご予約
宮崎県宮崎市で価格が似ている物件はこちら
- 宮崎県
マイページ物件数 - 1,676件
宮崎県中古マンション新着物件
- お近くの店舗を探す
-
























◎弊社は不動産売買仲介専門No.1FCブランドHOUSEDOの加盟店です。無理のない返済計画、低金利ネット銀行も含めお客様の状況に合わせた住宅ローンをご提案し安心安全なお取引をサポートいたします。