ユニ・アルス真田山南 大阪市天王寺区味原町の中古マンション
NEW 01.09掲載情報更新日:2026年01月09日 次回更新予定日:2026年01月23日
- 4,198万円
-
- 借入ご希望金額
万円 - 借入期間
年 - 借入金利
% - 月々のお支払い金額
円
- 借入ご希望金額
※ 月々のお支払例は目安の試算となりますので、実際の金額とは異なる場合がございます。詳しくは店舗までお問合わせください。
- 大阪市天王寺区味原町
-
大阪市千日前線『鶴橋』 徒歩4分 (約320m)
JR大阪環状線『鶴橋』 徒歩4分 (約320m)
近鉄難波・奈良線『鶴橋』 徒歩4分 (約320m)
大阪市天王寺区味原町マンション | 物件情報
物件の設備
- 公営水道
- 下水道
- 都市ガス
- 食器洗浄乾燥機
- ユニットバス
- 浴室乾燥機
- 温水洗浄便座
- オートロック
- クローゼット2箇所
- ウォークインクローゼット
- シューズボックス
- バルコニー
- 2面バルコニー
- ルーフバルコニー
- 南面バルコニー
物件の特徴
- 管理人巡回
- 内装リフォーム済
- 内装リフォーム後渡
- 角部屋
- 3方角住戸
物件詳細情報
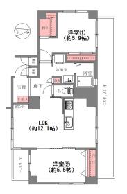
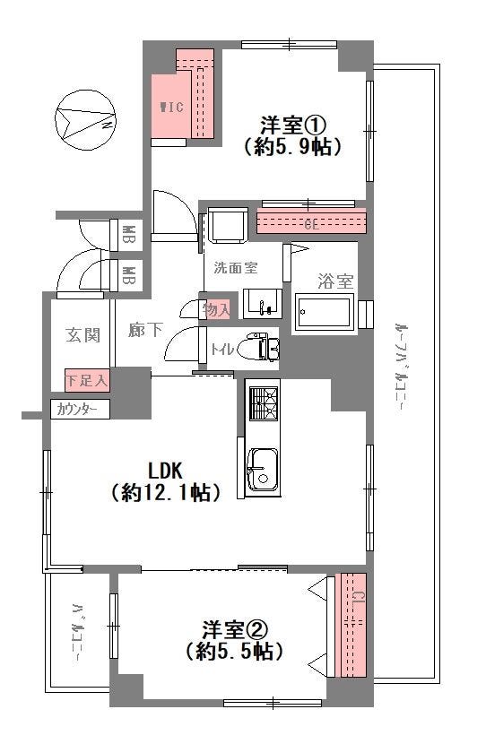
| 価格 | 4,198万円 | 間取り | 2LDK |
|---|---|---|---|
| 物件種別 | 中古マンション | ||
| 所在地 | 大阪府大阪市天王寺区味原町10-20 | ||
| アクセス |
|
||
| 専有面積 | 壁芯 57.56㎡ | 所在階 | 8階建/8階部分 |
| 主要採光 | 南東向 | バルコニー | 南向2.53㎡ |
| その他 | 14.69㎡ | ||
| 権利 | 所有権 |
||
| 保証・評価 | |||
| リフォーム | 【水回り】2025年10月 キッチン・浴室・トイレ・洗面・給湯器 【内装】2025年10月 全室クロス |
||
| 総戸数 | 21戸 | 面積 | |
| 築年月 | 1998年(平成10年)02月築 | 建物構造 | RC |
| 施工会社 | モリタ建設(株) | ||
| 管理会社 | グローバルコミュニティ(株) | 管理方式 | 全部委託 巡回管理 |
| 駐車場 | |||
| 都市計画 | 用途地域 | 2種住居 | |
| 建ぺい/容積率 | 土地国土法 | ||
| 法令制限 | |||
| 小学区 | 味原小学校 徒歩2分 (約122m) | 中学区 | 高津中学校 徒歩12分 (約930m) |
| 現況 | 空 | 引渡 | 相談 |
| 管理費 | 13,200円/月 | 修繕積立金 | 21,885円/月 |
| その他費用 | |||
| 備考 | |||
| 物件番号 | 4547246 | 取引態様 | 媒介 |
取扱店舗情報
ハウスドゥ 玉造駅前 株式会社ホワイトマルベリーホーム 店舗詳細ページへ
| 電話番号 | 06-6191-1515 |
|---|---|
| 所在地 | 〒543-0014 大阪府大阪市天王寺区玉造元町2番7号 |
| 営業時間 | 9:30~18:30 |
| 定休日 | 火曜日、水曜日 |
| 宅建免許番号 | 大阪府知事(2)第60854号 |
| アクセス | 店舗への地図はこちら |

来店ご予約
大阪府大阪市天王寺区で価格が似ている物件はこちら
- 大阪府
マイページ物件数 - 16,251件
最近見た物件
-
-

-
- 中古マンション
- 2,598万円
-
大阪市住吉区長居東1丁目
-
大阪市御堂筋線長居
-
-
-

-
- 新築一戸建て
- 2,790万円
-
大分市大字中判田上高江
-
JR豊肥本線中判田
-
大阪府中古マンション新着物件
-
-

-
- 中古マンション
- 1億3,280万円
-
大阪市中央区安土町2丁目
-
大阪市堺筋線堺筋本町駅
-
-
-

-
- 中古マンション
- 1億480万円
-
大阪市北区大淀南2丁目
-
JR大阪環状線福島駅
-
-
-

-
- 中古マンション
- 1,280万円
-
高槻市北柳川町
-
阪急電鉄京都線総持寺駅
-
-
-

-
- 中古マンション
- 4,180万円
-
大阪市淀川区三国本町2丁目
-
阪急電鉄宝塚線三国駅
-
-
-

-
- 中古マンション
- 1,350万円
-
大阪市西淀川区佃1丁目
-
阪神電鉄本線千船駅
-
-
-

-
- 中古マンション
- 3,080万円
-
大阪市淀川区新北野1丁目
-
阪急電鉄京都線十三駅
-
-
-

-
- 中古マンション
- 2,898万円
-
大阪市西成区玉出中1丁目
-
南海電鉄本線岸里玉出駅
-
- お近くの店舗を探す
-
おすすめ物件
-
-

-
- 中古マンション
- 3,990万円
-
茨木市園田町
-
阪急電鉄京都線茨木市
-
-
-

-
- 中古マンション
- 1,900万円
-
大阪市淀川区木川東4丁目
-
大阪市御堂筋線西中島南方
-
-
-

-
- 中古マンション
- 3,490万円
-
吹田市穂波町
-
阪急電鉄千里線吹田
-
-
-

-
- 中古マンション
- 620万円
-
大阪市住吉区沢之町2丁目
-
南海電鉄高野線我孫子前
-
-
-

-
- 中古マンション
- 950万円
-
泉大津市尾井千原町
-
南海電鉄本線北助松
-
-
-

-
- 中古マンション
- 5,490万円
-
高槻市天神町1丁目
-
JR東海道線高槻
-
-
-

-
- 中古マンション
- 1,980万円
-
大阪市淀川区新高1丁目
-
阪急電鉄神戸線神崎川
-
-
-

-
- 中古マンション
- 2,690万円
-
茨木市南春日丘1丁目
-
大阪モノレール彩都公園東口
-
-
-

-
- 中古マンション
- 2,890万円
-
高槻市古曽部町2丁目
-
JR東海道線高槻
-
-
-

-
- 中古マンション
- 4,180万円
-
茨木市上穂積4丁目
-
JR東海道線茨木
-
































