ユニ・アルス真田山南 大阪市天王寺区味原町の中古マンション
NEW 01.08掲載情報更新日:2026年01月08日 次回更新予定日:2026年01月22日
- 3,990万円
-
- 借入ご希望金額
万円 - 借入期間
年 - 借入金利
% - 月々のお支払い金額
円
- 借入ご希望金額
※ 月々のお支払例は目安の試算となりますので、実際の金額とは異なる場合がございます。詳しくは店舗までお問合わせください。
- 大阪市天王寺区味原町
-
大阪市千日前線『鶴橋』 徒歩3分 (約240m)
JR大阪環状線『鶴橋』 徒歩4分 (約320m)
大阪市天王寺区味原町マンション | 物件情報
物件の設備
- 公営水道
- 公共下水
- 都市ガス
- 給湯
- 食器洗浄乾燥機
- システムキッチン
- ユニットバス
- 浴室乾燥機
- シャワー
- 温水洗浄便座
- 高機能トイレ
- 室内洗濯機置場
- 洗髪洗面化粧台
- 洗面所独立
- オートロック
- クローゼット
- クローゼット2箇所
- ウォークインクローゼット
- シューズボックス
- バルコニー
- 2面バルコニー
- 南面バルコニー
- エレベーター
物件の特徴
- 管理人日勤
- 内装リフォーム済
- 角部屋
- 南向
- 2沿線利用可
- 小学校徒歩10分以内
- スーパーが近い
- 市街地が近い
- 都市近郊
- 眺望良好
- 通風良好
- 陽当り良好
- 最上階
- 設備保証付
- 即入居可
- ペット相談
物件詳細情報
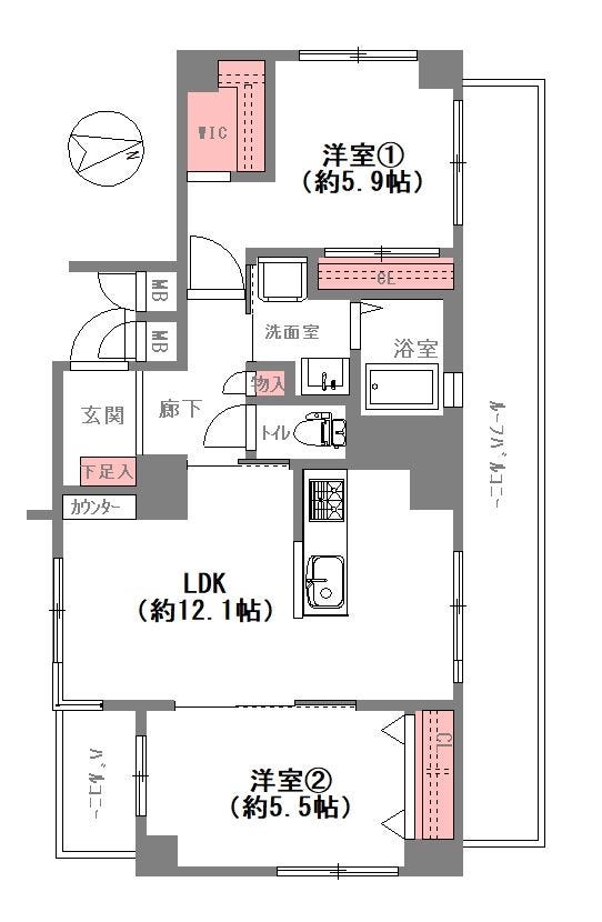
| 価格 | 3,990万円 | 間取り | 2LDK |
|---|---|---|---|
| 物件種別 | 中古マンション | ||
| 所在地 | 大阪府大阪市天王寺区味原町10-20 | ||
| アクセス |
|
||
| 専有面積 | 壁芯 57.56㎡ | 所在階 | 8階建/8階部分 |
| 主要採光 | 南向 | バルコニー | 南向2.53㎡ |
| その他 | |||
| 権利 | 所有権 |
||
| 保証・評価 | |||
| リフォーム | 【水回り】2025年10月 キッチン・浴室・トイレ・洗面・給湯器 システムキッチン新調、浴室ユニットバス新調、洗面化粧台新調、便器・温水洗浄便座新調、給湯器新調 【内装】2025年10月 全室クロス クロス貼替え |
||
| 総戸数 | 21戸 | 面積 | 敷地:297.85㎡ |
| 築年月 | 1998年(平成10年)02月築 | 建物構造 | RC |
| 施工会社 | |||
| 管理会社 | 管理方式 | 全部委託 日勤管理 管理組合あり | |
| 駐車場 | 【駐車場】なし |
||
| 都市計画 | 用途地域 | 2種住居(一部商業 含む) | |
| 建ぺい/容積率 | 土地国土法 | ||
| 法令制限 | |||
| 小学区 | 味原小学校 徒歩2分 (約130m) | 中学区 | 高津中学校 徒歩10分 (約800m) |
| 現況 | 空 | 引渡 | 即 |
| 管理費 | 13,200円/月 | 修繕積立金 | 21,885円/月 |
| その他費用 | |||
| 周辺環境 | 鶴橋本通商店街 徒歩9分 (約670m) 桃谷公園 徒歩13分 (約980m) 業務スーパー 桃谷店 徒歩18分 (約1400m) サンディー桃谷店 徒歩21分 (約1640m) スーパー玉出 今里店 徒歩22分 (約1690m) 生野警察署 徒歩25分 (約1930m) 生野消防署勝山出張所 徒歩25分 (約2000m) 御勝山公園 徒歩24分 (約1920m) 生野病院 徒歩28分 (約2210m) 生野郵便局 徒歩27分 (約2090m) |
||
| 備考 | |||
| 物件番号 | 4545923 | 取引態様 | 媒介 |
取扱店舗情報
| 電話番号 | 06-4303-6155 |
|---|---|
| 所在地 | 〒544-0015 大阪府大阪市生野区巽南5丁目4-33 |
| 営業時間 | 10:00~18:30 |
| 定休日 | (水)(木) |
| 宅建免許番号 | 大阪府知事(1)第64714号 |
| アクセス | 店舗への地図はこちら |

来店ご予約
大阪府大阪市天王寺区で価格が似ている物件はこちら
- 大阪府
マイページ物件数 - 16,485件
大阪府中古マンション新着物件
- お近くの店舗を探す
-
おすすめ物件
-
-

-
- 中古マンション
- 2,780万円
-
大阪市淀川区新高1丁目
-
阪急電鉄神戸線神崎川
-
-
-

-
- 中古マンション
- 990万円
-
大阪市住之江区南港中4丁目
-
南港ポートタウン線(ニュートラム)ポートタウン東
-
-
-

-
- 中古マンション
- 2,590万円
-
茨木市南春日丘1丁目
-
大阪モノレール彩都公園東口
-
-
-

-
- 中古マンション
- 3,580万円
-
高槻市南総持寺町
-
阪急電鉄京都線総持寺
-
-
-

-
- 中古マンション
- 780万円
-
大阪市住之江区粉浜西3丁目
-
南海電鉄本線住吉大社
-
-
-

-
- 中古マンション
- 2,680万円
-
大阪市淀川区新高1丁目
-
阪急電鉄神戸線神崎川
-
-
-

-
- 中古マンション
- 3,980万円
-
大阪市住吉区墨江4丁目
-
南海電鉄高野線沢ノ町
-
-
-

-
- 中古マンション
- 250万円
-
茨木市新郡山2丁目
-
JR東海道線茨木
-
-
-

-
- 中古マンション
- 880万円
-
大阪市淀川区西中島4丁目
-
大阪市御堂筋線西中島南方
-
-
-

-
- 中古マンション
- 1,380万円
-
大阪市淀川区新高1丁目
-
阪急電鉄宝塚線三国
-









