サンシティ明石海浜公園 明石市船上町の中古マンション
掲載情報更新日:2026年05月21日 次回更新予定日:2026年06月04日
- 1,980万円
-
- 借入ご希望金額
万円 - 借入期間
年 - 借入金利
% - 月々のお支払い金額
円
- 借入ご希望金額
※ 月々のお支払例は目安の試算となりますので、実際の金額とは異なる場合がございます。詳しくは店舗までお問合わせください。
- 明石市船上町
-
山陽電鉄本線『西新町』 徒歩13分 (約1040m)
JR山陽本線『明石』 徒歩25分 (約2000m)
JR山陽新幹線『西明石』 車10分(約3.5km)
明石市船上町マンション | 物件情報
不動産会社のイメージを変えたい。全国700店舗展開中!不動産はハウスドゥ明石藤江におまかせください!
【ハウスドゥ明石藤江】おすすめ
明石海峡大橋を望むマンション!
リフォーム済
キッチン水栓・コンロ新調・浴室・洗面台・トイレ
壁・天井クロス張替え・畳新調・給湯器新調
ハウスクリーニング 他
現地へ行って陽当りや周辺環境、街並みを確かめよう!
お気軽にお問合せください!
林小学校 約730m(徒歩約10分)
衣川中学校 約620m(徒歩約8分)
【ハウスドゥ明石藤江】ご来店サービス♪
♪お客様を駅まで送迎いたします!JR「西明石」「大久保」駅 山陽電鉄線もご相談ください♪
♪ご来店のお客様へウェルカムドリンクのご提供♪ゆっくりと店内でご相談ください♪
どんな小さな事でもご相談ください!エージェントが全力でお手伝い・サポートさせていただきます!
【ハウスドゥ明石藤江】はお客様のより近くにある安心・便利・信頼されるお店づくりを展開中!
【ハウスドゥ明石藤江】はすべての物件情報を公開中!
お問合せはこちらまで →0120-077-712
物件の設備
- 公営水道
- 下水道
- 公共下水
- 都市ガス
- システムキッチン
- バス
- シャワー
- トイレ
- 温水洗浄便座
- 室内洗濯機置場
- 洗面所独立
- 和室
- クローゼット
- ウォークインクローゼット
- 収納スペース
- 押入
- 天袋
- 全居室収納
- バルコニー
- エレベーター
物件の特徴
- 管理人日勤
- 眺望良好
- 通風良好
- 陽当り良好
- 平坦地
- 即入居可
物件詳細情報
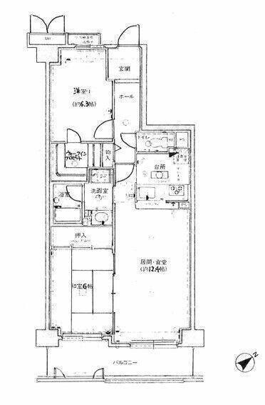
| 価格 | 1,980万円 | 間取り | 2LDK |
|---|---|---|---|
| 物件種別 | 中古マンション | ||
| 所在地 | 兵庫県明石市船上町 | ||
| アクセス |
|
||
| 専有面積 | 壁芯 65.22㎡ | 所在階 | 8階建/7階部分 |
| 主要採光 | 南東向 | バルコニー | 南東向9.18㎡ |
| その他 | |||
| 権利 | 所有権 |
||
| 保証・評価 | |||
| リフォーム | |||
| 総戸数 | 85戸 | 面積 | |
| 築年月 | 1996年(平成8年)06月築 | 建物構造 | RC |
| 施工会社 | 長谷工コーポレーション | ||
| 管理会社 | 長谷工コミュニティ | 管理方式 | 全部委託 日勤管理 |
| 駐車場 | |||
| 都市計画 | 市街化区域 |
用途地域 | 1種住居 |
| 建ぺい/容積率 | 60% / 200% | 土地国土法 | |
| 法令制限 | |||
| 小学区 | 林小学校 徒歩10分 (約730m) | 中学区 | 衣川中学校 徒歩8分 (約620m) |
| 現況 | 空 | 引渡 | 即 |
| 管理費 | 7,830円/月 | 修繕積立金 | 13,040円/月 |
| その他費用 | |||
| 周辺環境 | マルハチ 硯町店 徒歩7分 (約520m) ペガサス薬局 徒歩10分 (約800m) 明石市立林小学校 徒歩10分 (約780m) セブンイレブン 明石林崎店 徒歩11分 (約850m) 万代 明石硯町店 徒歩13分 (約990m) 山陽電鉄本線 西新町駅 徒歩11分 (約810m) キリン堂 明石硯町店 徒歩10分 (約750m) ふくやま病院 徒歩11分 (約850m) |
||
| 備考 | 明石海峡大橋を望むマンション! リフォーム済 キッチン水栓・コンロ新調・浴室・洗面台・トイレ 壁・天井クロス張替え・畳新調・給湯器新調 ハウスクリーニング 他 |
||
| 物件番号 | 4551445 | 取引態様 | 媒介 |
取扱店舗情報
| 電話番号 | 078-962-7712 |
|---|---|
| 所在地 | 〒673-0044 兵庫県明石市藤江927-5 |
| 営業時間 | 10:00~18:00 |
| 定休日 | 水曜日 |
| 宅建免許番号 | 兵庫県知事(1)第401744号 |
| アクセス | 店舗への地図はこちら |

来店ご予約
兵庫県明石市で価格が似ている物件はこちら
- 兵庫県
マイページ物件数 - 3,123件
最近見た物件
-
-

-
- 中古マンション
- 5,690万円
-
練馬区関町北1丁目
-
西武新宿線武蔵関
-
-
-

-
- 中古マンション
- 3,099万円
-
名古屋市守山区四軒家2丁目
-
名古屋市東山線藤が丘
-
-
-

-
- 中古マンション
- 1,680万円
-
江南市東野町神上
-
名鉄犬山線江南
-
兵庫県中古マンション新着物件
-
-

-
- 中古マンション
- 5,280万円
-
明石市魚住町清水
-
JR山陽本線魚住駅
-
-
-

-
- 中古マンション
- 5,280万円
-
明石市魚住町清水
-
JR山陽本線魚住駅
-
-
-

-
- 中古マンション
- 1,080万円
-
加古郡播磨町北野添1丁目
-
JR山陽本線土山駅
-
-
-

-
- 中古マンション
- 1,890万円
-
明石市硯町3丁目
-
JR山陽本線明石駅
-
-
-

-
- 中古マンション
- 2,280万円
-
明石市硯町3丁目
-
JR山陽本線明石駅
-
-
-

-
- 中古マンション
- 1,040万円
-
揖保郡太子町馬場
-
JR姫新線本竜野駅
-
-
-

-
- 中古マンション
- 700万円
-
姫路市広畑区長町2丁目
-
山陽電鉄網干線夢前川駅
-
- お近くの店舗を探す
-
おすすめ物件
-
-

-
- 中古マンション
- 2,300万円
-
加古川市加古川町木村
-
JR山陽本線加古川
-
-
-

-
- 中古マンション
- 1,650万円
-
伊丹市大鹿4丁目
-
阪急電鉄伊丹線伊丹
-
-
-

-
- 中古マンション
- 2,180万円
-
大阪市西淀川区野里2丁目
-
阪神電鉄本線姫島
-
-
-

-
- 中古マンション
- 1,850万円
-
加古川市加古川町美乃利
-
JR山陽本線加古川
-
-
-

-
- 中古マンション
- 1,180万円
-
伊丹市荒牧4丁目
-
JR福知山線中山寺
-
-
-

-
- 中古マンション
- 999万円
-
姫路市飾磨区恵美酒
-
山陽電鉄本線亀山
-
-
-

-
- 中古マンション
- 1,180万円
-
宝塚市小林4丁目
-
阪急電鉄今津線小林
-
-
-

-
- 中古マンション
- 4,380万円
-
神戸市中央区下山手通7丁目
-
神戸市営地下鉄西神山手線大倉山
-
-
-

-
- 中古マンション
- 3,090万円
-
神戸市中央区港島中町6丁目
-
神戸新交通ポートアイランド線みなとじま
-
-
-

-
- 中古マンション
- 4,598万円
-
神戸市中央区中山手通3丁目
-
神戸市営地下鉄西神山手線県庁前
-



































担当エージェント:春木 宏友
納得のお住まい購入をお手伝い。より多くの住まい情報をお客様に迅速にお届けし、お住まいをご自由にお選びいただける環境を作り出すよう最善を尽くします。お客様の10年後、20年後の将来を考えたお住まいのご提案を目指します。お住まいのご購入が終わった後も、末永いお付き合いをお約束し誠意を持って対応させていただくことを誓います。全国のネットワークを通じ、情報収集し、お客様に最良のお住まいをご提案いたします。