シャリエ武蔵新田 大田区矢口1丁目の中古マンション
NEW 01.15掲載情報更新日:2026年01月19日 次回更新予定日:2026年02月02日
- 9,000万円
-
- 借入ご希望金額
万円 - 借入期間
年 - 借入金利
% - 月々のお支払い金額
円
- 借入ご希望金額
※ 月々のお支払例は目安の試算となりますので、実際の金額とは異なる場合がございます。詳しくは店舗までお問合わせください。
- 大田区矢口1丁目
-
東急多摩川線『武蔵新田』 徒歩2分 (約160m)
東急池上線『千鳥町』 徒歩10分 (約800m)
大田区矢口1丁目マンション | 物件情報
物件の設備
- 公営水道
- 公共下水
- 都市ガス
- 食器洗浄乾燥機
- コンロ三口
- カウンターキッチン
- バス
- 浴室乾燥機
- トイレ
- B/T別室
- 室内洗濯機置場
- 洗髪洗面化粧台
- 洗面所独立
- 床暖房
- オートロック
- クローゼット
- クローゼット2箇所
- ウォークインクローゼット
- 全居室収納
- バルコニー
- 南面バルコニー
- 宅配BOX
物件の特徴
- 管理人日勤
- 24時間セキュリティ
- ペット対応
物件詳細情報
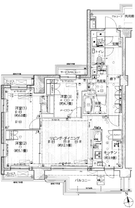
| 価格 | 9,000万円 | 間取り | 3LDK |
|---|---|---|---|
| 物件種別 | 中古マンション | ||
| 所在地 | 東京都大田区矢口1丁目 | ||
| アクセス |
|
||
| 専有面積 | 壁芯 76.61㎡ | 所在階 | 6階建/2階部分 |
| 主要採光 | 南向 | バルコニー | 南向10.14㎡ |
| その他 | |||
| 権利 | 所有権 |
||
| 保証・評価 | |||
| リフォーム | |||
| 総戸数 | 35戸 | 面積 | |
| 築年月 | 2018年(平成30年)04月築 | 建物構造 | RC |
| 施工会社 | |||
| 管理会社 | 東洋コミュニティサービス株式会社 | 管理方式 | 全部委託 日勤管理 |
| 駐車場 | |||
| 都市計画 | 用途地域 | ||
| 建ぺい/容積率 | 土地国土法 | ||
| 法令制限 | |||
| 小学区 | 矢口西小学校 徒歩8分 (約600m) | 中学区 | 矢口中学校 徒歩9分 (約700m) |
| 現況 | 居住中 | 引渡 | 期日指定:2026年07月以降 |
| 管理費 | 15,330円/月 | 修繕積立金 | 12,260円/月 |
| その他費用 | |||
| 備考 | |||
| 物件番号 | 4554533 | 取引態様 | 媒介 |
取扱店舗情報
| 電話番号 | 03-5544-9070 |
|---|---|
| 所在地 | 〒106-0032 東京都港区六本木5丁目18番2号 大昌第2ビル6階 |
| 営業時間 | 10:00~18:00 |
| 定休日 | 水曜日、日曜日、年末年始 |
| 宅建免許番号 | 東京都知事(1)第111695号 |
| アクセス | 店舗への地図はこちら |

来店ご予約
東京都大田区で価格が似ている物件はこちら
- 東京都
マイページ物件数 - 5,142件
最近見た物件
-
-

-
- 中古マンション
- 3,499万円
-
大田区蒲田5丁目
-
JR京浜東北・根岸線蒲田
-
東京都中古マンション新着物件
-
-

-
- 中古マンション
- 2,980万円
-
品川区西五反田1丁目
-
JR山手線五反田駅
-
-
-

-
- 中古マンション
- 4,198万円
-
大田区西六郷1丁目
-
京急本線雑色駅
-
-
-

-
- 中古マンション
- 8,370万円
-
世田谷区深沢1丁目
-
東急大井町線九品仏駅
-
-
-

-
- 中古マンション
- 9,980万円
-
世田谷区用賀1丁目
-
東急田園都市線桜新町駅
-
-
-

-
- 中古マンション
- 1億8,990万円
-
江東区豊洲2丁目
-
東京メトロ有楽町線豊洲駅
-
-
-

-
- 中古マンション
- 8,480万円
-
世田谷区南烏山3丁目
-
京王線芦花公園駅
-
-
-

-
- 中古マンション
- 3,380万円
-
練馬区関町北1丁目
-
西武新宿線武蔵関駅
-
- お近くの店舗を探す
-
おすすめ物件
-
-

-
- 中古マンション
- 3,799万円
-
小平市大沼町6丁目
-
西武新宿線小平
-
-
-

-
- 中古マンション
- 5,580万円
-
調布市上石原3丁目
-
京王線西調布
-
-
-

-
- 中古マンション
- 2億1,800万円
-
大田区山王3丁目
-
JR京浜東北・根岸線大森
-
-
-

-
- 中古マンション
- 3,780万円
-
葛飾区亀有2丁目
-
JR千代田・常磐緩行線亀有
-
-
-

-
- 中古マンション
- 1,790万円
-
足立区東和5丁目
-
東京メトロ千代田線北綾瀬
-
-
-

-
- 中古マンション
- 3,998万円
-
調布市国領町4丁目
-
京王線国領
-
-
-

-
- 中古マンション
- 4,790万円
-
大田区北糀谷1丁目
-
京急本線梅屋敷
-
-
-

-
- 中古マンション
- 5,990万円
-
台東区蔵前4丁目
-
都営浅草線蔵前
-
-
-

-
- 中古マンション
- 7,200万円
-
練馬区上石神井4丁目
-
西武新宿線武蔵関
-
-
-

-
- 中古マンション
- 6,880万円
-
足立区東綾瀬1丁目
-
東京メトロ千代田線綾瀬
-



