ネオコーポ茨木 茨木市藤の里1丁目の中古マンション
NEW 01.24掲載情報更新日:2026年01月24日 次回更新予定日:2026年02月07日
- 1,080万円
-
- 借入ご希望金額
万円 - 借入期間
年 - 借入金利
% - 月々のお支払い金額
円
- 借入ご希望金額
※ 月々のお支払例は目安の試算となりますので、実際の金額とは異なる場合がございます。詳しくは店舗までお問合わせください。
- 茨木市藤の里1丁目
-
JR東海道線『茨木』 徒歩45分 (約3600m)
茨木市藤の里1丁目マンション | 物件情報
◇角部屋 ◇高層階8階部分 ◇トランクルーム有 ◇広々LDK
住宅ローン・資金計画にお悩みの方、是非当社にご相談ください!
住宅購入・お住み替えにつきもののお悩みを一緒に解決していきましょう!
・頭金0円で購入したい・・・
・駅近くのマンションに住み替えたい・・・
・住宅ローンが通るか不安・・・
・頭金が用意できない・・・
・毎月いくらまで払えるかわからない・・・
など、様々なお悩みをお持ちの方。
お気軽にお申し付け下さい♪
★物件のご内覧は、ご自宅への送迎や指定場所お待合わせでのご案内可。
★お客様専用駐車場完備!お気軽にご来店お待ちいたしております。
物件の特徴
- 管理人日勤
- 即入居可
物件詳細情報
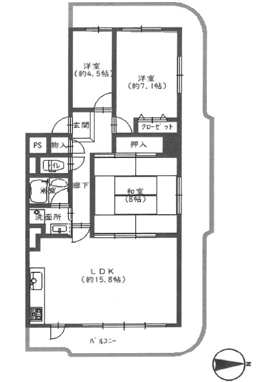
| 価格 | 1,080万円 | 間取り | 3LDK |
|---|---|---|---|
| 物件種別 | 中古マンション | ||
| 所在地 | 大阪府茨木市藤の里1丁目 | ||
| アクセス |
|
||
| 専有面積 | 81.09㎡ | 所在階 | 11階建/8階部分 |
| 主要採光 | 東向 | バルコニー | |
| その他 | |||
| 権利 | 所有権 |
||
| 保証・評価 | |||
| リフォーム | |||
| 総戸数 | 208戸 | 面積 | |
| 築年月 | 1980年(昭和55年)04月築 | 建物構造 | SRC |
| 施工会社 | (株)長谷川工務店 | ||
| 管理会社 | 大和ライフネクスト株式会社 | 管理方式 | 全部委託 日勤管理 管理組合あり |
| 駐車場 | |||
| 都市計画 | 用途地域 | ||
| 建ぺい/容積率 | 土地国土法 | ||
| 法令制限 | |||
| 小学区 | 豊川小学校 徒歩30分 (約2344m) | 中学区 | 豊川中学校 徒歩5分 (約344m) |
| 現況 | 空 | 引渡 | 即 |
| 管理費 | 6,560円/月 | 修繕積立金 | 9,520円/月 |
| その他費用 | |||
| 周辺環境 | 茨木市立郡小学校 徒歩12分 (約950m) 茨木市立豊川中学校 徒歩4分 (約290m) 茨木市立郡保育所 徒歩15分 (約1170m) エディオン茨木藤の里店 徒歩4分 (約290m) アル・プラザ茨木 徒歩19分 (約1510m) 豊川駅(大阪モノレール彩都線) 徒歩26分 (約2080m) |
||
| 備考 | |||
| 物件番号 | 4566831 | 取引態様 | 媒介 |
取扱店舗情報
ハウスドゥ 阪急茨木市駅南 株式会社エムアイエム 店舗詳細ページへ
| 電話番号 | 072-697-8701 |
|---|---|
| 所在地 | 〒567-0827 大阪府茨木市稲葉町11-8 ローズビルウチダ1F |
| 営業時間 | 10:00~19:00 |
| 定休日 | 水曜日、年末年始 |
| 宅建免許番号 | 大阪府知事(1)第64466号 |
| アクセス | 店舗への地図はこちら |

来店ご予約
大阪府茨木市で価格が似ている物件はこちら
- 大阪府
マイページ物件数 - 16,419件
最近見た物件
-
-

-
- 土地
- 350万円
-
さくら市桜ヶ丘1丁目
-
JR東北本線片岡
-
-
-

-
- 中古マンション
- 3,980万円
-
葛飾区亀有2丁目
-
JR千代田・常磐緩行線亀有
-
-
-

-
- 中古マンション
- 9,990万円
-
世田谷区桜3丁目
-
東急世田谷線上町
-
大阪府中古マンション新着物件
-
-

-
- 収益
- 1億1,200万円
-
高槻市白梅町
-
JR東海道線高槻駅
-
-
-

-
- 中古マンション
- 1,530万円
-
豊中市東豊中町6丁目
-
北大阪急行南北線桃山台駅
-
-
-

-
- 中古マンション
- 1,530万円
-
豊中市東豊中町6丁目
-
北大阪急行南北線桃山台駅
-
-
-

-
- 中古マンション
- 5,498万円
-
吹田市垂水町1丁目
-
大阪市御堂筋線江坂駅
-
-
-

-
- 中古マンション
- 2,180万円
-
東大阪市西石切町7丁目
-
近鉄けいはんな線新石切駅
-
-
-

-
- 中古マンション
- 5,498万円
-
吹田市垂水町1丁目
-
大阪市御堂筋線江坂駅
-
-
-

-
- 中古マンション
- 2,080万円
-
八尾市竹渕1丁目
-
JRおおさか東線新加美駅
-
- お近くの店舗を探す
-
おすすめ物件
-
-

-
- 中古マンション
- 780万円
-
大阪市住之江区粉浜西3丁目
-
南海電鉄本線住吉大社
-
-
-

-
- 中古マンション
- 2,780万円
-
大阪市淀川区新高1丁目
-
阪急電鉄神戸線神崎川
-
-
-

-
- 中古マンション
- 5,398万円
-
大阪市福島区福島4丁目
-
JR東西線新福島
-
-
-

-
- 中古マンション
- 2,290万円
-
茨木市豊原町
-
JR東海道線茨木
-
-
-

-
- 中古マンション
- 930万円
-
大阪狭山市西山台6丁目
-
南海電鉄高野線金剛
-
-
-

-
- 中古マンション
- 2,350万円
-
高槻市真上町6丁目
-
JR東海道線高槻
-
-
-

-
- 中古マンション
- 4,580万円
-
八尾市山城町2丁目
-
近鉄大阪線近鉄八尾
-
-
-

-
- 中古マンション
- 3,150万円
-
大阪市港区池島3丁目
-
大阪市中央線朝潮橋
-
-
-

-
- 中古マンション
- 1,995万円
-
東大阪市西岩田3丁目
-
近鉄難波・奈良線八戸ノ里
-
-
-

-
- 中古マンション
- 1,180万円
-
泉大津市尾井千原町
-
南海電鉄本線北助松
-













住宅ローン・資金計画にお悩みの方、是非当社にご相談ください!住宅購入・お住み替えにつきもののお悩みを一緒に解決していきましょう!お気軽にお申し付け下さい♪