ローレルハイツ茨木総持寺2号棟 茨木市東太田1丁目の中古マンション
NEW 01.25掲載情報更新日:2026年01月25日 次回更新予定日:2026年02月08日
- 1,030万円
-
- 借入ご希望金額
万円 - 借入期間
年 - 借入金利
% - 月々のお支払い金額
円
- 借入ご希望金額
※ 月々のお支払例は目安の試算となりますので、実際の金額とは異なる場合がございます。詳しくは店舗までお問合わせください。
- 茨木市東太田1丁目
-
JR東海道線『JR総持寺』 徒歩14分 (約1120m)
阪急電鉄京都線『総持寺』 徒歩17分 (約1360m)
阪急電鉄京都線『富田』 徒歩20分 (約1600m)
茨木市東太田1丁目マンション | 物件情報
◇JR総持寺駅より徒歩13分 ◇6階部分
住宅ローン・資金計画にお悩みの方、是非当社にご相談ください!
住宅購入・お住み替えにつきもののお悩みを一緒に解決していきましょう!
・頭金0円で購入したい・・・
・駅近くのマンションに住み替えたい・・・
・住宅ローンが通るか不安・・・
・頭金が用意できない・・・
・毎月いくらまで払えるかわからない・・・
など、様々なお悩みをお持ちの方。
お気軽にお申し付け下さい♪
★物件のご内覧は、ご自宅への送迎や指定場所お待合わせでのご案内可。
★お客様専用駐車場完備!お気軽にご来店お待ちいたしております。
物件の特徴
- 管理人日勤
- 即入居可
物件詳細情報
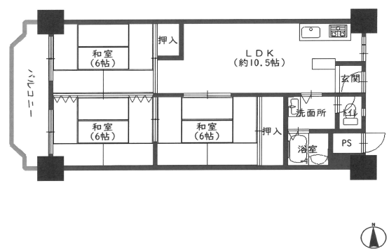
| 価格 | 1,030万円 | 間取り | 3LDK |
|---|---|---|---|
| 物件種別 | 中古マンション | ||
| 所在地 | 大阪府茨木市東太田1丁目 | ||
| アクセス |
|
||
| 専有面積 | 60.50㎡ | 所在階 | 11階建/6階部分 |
| 主要採光 | 西向 | バルコニー | |
| その他 | |||
| 権利 | 所有権 |
||
| 保証・評価 | |||
| リフォーム | |||
| 総戸数 | 418戸 | 面積 | |
| 築年月 | 1975年(昭和50年)02月築 | 建物構造 | SRC |
| 施工会社 | 東海興業株式会社 | ||
| 管理会社 | 日本ハウズイング株式会社 大阪北支店 | 管理方式 | 全部委託 日勤管理 |
| 駐車場 | |||
| 都市計画 | 用途地域 | 準工業 | |
| 建ぺい/容積率 | 土地国土法 | ||
| 法令制限 | |||
| 小学区 | 西河原小学校 徒歩9分 (約720m) | 中学区 | 三島中学校 徒歩8分 (約640m) |
| 現況 | 空 | 引渡 | 即 |
| 管理費 | 7,950円/月 | 修繕積立金 | 12,760円/月 |
| その他費用 | |||
| 周辺環境 | JR総持寺駅 徒歩9分 (約650m) 茨木市立三島中学校 徒歩9分 (約660m) 茨木市立西河原小学校 徒歩10分 (約790m) MEGAドン・キホーテ 茨木店 徒歩7分 (約500m) 関西スーパー 三島丘店 徒歩5分 (約360m) イオンタウン茨木太田 徒歩7分 (約550m) ダイキDCM 茨木店 徒歩9分 (約690m) セブンイレブン 茨木三島町店 徒歩9分 (約660m) キリン堂 茨木太田店 徒歩7分 (約520m) バリュー100 茨木太田店 徒歩8分 (約610m) JR総持寺駅 徒歩9分 (約650m) 茨木市立三島中学校 徒歩9分 (約660m) 茨木市立西河原小学校 徒歩10分 (約790m) MEGAドン・キホーテ 茨木店 徒歩7分 (約500m) 関西スーパー 三島丘店 徒歩5分 (約360m) イオンタウン茨木太田 徒歩7分 (約550m) ダイキDCM 茨木店 徒歩9分 (約690m) セブンイレブン 茨木三島町店 徒歩9分 (約660m) キリン堂 茨木太田店 徒歩7分 (約520m) バリュー100 茨木太田店 徒歩8分 (約610m) |
||
| 備考 | |||
| 物件番号 | 4567684 | 取引態様 | 媒介 |
取扱店舗情報
ハウスドゥ 阪急茨木市駅南 株式会社エムアイエム 店舗詳細ページへ
| 電話番号 | 072-697-8701 |
|---|---|
| 所在地 | 〒567-0827 大阪府茨木市稲葉町11-8 ローズビルウチダ1F |
| 営業時間 | 10:00~19:00 |
| 定休日 | 水曜日、年末年始 |
| 宅建免許番号 | 大阪府知事(1)第64466号 |
| アクセス | 店舗への地図はこちら |

来店ご予約
大阪府茨木市で価格が似ている物件はこちら
- 大阪府
マイページ物件数 - 16,397件
最近見た物件
-
-

-
- 中古マンション
- 590万円
-
高松市藤塚町2丁目
-
高松琴平電鉄琴平線瓦町
-
-
-

-
- 中古マンション
- 8,480万円
-
世田谷区太子堂1丁目
-
東急田園都市線三軒茶屋
-
-
-

-
- 中古マンション
- 1,880万円
-
池田市畑1丁目
-
阪急電鉄宝塚線池田
-
大阪府中古マンション新着物件
-
-

-
- 中古マンション
- 2,080万円
-
大阪市平野区喜連4丁目
-
大阪市谷町線喜連瓜破駅
-
-
-

-
- 中古マンション
- 1,880万円
-
池田市畑1丁目
-
阪急電鉄宝塚線池田駅
-
-
-

-
- 中古マンション
- 1,030万円
-
茨木市東太田1丁目
-
JR東海道線JR総持寺駅
-
-
-

-
- 中古マンション
- 2,080万円
-
大阪市西淀川区姫島3丁目
-
阪神電鉄阪神なんば線福駅
-
-
-

-
- 中古マンション
- 1,990万円
-
大阪市淀川区野中南2丁目
-
阪急電鉄神戸線十三駅
-
-
-

-
- 中古マンション
- 2,580万円
-
吹田市山田東3丁目
-
大阪モノレール万博記念公園駅
-
-
-

-
- 中古マンション
- 1,790万円
-
豊中市上野東1丁目
-
阪急電鉄宝塚線豊中駅
-
- お近くの店舗を探す
-
おすすめ物件
-
-

-
- 中古マンション
- 620万円
-
大阪市住吉区沢之町2丁目
-
南海電鉄高野線我孫子前
-
-
-

-
- 中古マンション
- 7,800万円
-
大阪市西区新町3丁目
-
大阪市千日前線西長堀
-
-
-

-
- 中古マンション
- 2,480万円
-
大阪市淀川区西中島2丁目
-
阪急電鉄京都線南方
-
-
-

-
- 中古マンション
- 2,490万円
-
茨木市白川3丁目
-
阪急電鉄京都線茨木市
-
-
-

-
- 中古マンション
- 2,490万円
-
大阪市平野区瓜破東2丁目
-
大阪市谷町線出戸
-
-
-

-
- 中古マンション
- 4,580万円
-
八尾市山城町2丁目
-
近鉄大阪線近鉄八尾
-
-
-

-
- 中古マンション
- 1,580万円
-
和泉市伏屋町5丁目
-
南海電鉄泉北線光明池
-
-
-

-
- 中古マンション
- 3,150万円
-
大阪市港区池島3丁目
-
大阪市中央線朝潮橋
-
-
-

-
- 中古マンション
- 930万円
-
大阪狭山市西山台6丁目
-
南海電鉄高野線金剛
-
-
-

-
- 中古マンション
- 5,280万円
-
茨木市庄2丁目
-
JR東海道線JR総持寺
-















住宅ローン・資金計画にお悩みの方、是非当社にご相談ください!住宅購入・お住み替えにつきもののお悩みを一緒に解決していきましょう!お気軽にお申し付け下さい♪