ライオンズマンション円山第3 札幌市中央区南二条西20丁目の中古マンション
NEW 04.18掲載情報更新日:2026年04月18日 次回更新予定日:2026年05月02日
- 2,090万円
-
- 借入ご希望金額
万円 - 借入期間
年 - 借入金利
% - 月々のお支払い金額
円
- 借入ご希望金額
※ 月々のお支払例は目安の試算となりますので、実際の金額とは異なる場合がございます。詳しくは店舗までお問合わせください。
- 札幌市中央区南二条西20丁目
-
札幌市東西線『西18丁目』 徒歩4分 (約320m)
札幌市東西線『円山公園』 徒歩11分 (約880m)
札幌市中央区南二条西20丁目マンション | 物件情報
物件の設備
- 公営水道
- 公共下水
- システムキッチン
- バス
- ユニットバス
- シャワー
- トイレ
- オートロック
- 2面採光
- フローリング張替
- クローゼット
- クローゼット2箇所
- シューズWIC
- バルコニー
- 2面バルコニー
- 平面駐車場
- エレベーター
物件の特徴
- 管理人巡回
- 内装リフォーム済
- 内装リフォーム後渡
- 角部屋
- 駅まで平坦
- 総合病院徒歩10分以内
- 整備された歩道
- スーパーが近い
- 通風良好
- ペット相談
- 多頭飼い可
物件詳細情報
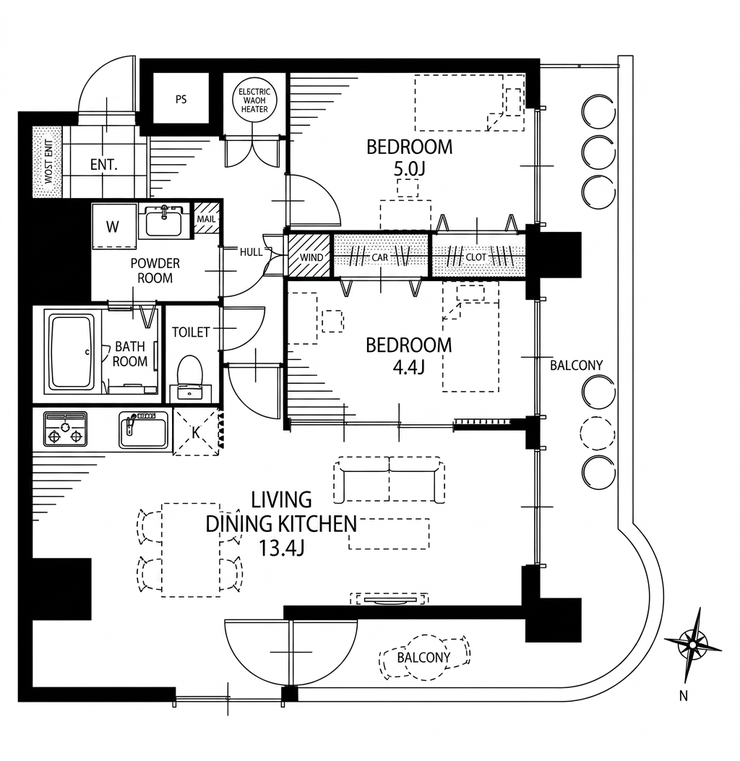
| 価格 | 2,090万円 | 間取り | 2LDK |
|---|---|---|---|
| 物件種別 | 中古マンション | ||
| 所在地 | 北海道札幌市中央区南二条西20丁目1-8 | ||
| アクセス |
|
||
| 専有面積 | 壁芯 59.22㎡ | 所在階 | 7階建/2階部分 |
| 主要採光 | 西向 | バルコニー | 西向15.99㎡ |
| その他 | |||
| 権利 | 所有権 |
||
| 保証・評価 | |||
| リフォーム | 【水回り】2026年06月予定 キッチン・浴室・トイレ・洗面 ■システムキッチン ■ユニットバス ■洗面化粧台 ■トイレ ■電気温水器 【内装】2026年06月予定 壁、天井 ・床 ・全室クロス ・建具 ■建具 ■クロス全室 ■床材 ■ハウスクリーニング |
||
| 総戸数 | 33戸 | 面積 | |
| 築年月 | 1982年(昭和57年)11月築 | 建物構造 | SRC (一部 RC ) |
| 施工会社 | ㈱松村組 | ||
| 管理会社 | ㈱大京アステージ | 管理方式 | 全部委託 巡回管理 |
| 駐車場 | |||
| 都市計画 | 市街化区域 |
用途地域 | 近隣商業 |
| 建ぺい/容積率 | 80% / 300% | 土地国土法 | |
| 法令制限 | |||
| 小学区 | 円山小学校 徒歩12分 (約950m) | 中学区 | 向陵中学校 徒歩22分 (約1700m) |
| 現況 | 空 | 引渡 | 相談 |
| 管理費 | 15,220円/月 | 修繕積立金 | 14,510円/月 |
| その他費用 | |||
| 周辺環境 | セイコーマート円山南1条店 徒歩3分 (約230m) セブンイレブン札幌円山裏参道店 徒歩3分 (約240m) 札幌南1条西郵便局 徒歩5分 (約330m) 西18丁目駅 2番出口 徒歩6分 (約480m) 平成会病院 徒歩9分 (約710m) 札幌フードセンター円山店 徒歩9分 (約660m) 北洋銀行 円山公園支店 徒歩8分 (約600m) 愛育病院 徒歩11分 (約810m) 円山裏参道公園 徒歩13分 (約990m) 円山小学校 徒歩13分 (約1040m) |
||
| 備考 | |||
| 物件番号 | 4682637 | 取引態様 | 媒介 |
取扱店舗情報
ハウスドゥ 札幌桑園 株式会社ファミリーサネスト 店舗詳細ページへ
| 電話番号 | 011-590-0017 |
|---|---|
| 所在地 | 〒060-0007 北海道札幌市中央区北七条西19丁目38-74 第53藤栄ビル1階 |
| 営業時間 | 9:00~18:00 |
| 定休日 | 水曜日、年末年始 |
| 宅建免許番号 | 北海道知事 石狩(1)第9697号 |
| アクセス | 店舗への地図はこちら |

来店ご予約
北海道札幌市中央区で価格が似ている物件はこちら
- 北海道
マイページ物件数 - 6,388件
北海道中古マンション新着物件
-
-

-
- 中古マンション
- 2,090万円
-
札幌市中央区南二条西20丁目
-
札幌市東西線西18丁目駅
-
-
-

-
- 中古マンション
- 3,500万円
-
札幌市中央区北二条西14丁目
-
札幌市東西線西11丁目駅
-
-
-

-
- 中古マンション
- 1,700万円
-
札幌市中央区南四条西13丁目
-
札幌市軌道線西線6条駅
-
-
-

-
- 中古マンション
- 2,190万円
-
札幌市豊平区豊平四条10丁目
-
札幌市東豊線豊平公園駅
-
-
-

-
- 収益
- 120万円
-
帯広市東四条南14丁目
-
JR根室本線帯広駅
-
-
-

-
- 収益
- 120万円
-
帯広市東四条南14丁目
-
JR根室本線帯広駅
-
-
-

-
- 中古マンション
- 120万円
-
釧路市南大通4丁目
-
JR釧網本線釧路駅
-
- お近くの店舗を探す
-
おすすめ物件
-
-

-
- 中古マンション
- 550万円
-
札幌市南区真駒内南町4丁目
-
札幌市南北線真駒内
-
-
-

-
- 中古マンション
- 700万円
-
札幌市豊平区美園五条7丁目
-
札幌市東豊線美園
-
-
-

-
- 中古マンション
- 1,090万円
-
札幌市北区あいの里三条6丁目
-
JR札沼線あいの里公園
-
-
-

-
- 中古マンション
- 1,498万円
-
札幌市中央区南十二条西14丁目
-
札幌市軌道線西線11条
-
-
-

-
- 中古マンション
- 1,700万円
-
札幌市西区西野一条6丁目
-
札幌市東西線発寒南
-
-
-

-
- 中古マンション
- 4,190万円
-
札幌市中央区北一条東10丁目
-
JR函館本線苗穂
-
-
-

-
- 中古マンション
- 880万円
-
旭川市三条通2丁目
-
JR函館本線旭川
-
-
-

-
- 中古マンション
- 430万円
-
札幌市西区琴似二条6丁目
-
札幌市東西線琴似
-
-
-

-
- 中古マンション
- 3,670万円
-
札幌市手稲区曙二条2丁目
-
JR函館本線手稲
-
-
-

-
- 中古マンション
- 1億2,800万円
-
札幌市北区北八条西3丁目
-
JR函館本線札幌
-






