ミルーナヒルズ舎人C’sCOLLECTION 足立区入谷2丁目の中古マンション
NEW 04.23掲載情報更新日:2026年04月23日 次回更新予定日:2026年05月07日
- 2,790万円
-
- 借入ご希望金額
万円 - 借入期間
年 - 借入金利
% - 月々のお支払い金額
円
- 借入ご希望金額
※ 月々のお支払例は目安の試算となりますので、実際の金額とは異なる場合がございます。詳しくは店舗までお問合わせください。
- 足立区入谷2丁目
-
日暮里舎人ライナー『舎人』 徒歩12分 (約960m)
日暮里舎人ライナー『舎人公園』 徒歩24分 (約1900m)
足立区入谷2丁目マンション | 物件情報
2019年築・室内状態良好!ペット飼育可能な1LDK住戸
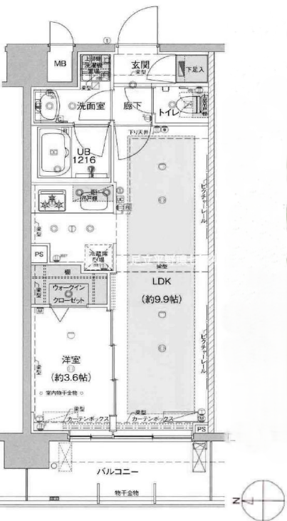
2019年築の比較的新しいマンションで、室内は丁寧に使用されており状態良好です。1LDKの使いやすい間取りは単身者やお二人暮らしにも適しており、リビングと洋室を分けて生活できる快適な空間です。ペット飼育可能(細則有)で、大切な家族と一緒に暮らせる点も魅力の一つです。日暮里舎人ライナー「舎人」駅徒歩12分、「見沼代親水公園」駅徒歩14分の2駅利用可能で、通勤・通学にも便利な立地です。周辺にはコンビニやドラッグストア、衣料品店など生活施設が徒歩圏内に揃っており、日々の暮らしをサポートします。現在空室のため、いつでもご内覧可能です。
物件の設備
- 公営水道
- 公共下水
- 都市ガス
- 浄水器
- コンロ三口
- システムキッチン
- ユニットバス
- TV付バス
- 追焚機能
- 温水洗浄便座
- B/T別室
- 室内洗濯機置場
- 洗面所独立
- ウォークインクローゼット
- バルコニー
- エレベーター
物件の特徴
- 管理人日勤
- スーパーが近い
- 閑静な住宅街
- 市街地が近い
- ペット相談
- ペット対応
物件詳細情報
| 価格 | 2,790万円 | 間取り | 1LDK |
|---|---|---|---|
| 物件種別 | 中古マンション | ||
| 所在地 | 東京都足立区入谷2丁目 | ||
| アクセス |
|
||
| 専有面積 | 壁芯 37.72㎡ | 所在階 | 9階建/2階部分 |
| 主要採光 | 西向 | バルコニー | 西向6.56㎡ |
| その他 | |||
| 権利 | 所有権 |
||
| 保証・評価 | |||
| リフォーム | |||
| 総戸数 | 面積 | ||
| 築年月 | 2019年(令和1年)12月築 | 建物構造 | RC |
| 施工会社 | |||
| 管理会社 | 管理方式 | 全部委託 日勤管理 | |
| 駐車場 | |||
| 都市計画 | 用途地域 | 1種中高 | |
| 建ぺい/容積率 | 土地国土法 | ||
| 法令制限 | |||
| 小学区 | 舎人小学校 徒歩11分 (約850m) | 中学区 | 入谷南中学校 徒歩9分 (約700m) |
| 現況 | 空 | 引渡 | 相談 |
| 管理費 | 8,790円/月 | 修繕積立金 | 4,500円/月 |
| その他費用 | |||
| 周辺環境 | 足立区立足立入谷小学校 徒歩3分 (約230m) 足立区立入谷中学校 徒歩6分 (約480m) 足立区立舎人小学校 徒歩11分 (約850m) 足立区立入谷南中学校 徒歩10分 (約730m) |
||
| 備考 | |||
| 物件番号 | 4688230 | 取引態様 | 媒介 |
取扱店舗情報
ハウスドゥ 足立平野環七通り 株式会社CiansStep 店舗詳細ページへ
| 電話番号 | 03-5809-6190 |
|---|---|
| 所在地 | 〒121-0076 東京都足立区平野1丁目15-27 |
| 営業時間 | 9:00~18:00 |
| 定休日 | 火曜日、水曜日 |
| 宅建免許番号 | 東京都知事(1)第113026号 |
| アクセス | 店舗への地図はこちら |

来店ご予約
東京都足立区で価格が似ている物件はこちら
- 東京都
マイページ物件数 - 5,936件
最近見た物件
-
-

-
- 中古マンション
- 5,998万円
-
大田区大森北1丁目
-
JR京浜東北・根岸線大森
-
-
-

-
- 中古マンション
- 3,090万円
-
茨木市大正町
-
JR東海道線千里丘
-
-
-

-
- 中古マンション
- 2,380万円
-
名古屋市港区入船1丁目
-
名古屋市名港線名古屋港
-
東京都中古マンション新着物件
-
-

-
- 中古マンション
- 1億2,000万円
-
港区麻布十番2丁目
-
都営大江戸線麻布十番駅
-
-
-

-
- 中古マンション
- 4,390万円
-
練馬区石神井台4丁目
-
西武新宿線上石神井駅
-
-
-

-
- 中古マンション
- 1億5,980万円
-
江東区佐賀1丁目
-
東京メトロ東西線門前仲町駅
-
-
-

-
- 中古マンション
- 580万円
-
小平市花小金井南町2丁目
-
西武新宿線花小金井駅
-
-
-

-
- 中古マンション
- 1億2,980万円
-
港区南麻布2丁目
-
東京メトロ南北線白金高輪駅
-
-
-

-
- 中古マンション
- 3,180万円
-
墨田区業平1丁目
-
都営浅草線押上駅
-
-
-

-
- 中古マンション
- 2,080万円
-
足立区梅田7丁目
-
東武伊勢崎・大師線梅島駅
-
- お近くの店舗を探す
-
おすすめ物件
-
-

-
- 中古マンション
- 1,870万円
-
練馬区関町北2丁目
-
西武新宿線武蔵関
-
-
-

-
- 中古マンション
- 2,280万円
-
葛飾区南水元1丁目
-
JR千代田・常磐緩行線金町
-
-
-

-
- 中古マンション
- 1億4,000万円
-
大田区蒲田4丁目
-
京急本線京急蒲田
-
-
-

-
- 中古マンション
- 5,699万円
-
大田区大森本町2丁目
-
京急本線平和島
-
-
-

-
- 中古マンション
- 850万円
-
青梅市長淵7丁目
-
JR青梅線青梅
-
-
-

-
- 中古マンション
- 2,480万円
-
狛江市岩戸南1丁目
-
小田急小田原線喜多見
-
-
-

-
- 中古マンション
- 4,980万円
-
大田区西蒲田8丁目
-
JR京浜東北・根岸線蒲田
-
-
-

-
- 中古マンション
- 5,298万円
-
練馬区関町南2丁目
-
西武新宿線武蔵関
-
-
-

-
- 中古マンション
- 4,598万円
-
葛飾区金町1丁目
-
京成金町線京成金町
-
-
-

-
- 中古マンション
- 2,990万円
-
足立区花畑5丁目
-
東武伊勢崎・大師線谷塚
-







担当エージェント:穴井一樹
築年数が比較的浅く、室内の状態も良好なため、そのままお住まいいただける点が大きな魅力です。TV付浴室や浄水器付キッチンなど、日々の生活を快適にする設備も整っています。バルコニー面積も確保されており、開放感のある空間です。周辺環境は徒歩圏内にコンビニ・金融機関・ドラッグストアなどが揃っており、利便性の高い住環境となっております。空室につきご都合に合わせてご案内可能ですので、お気軽にお問い合わせください。