倉敷市林の新築戸建
掲載情報更新日:2025年10月31日 次回更新予定日:2025年11月14日
- 2,680万円
-
- 借入ご希望金額
万円 - 借入期間
年 - 借入金利
% - 月々のお支払い金額
円
- 借入ご希望金額
※ 月々のお支払例は目安の試算となりますので、実際の金額とは異なる場合がございます。詳しくは店舗までお問合わせください。
- 倉敷市林
-
JR本四備讃線『木見』 徒歩19分 (約1520m)
倉敷市林一戸建て | 物件情報
シューズクローク、ワイルドバルコニー、ウォークインクローゼット!あれば嬉しい設備が沢山♪
南東7m道路と公園につき明るく開放的!徒歩圏内に商業施設充実でいているのが嬉しいですね♪冬はぽかぽか♪夏は涼しい断熱等級5取得(*^^*)広々16帖のリビングで対面キッチンなので家族の時間が楽しめそうですね!
物件の設備
- 電気
- 上水道
- 公営水道
- 下水道
- 公共下水
- プロパンガス
- 個別プロパン
- 浄水器
- コンロ三口
- カウンターキッチン
- システムキッチン
- バス
- オートバス
- バス1坪以上
- 浴室乾燥機
- 浴室に窓
- トイレ2箇所
- 温水洗浄便座
- 室内洗濯機置場
- 洗髪洗面化粧台
- 洗面所独立
- カードキー
- モニタ付インターホン
- LDK15畳以上
- 複層ガラス
- 全居室複層ガラス
- フローリング
- 24時間換気システム
- クローゼット
- クローゼット2箇所
- ウォークインクローゼット
- 床下収納
- シューズインクローク
- バルコニー
- 庭
物件の特徴
- 前道6m以上
- 閑静な住宅街
- 陽当り良好
- 2階建
物件詳細情報
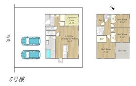
| 価格 | 2,680万円 | 間取り | 4LDK+S |
|---|---|---|---|
| 物件種別 | 新築一戸建て | ||
| 所在地 | 岡山県倉敷市林2026-1 3号棟 | ||
| アクセス |
|
||
| 建物面積 | 公97.3㎡ | 駐車場 | なし |
| 築年月 | 2024年(令和6年)10月予定 | 建築確認 | 第トラスト24-0151号 |
| 建物構造 | 木造 2階建 | 工法 | |
| 主要採光 | バルコニー | ||
| 保証・評価 | |||
| 分譲情報 | 【販売戸数】:3戸 |
||
| 土地面積 | 公173.36㎡(52.44坪) | 接道 | 南東側(公道)幅 約7.0m |
| 私道 | セットバック | ||
| 地目 | 宅地 | 地勢 | |
| 権利 | |||
| 都市計画 | 市街化区域 |
用途地域 | 1種低層 |
| 建ぺい/容積率 | 50% / 100% | 土地国土法 | |
| 許可番号 | 建築基準法 | ||
| 法令制限 | |||
| 小学区 | 郷内小学校 徒歩9分 (約720m) | 中学区 | 郷内中学校 徒歩12分 (約960m) |
| 現況 | 建築中 | 引渡 | 未記入 |
| その他費用 | |||
| 備考 | |||
| 物件番号 | 3819798 | 取引態様 | 媒介 |
取扱店舗情報
| 電話番号 | 086-472-0306 |
|---|---|
| 所在地 | 〒711-0921 岡山県倉敷市児島駅前1丁目55-11 1F |
| 営業時間 | 9:00~18:00 |
| 定休日 | 水曜日 |
| 宅建免許番号 | 岡山県知事(2)第5771号 |
| アクセス | 店舗への地図はこちら |

来店ご予約
岡山県倉敷市で価格が似ている物件はこちら
- 岡山県
マイページ物件数 - 4,369件
最近見た物件
-
-

-
- 中古一戸建て
- 250万円
-
瀬戸内市長船町飯井
-
JR赤穂線長船
-
-
-

-
- 中古一戸建て
- 1,650万円
-
宮崎市小松台西1丁目
-
北ハイランド
-
岡山県新築一戸建て新着物件
- お近くの店舗を探す
-
おすすめ物件
-
-

-
- 新築一戸建て
- 3,380万円
-
岡山市北区撫川
-
JR山陽本線庭瀬
-
-
-

-
- 新築一戸建て
- 2,598万円
-
津山市高野本郷
-
JR因美線高野
-
-
-

-
- 新築一戸建て
- 3,080万円
-
岡山市北区庭瀬
-
JR山陽本線庭瀬
-
-
-

-
- 新築一戸建て
- 2,880万円
-
岡山市南区福富中2丁目
-
JR宇野線備前西市
-
-
-

-
- 新築一戸建て
- 2,880万円
-
岡山市中区湊
-
岡山電軌東山本線東山岡電ミュージアム
-
-
-

-
- 新築一戸建て
- 2,880万円
-
岡山市中区山崎
-
JR赤穂線大多羅
-
-
-

-
- 新築一戸建て
- 2,780万円
-
岡山市中区湊
-
岡山電軌東山本線東山岡電ミュージアム
-
-
-

-
- 新築一戸建て
- 2,950万円
-
岡山市北区今保
-
JR山陽本線庭瀬
-
-
-

-
- 新築一戸建て
- 4,980万円
-
総社市中央1丁目
-
JR伯備線総社
-











住宅ローンのことならお任せください(^^♪