新築戸建 東広島市八本松町米満 No.5
掲載情報更新日:2026年03月05日 次回更新予定日:2026年03月19日
- 3,590万円
-
- 借入ご希望金額
万円 - 借入期間
年 - 借入金利
% - 月々のお支払い金額
円
- 借入ご希望金額
※ 月々のお支払例は目安の試算となりますので、実際の金額とは異なる場合がございます。詳しくは店舗までお問合わせください。
- 東広島市八本松町米満
-
JR山陽本線『寺家』 車7分(約2.8km)
『磯松中学校バス停』 徒歩5分 (約400m)
新築戸建 東広島市八本松町米満 No.5一戸建て | 物件情報
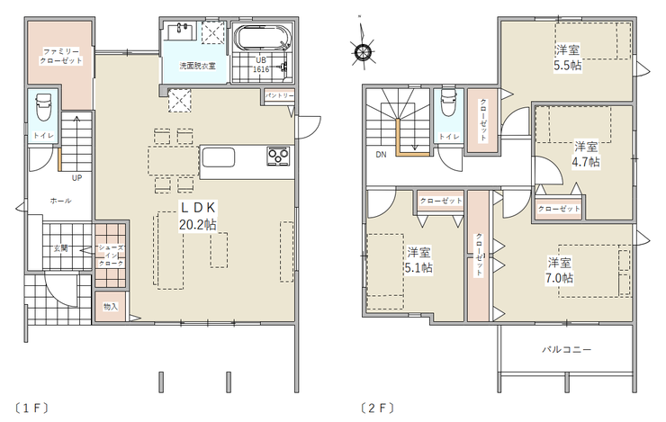
堂々完成!限定3棟♪4LDKで4台駐車可能! シューズクロークやファミリークロークなど収納充実!
〇おすすめ〇
磯松中学校まで徒歩5分!!
新しく分譲された団地なので、綺麗に整備されています。
4台駐車可能で、ご友人やご家族が遊びに来ても安心♪
将来お子様が車を購入したり、帰省した時も大変便利ですね。
シューズクロークや大容量のファミリークローク、全室収納付なのでお家の中をいつでも
すっきり快適に保つことができます。
JR山陽線 寺家駅まで車で7分。
スマートインターも建設中で、通勤や通学へのアクセスが便利な立地となっています♪
閑静な住宅街なのも魅力の一つ!
ぜひ一度ご覧ください。
物件の設備
- オール電化
- 公営水道
- 浄化槽
- 給湯
- 食器洗浄乾燥機
- 食品庫
- IHクッキングヒータ
- コンロ三口
- グリル
- システムキッチン
- オープンキッチン
- バス
- ユニットバス
- オートバス
- バス1坪以上
- 追焚機能
- 浴室暖房
- 浴室乾燥機
- 浴室に窓
- トイレ
- トイレ2箇所
- 温水洗浄便座
- 室内洗濯機置場
- 洗髪洗面化粧台
- ディンプルキー
- ダブルロックキー
- モニタ付インターホン
- 火災警報器/報知機
- LDK15畳以上
- LDK18畳以上
- LDK20畳以上
- 2面採光
- 複層ガラス
- 全居室複層ガラス
- フローリング
- 24時間換気システム
- クローゼット
- クローゼット2箇所
- クローゼット3箇所
- ウォークインクローゼット
- 全居室収納
- シューズWIC
- シューズボックス
- シューズインクローク
- ワイドバルコニー
物件の特徴
- 南向
- 制震構造
- 前道6m以上
- 南側道路面す
- 緑豊かな住宅地
- 閑静な住宅街
- 田園風景
- 通風良好
- 陽当り良好
- 2階建
- 整形地
- 開発分譲地内
- 外壁サイディング
- バリアフリー
- 新築
- 増改築設計図書
物件詳細情報
| 価格 | 3,590万円 | 間取り | 4LDK |
|---|---|---|---|
| 物件種別 | 新築一戸建て | ||
| 所在地 | 広島県東広島市八本松町米満 5号地 | ||
| アクセス |
|
||
| 建物面積 | 107.93㎡ | 駐車場 | あり 普通:4台 |
| 築年月 | 2025年(令和7年)10月築 | 建築確認 | |
| 建物構造 | 木造 2階建 | 工法 | |
| 主要採光 | 南向 | バルコニー | |
| 保証・評価 | |||
| 分譲情報 | |||
| 土地面積 | 166.83㎡(50.46坪) | 接道 | 南側(公道)幅 約6.0m 間口 約10.00m |
| 私道 | セットバック | ||
| 地目 | 宅地 | 地勢 | |
| 権利 | 所有権 |
||
| 都市計画 | 用途地域 | ||
| 建ぺい/容積率 | 60% / 200% | 土地国土法 | |
| 許可番号 | 建築基準法 | ||
| 法令制限 | 景観法・宅地造成工事規制区域 | ||
| 小学区 | 平岩小学校 徒歩18分 (約1400m) | 中学区 | 磯松中学校 徒歩5分 (約400m) |
| 現況 | 完工済 | 引渡 | 相談 |
| その他費用 | その他負担金:132000円 水道負担金 |
||
| 周辺環境 | 東広島市立磯松中学校 徒歩11分 (約850m) セブンイレブン東広島八本松米満店 徒歩12分 (約920m) 高橋ホームクリニック 徒歩21分 (約1630m) 東広島市立川上小学校 徒歩22分 (約1740m) 八本松東郵便局 徒歩24分 (約1860m) ゆめマート八本松 徒歩22分 (約1740m) ウォンツ八本松店 徒歩31分 (約2430m) ショージ寺家店 徒歩25分 (約1930m) JR山陽本線 寺家駅 徒歩28分 (約2230m) ローソン東広島寺家駅前店 徒歩29分 (約2300m) |
||
| 備考 | ZEH水準 制震ダンパー設置 瑕疵保険料80,000円別途要 |
||
| 物件番号 | 4227304 | 取引態様 | 媒介 |
取扱店舗情報
ハウスドゥ 八本松正力 株式会社ノア・コーポレーション 店舗詳細ページへ
| 電話番号 | 082-490-3341 |
|---|---|
| 所在地 | 〒739-0132 広島県東広島市八本松町正力1089-6 |
| 営業時間 | 9:00~18:00 |
| 定休日 | 水曜日、年末年始 |
| 宅建免許番号 | 広島県知事(1)第11474号 |
| アクセス | 店舗への地図はこちら |

来店ご予約
広島県東広島市で価格が似ている物件はこちら
- 広島県
マイページ物件数 - 4,821件
最近見た物件
-
-

-
- 土地
- 110万円
-
八戸市大字新井田字朴木沢
-
新井田団地バス停
-
-
-

-
- 新築一戸建て
- 2,680万円
-
富山市中市2丁目
-
富山地鉄不二越上滝線大泉
-
広島県新築一戸建て新着物件
-
-

-
- 新築一戸建て
- 3,490万円
-
福山市西深津町6丁目
-
JR山陽本線福山駅
-
-
-

-
- 新築一戸建て
- 4,280万円
-
広島市南区北大河町
-
まちのわループ旭町バス停
-
-
-

-
- 新築一戸建て
- 3,380万円
-
福山市東川口町4丁目
-
JR山陽本線福山駅
-
-
-

-
- 新築一戸建て
- 4,398万円
-
安芸郡坂町坂東1丁目
-
JR呉線坂駅
-
-
-

-
- 新築一戸建て
- 3,097万円
-
尾道市吉浦町
-
JR山陽本線尾道駅
-
-
-

-
- 新築一戸建て
- 2,885万円
-
尾道市吉浦町
-
JR山陽本線尾道駅
-
-
-

-
- 新築一戸建て
- 2,450万円
-
安芸郡熊野町呉地1丁目
-
熊野町役場前バス停
-
- お近くの店舗を探す
-
おすすめ物件
-
-

-
- 新築一戸建て
- 3,850万円
-
福山市水呑町三新田1丁目
-
JR山陽本線福山
-
-
-

-
- 新築一戸建て
- 1,680万円
-
府中市高木町
-
JR福塩線高木
-
-
-

-
- 新築一戸建て
- 3,090万円
-
福山市新涯町4丁目
-
JR山陽本線福山
-
-
-

-
- 新築一戸建て
- 3,380万円
-
福山市草戸町4丁目
-
JR山陽本線福山
-
-
-

-
- 新築一戸建て
- 3,480万円
-
福山市加茂町字上加茂
-
JR山陽本線福山
-
-
-

-
- 新築一戸建て
- 2,480万円
-
福山市神辺町字下御領
-
井原鉄道御領
-
-
-

-
- 新築一戸建て
- 3,580万円
-
福山市長者町
-
JR福塩線備後本庄
-
-
-

-
- 新築一戸建て
- 2,480万円
-
福山市新涯町4丁目
-
JR山陽本線東福山
-
-
-

-
- 新築一戸建て
- 3,080万円
-
福山市今津町3丁目
-
JR山陽本線松永
-
-
-

-
- 新築一戸建て
- 2,890万円
-
福山市山手町3丁目
-
JR福塩線備後本庄
-

















