オール電化♪敷地50坪超!セルリアンステージ周南市大神二丁目
掲載情報更新日:2025年12月31日 次回更新予定日:2026年01月14日
- 3,580万円
-
- 借入ご希望金額
万円 - 借入期間
年 - 借入金利
% - 月々のお支払い金額
円
- 借入ご希望金額
※ 月々のお支払例は目安の試算となりますので、実際の金額とは異なる場合がございます。詳しくは店舗までお問合わせください。
- 周南市大神2丁目
-
JR山陽本線『新南陽』 車6分(約2.0km)
オール電化♪敷地50坪超!セルリアンステージ周南市大神二丁目一戸建て | 物件情報
大神エリアに新築戸建が登場♪5LDKで駐車3台!
◆オール電化
◇和室あり
◆駐車3台可!
◇全居室収納あり
物件の設備
- 電気
- オール電化
- 公営水道
- 公共下水
- 食器洗浄乾燥機
- IHクッキングヒータ
- コンロ一口
- コンロ二口
- コンロ三口
- バス
- 浴室乾燥機
- トイレ
- トイレ2箇所
- 室内洗濯機置場
- モニタ付インターホン
- LDK15畳以上
- 和室
- 複層ガラス
- クローゼット
- クローゼット2箇所
- クローゼット3箇所
- ウォークインクローゼット
- 全居室収納
- シューズインクローク
- バルコニー
物件の特徴
- 2階建
物件詳細情報
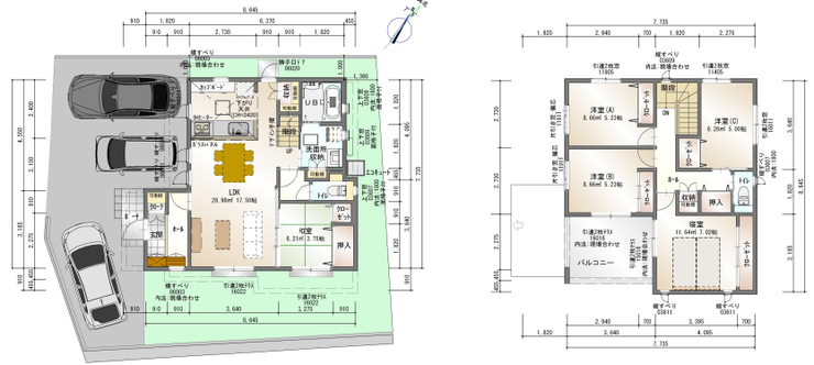
| 価格 | 3,580万円 | 間取り | 5LDK |
|---|---|---|---|
| 物件種別 | 新築一戸建て | ||
| 所在地 | 山口県周南市大神2丁目 | ||
| アクセス |
|
||
| 建物面積 | 111.99㎡ | 駐車場 | あり 普通:3台 |
| 築年月 | 2026年(令和8年)01月予定 | 建築確認 | R7建確建住セ岩第0104号 |
| 建物構造 | 木造 2階建 | 工法 | |
| 主要採光 | 南東向 | バルコニー | 南東向8.28㎡ |
| 保証・評価 | |||
| 土地面積 | 165.88㎡(50.17坪) | 接道 | 西側(公道)幅 約4.5m |
| 私道 | セットバック | ||
| 地目 | 宅地 | 地勢 | |
| 権利 | 所有権 |
||
| 都市計画 | 市街化区域 |
用途地域 | 1種中高 |
| 建ぺい/容積率 | 60% / 180% | 土地国土法 | |
| 許可番号 | 建築基準法 | ||
| 法令制限 | |||
| 小学区 | 富田西小学校 徒歩21分 (約1660m) | 中学区 | 富田中学校 徒歩20分 (約1530m) |
| 現況 | 建築中 | 引渡 | 期日指定:2026年01月以降 |
| その他費用 | |||
| 周辺環境 | 富田西小学校 徒歩21分 (約1660m) 富田中学校 徒歩20分 (約1530m) クスリ岩崎チェーン 永源山公園店 徒歩6分 (約420m) ローソン 新南陽土井一丁目店 徒歩14分 (約1100m) |
||
| 備考 | ※省エネ基準適合住宅 ※外壁光セラ(KMEW) ※制振ダンパー(住友ゴム"MAMORY") ※フラット35S(金利Bプラン)対応 ※瑕疵担保責任保険(まもりすまい保険) ※オール電化(エコキュート) ※IHクッキングヒーター ※食器洗乾燥機 ※浴室乾燥機能 ※1F・2Fウォッシュレットトイレ ※オールLow-Eペアガラス ※アルミ樹脂複合サッシ ※玄関ドア電子錠 ※玄関クローク ※リビング階段 ※勝手口 ※南向きのひろびろバルコニー ※南向きのひろびろお庭 ※3台駐車可能 ※外構付き |
||
| 物件番号 | 4356631 | 取引態様 | 媒介 |
取扱店舗情報
ハウスドゥ 周南城ケ丘 株式会社田村ビルズ 店舗詳細ページへ
| 電話番号 | 0834-34-1107 |
|---|---|
| 所在地 | 〒745-0807 山口県周南市城ケ丘1丁目2-32 |
| 営業時間 | 9:30~18:00 |
| 定休日 | 水曜日、第2・第3・第4・第5木曜日 |
| 宅建免許番号 | 国土交通大臣(2)第9501号 |
| アクセス | 店舗への地図はこちら |

来店ご予約
山口県周南市で価格が似ている物件はこちら
- 山口県
マイページ物件数 - 3,150件
最近見た物件
-
-

-
- 新築一戸建て
- 2,988万円
-
宮崎市永楽町
-
JR日豊本線宮崎
-
山口県新築一戸建て新着物件
- お近くの店舗を探す
-
おすすめ物件
-
-

-
- 新築一戸建て
- 1,988万円
-
防府市東三田尻1丁目
-
JR山陽本線防府
-
-
-

-
- 新築一戸建て
- 2,488万円
-
山口市平井
-
JR山口線矢原
-
-
-

-
- 新築一戸建て
- 2,388万円
-
山口市平井
-
JR山口線矢原
-
-
-

-
- 新築一戸建て
- 2,188万円
-
防府市東三田尻1丁目
-
JR山陽本線防府
-
-
-

-
- 新築一戸建て
- 2,998万円
-
下関市大字延行
-
JR山陽本線新下関
-
-
-

-
- 新築一戸建て
- 2,898万円
-
山口市吉敷中東1丁目
-
JR山口線湯田温泉
-
-
-

-
- 新築一戸建て
- 2,898万円
-
山口市湯田温泉6丁目
-
JR山口線湯田温泉
-
-
-

-
- 新築一戸建て
- 2,188万円
-
防府市東三田尻1丁目
-
JR山陽本線防府
-
-
-

-
- 新築一戸建て
- 3,298万円
-
下関市川中本町
-
JR山陰本線綾羅木
-
-
-

-
- 新築一戸建て
- 2,998万円
-
山口市吉敷中東1丁目
-
JR山口線湯田温泉
-

























担当エージェント:松尾 翔
南向きひろびろバルコニーで日当たり良好!風通しも良好な間取りです♪
大家族でも安心な5LDK!駐車も3台可能です。
スーパーやドラッグストアも近くて嬉しいですね♪