新潟市西区大野の新築戸建
掲載情報更新日:2026年03月16日 次回更新予定日:2026年03月30日
- 2,680万円
-
- 借入ご希望金額
万円 - 借入期間
年 - 借入金利
% - 月々のお支払い金額
円
- 借入ご希望金額
※ 月々のお支払例は目安の試算となりますので、実際の金額とは異なる場合がございます。詳しくは店舗までお問合わせください。
- 新潟市西区大野
-
JR越後線『新潟大学前』 徒歩11分 (約880m)
新潟交通(バス)『「西坂井団地」』 徒歩5分 (約400m)
新潟市西区大野一戸建て | 物件情報
不動産の売買はぜひ「ハウスドゥ女池」にお任せください!ワンストップで全て解決♪
◆新潟市中央区の不動産のことなら『ハウスドゥ女池』へ◆
全国約700店舗展開中!ハウスドゥの地域密着型ネットワーク
×
規格住宅・自由設計両方対応可能!ワンストップ型店舗
土地探し・新築・リフォーム・売却・お引越しに至るまで
不動産に関するご相談はハウスドゥ女池で全て解決!
現在建築中!同社モデルハウスはいつでもご案内可能です!
お気軽にお問い合わせ下さい【025-288-5891】
≪物件おすすめポイント≫
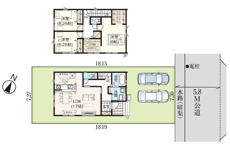
■新通つばさ小/坂井輪中エリア!
■小学校まで徒歩3分♪
■駐車2台可能(※車種によります)
■前面道路幅5.8m!駐車も楽々♪
■大容量ウォークインクローゼット
■LDK17畳で広々♪
物件の設備
- 公営水道
- 公共下水
- 給湯
- 浄水器
- コンロ三口
- カウンターキッチン
- システムキッチン
- 浴室暖房
- 浴室乾燥機
- 浴室に窓
- トイレ2箇所
- 温水洗浄便座
- 洗髪洗面化粧台
- BS
- ディンプルキー
- モニタ付インターホン
- 火災警報器/報知機
- LDK15畳以上
- 全室2面採光
- 複層ガラス
- フローリング
- 24時間換気システム
- ウォークインクローゼット
- 床下収納
- 全居室収納
物件の特徴
- ノンホルムアルデヒド
- 耐震構造
- 小学校徒歩10分以内
- 2階建
- 整形地
- 外壁サイディング
物件詳細情報
| 価格 | 2,680万円 | 間取り | 3LDK |
|---|---|---|---|
| 物件種別 | 新築一戸建て | ||
| 所在地 | 新潟県新潟市西区大野 | ||
| アクセス |
|
||
| 建物面積 | 96.05㎡ | 駐車場 | あり 普通:2台 |
| 築年月 | 2025年(令和7年)10月予定 | 建築確認 | 第HPA-25-05881-1号 |
| 建物構造 | 木造 2階建 | 工法 | |
| 主要採光 | バルコニー | ||
| 保証・評価 | |||
| 土地面積 | 132.46㎡(40.06坪) | 接道 | 北東側(公道)幅 約5.8m 間口 約7.30m |
| 私道 | セットバック | ||
| 地目 | 宅地 | 地勢 | |
| 権利 | 所有権 |
||
| 都市計画 | 市街化区域 |
用途地域 | 1種住居 |
| 建ぺい/容積率 | 60% / 200% | 土地国土法 | |
| 許可番号 | 建築基準法 | ||
| 法令制限 | 都市再生特別措置法・景観法・日影制限有・法22条区域・道路斜線制限・隣地斜線制限 | ||
| 小学区 | 新通つばさ小学校 徒歩3分 (約210m) | 中学区 | 坂井輪中学校 徒歩28分 (約2200m) |
| 現況 | 建築中 | 引渡 | 期日指定:2025年11月上旬以降 |
| その他費用 | |||
| 周辺環境 | 新潟市立 新通つばさ小学校 徒歩3分 (約210m) 新潟市立 坂井輪中学校 徒歩27分 (約2160m) ココカラファイン 新通店 徒歩11分 (約850m) クスリのアオキ 坂井砂山店 徒歩18分 (約1400m) 清水フードセンター 坂井店 徒歩16分 (約1260m) 原信 五十嵐東店 徒歩20分 (約1540m) ウエルシア 新潟寺尾店 徒歩23分 (約1790m) 坂井輪郵便局 徒歩23分 (約1810m) ウオロク 内野店 徒歩25分 (約1960m) 内野駅 徒歩29分 (約2270m) |
||
| 備考 | ■駐車:2台可能(※車種によります) | ||
| 物件番号 | 4365165 | 取引態様 | 媒介 |
取扱店舗情報
ハウスドゥ 女池 株式会社リアライズ・コーポレーション 店舗詳細ページへ
| 電話番号 | 025-288-5891 |
|---|---|
| 所在地 | 〒950-0946 新潟県新潟市中央区女池西2-2-9 |
| 営業時間 | 9:30~18:30 |
| 定休日 | 水曜日 |
| 宅建免許番号 | 新潟県知事(4)第4864号 |
| アクセス | 店舗への地図はこちら |

来店ご予約
新潟県新潟市西区で価格が似ている物件はこちら
- 新潟県
マイページ物件数 - 1,597件
最近見た物件
-
-

-
- 土地
- 3,998万円
-
名古屋市名東区西里町1丁目
-
名古屋市東山線星ヶ丘
-
-
-

-
- 中古一戸建て
- 2,380万円
-
長崎市豊洋台2丁目
-
豊洋台中央
-
-
-

-
- 中古一戸建て
- 150万円
-
境港市外江町
-
JR境線馬場崎町
-
新潟県新築一戸建て新着物件
-
-

-
- 新築一戸建て
- 3,380万円
-
新潟市東区中山6丁目
-
JR越後線新潟駅
-
-
-

-
- 新築一戸建て
- 2,980万円
-
新潟市西区寺尾東1丁目
-
JR越後線寺尾駅
-
-
-

-
- 新築一戸建て
- 2,680万円
-
新潟市江南区横越東町1丁目
-
JR信越本線亀田駅
-
-
-

-
- 新築一戸建て
- 2,480万円
-
新潟市江南区横越東町1丁目
-
JR信越本線亀田駅
-
-
-

-
- 新築一戸建て
- 3,280万円
-
新潟市江南区亀田中島4丁目
-
JR信越本線亀田駅
-
-
-

-
- 新築一戸建て
- 2,980万円
-
新潟市江南区亀田中島4丁目
-
JR信越本線亀田駅
-
-
-

-
- 新築一戸建て
- 2,880万円
-
新潟市江南区亀田中島4丁目
-
JR信越本線亀田駅
-
- お近くの店舗を探す
-












担当エージェント:佐藤 俊範
当店は株式会社リアライズ・コーポレーションが運営する「新潟市中央区」に特化した、地域密着型の不動産会社です。
全国約700店舗展開中の古田さんCMでおなじみの「ハウスドゥ」また、新潟市中央区の「ジブンハウス」加盟店である当店は、新築のご相談から土地探し、リフォーム・不動産のご売却、更にはお引越しに至るまで「ワンストップ」でお客様の「お家探し」を全力サポート致します!
店内はお客様がゆったり過ごせるカフェのような空間をご提供♪ぜひお気軽にお越しください!