Loading
  1. TOP>
  2. 一戸建て>
  3. 近畿>
  4. 大阪府>
  5. 茨木市>
  6. 三島丘2丁目>
  7. 茨木市三島丘2丁目の新築戸建

茨木市三島丘2丁目の新築戸建

掲載情報更新日:2025年09月22日 次回更新予定日:2025年10月06日

  • 4,180万円
    • 借入ご希望金額
      万円
    • 借入期間
    • 借入金利
    • 月々のお支払い金額

※ 月々のお支払例は目安の試算となりますので、実際の金額とは異なる場合がございます。詳しくは店舗までお問合わせください。

  • 茨木市三島丘2丁目
  • 阪急電鉄京都線『総持寺』 徒歩13分 (約1040m)
取扱会社:ハウスドゥ 高槻富田  株式会社コンフォート住宅販売
  • この物件に資料請求・問い合わせをする
  • ■お電話はこちら 072-668-2246

茨木市三島丘2丁目一戸建て | 物件情報

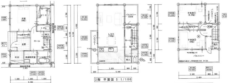
【間取り】

【間取り】

取扱会社
ハウスドゥ 高槻富田  
  • この物件に資料請求・問い合わせをする
  • ■お電話はこちら 072-668-2246

物件の設備

  • 電気
  • 上水道
  • 下水道
  • 都市ガス
  • 給湯
  • カウンターキッチン
  • システムキッチン
  • バス
  • オートバス
  • 浴室に窓
  • トイレ2箇所
  • 室内洗濯機置場
  • 洗髪洗面化粧台
  • 洗面所独立
  • LDK18畳以上
  • 全居室6畳以上
  • フローリング
  • 24時間換気システム
  • クローゼット
  • ウォークインクローゼット
  • 2面バルコニー
  • ハイルーフ駐車可能

物件の特徴

  • 小学校徒歩10分以内
  • 通風良好
  • 陽当り良好
  • 3階建以上
  • 角地
  • 平坦地

物件詳細情報

価格 4,180万円 間取り 3LDK
物件種別 新築一戸建て
所在地 大阪府茨木市三島丘2丁目9-31
アクセス
  • 阪急電鉄京都線『総持寺』 徒歩13分 (約1040m)
建物面積 109.34㎡ 駐車場 あり 普通:1台
築年月 2024年(令和6年)08月築 建築確認 技建認R07-00003025
建物構造 木造 3階建 工法
主要採光 北向 バルコニー
保証・評価
土地面積 公83.13㎡(25.14坪) 接道 北側(私道)幅 約4.0m
西側(私道)幅 約4.0m
私道 セットバック
地目 宅地 地勢
権利 所有権
都市計画 市街化区域
用途地域 1種中高
建ぺい/容積率 60% / 200% 土地国土法
許可番号 建築基準法
法令制限
小学区 三島小学校 徒歩6分 (約415m) 中学区 三島中学校 徒歩8分 (約629m)
現況 建築中 引渡 期日指定:2025年08月下旬
その他費用
備考
物件番号 4371017 取引態様 媒介

取扱店舗情報

ハウスドゥ 高槻富田  株式会社コンフォート住宅販売 店舗詳細ページへ

電話番号 072-668-2246
所在地 〒569-0814
大阪府高槻市富田町3丁目15-15
営業時間 10:00~19:00
定休日 水曜日、年末年始
宅建免許番号 大阪府知事(2)第61490号
アクセス 店舗への地図はこちら

ハウスドゥ  高槻富田の外観

この物件に関する資料請求・お問合せ

072-668-2246

お問い合わせの際に「ホームページを見た」といっていただくとお話がスムーズになります。

来店ご予約

ウィンドウを閉じる

ハウスドゥ 高槻富田  株式会社コンフォート住宅販売への地図

  • ハウスドゥ  高槻富田の地図

GoogleMapで地図を見る

ウィンドウを閉じる

大阪府茨木市で価格が似ている物件はこちら

戻る

次へ

  • 新築一戸建て 2025.01.27
    • 間取画像
    • 4,180万円
    • 茨木市目垣1丁目

    • 阪急電鉄京都線「茨木市駅」バス乗車15分 バス停「京阪バス目垣」まで徒歩5分

    • 3LDK

    詳細を見る

  • 新築一戸建て 2025.01.28
    • 概観画像
    • 4,180万円
    • 茨木市目垣1丁目

    • 阪急電鉄京都線「茨木市駅」バス乗車10分 バス停「目垣」まで徒歩7分

    • 4LDK

    詳細を見る

  • 新築一戸建て 2025.04.05

    詳細を見る

  • 新築一戸建て 2025.04.05
    • 間取画像
    • 4,198万円
    • 茨木市宿川原町

    • JR東海道線「茨木駅」バス乗車13分 バス停「阪急バス宿川原」まで徒歩4分

    • 4LDK

    詳細を見る

  • 新築一戸建て 2025.04.10
    • 間取画像
    • 4,198万円
    • 茨木市宿川原町

    • JR東海道線「茨木駅」バス乗車15分 バス停「石橋線90系統宿川原亭」まで徒歩5分

    • 4LDK

    詳細を見る

  • 新築一戸建て 2025.05.24
    • 間取画像
    • 4,280万円
    • 茨木市西河原北町

    • 阪急電鉄京都線「茨木市駅」バス乗車14分 バス停「五日市」まで徒歩4分

    • 3LDK

    詳細を見る

  • 新築一戸建て 2025.05.24

    詳細を見る

  • 新築一戸建て 2025.05.25
    • 間取画像
    • 4,280万円
    • 茨木市西河原北町

    • 阪急電鉄京都線「茨木市駅」バス乗車14分 バス停「近鉄バス五日市」まで徒歩4分

    • 3LDK

    詳細を見る

  • 新築一戸建て 2025.06.06
    • 概観画像
    • 4,180万円
    • 茨木市目垣1丁目

    • 阪急電鉄京都線「茨木市駅」バス乗車10分 バス停「京阪バス目垣」まで徒歩7分

    • 4LDK

    詳細を見る

  • 新築一戸建て 2025.06.28

    詳細を見る

  • 新築一戸建て 2025.08.05
    • 間取画像
    • 4,280万円
    • 茨木市西河原北町

    • 阪急電鉄京都線「茨木市駅」バス乗車14分 バス停「五日市」まで徒歩4分

    • 3LDK

    詳細を見る

大阪府茨木市の 新築一戸建て 一覧から探す

大阪府茨木市で種別を変更して探す

大阪府
マイページ物件数
17,497

マイページサービス

新規登録(無料)
  • 物件探しがもっと便利に
  • 希望情報をいち早くお届け
  • マイページ物件が閲覧可能

最近見た物件

大阪府新築一戸建て新着物件

お近くの店舗を探す

おすすめ物件

無料アプリ