9/2公開♪NEW!セルリアンステージ周南市政所3丁目
掲載情報更新日:2026年02月08日 次回更新予定日:2026年02月22日
- 3,380万円
-
- 借入ご希望金額
万円 - 借入期間
年 - 借入金利
% - 月々のお支払い金額
円
- 借入ご希望金額
※ 月々のお支払例は目安の試算となりますので、実際の金額とは異なる場合がございます。詳しくは店舗までお問合わせください。
- 周南市政所4丁目
-
JR山陽本線『新南陽』 徒歩10分 (約750m)
9/2公開♪NEW!セルリアンステージ周南市政所3丁目一戸建て | 物件情報
都市ガス仕様! エコジョーズ! 富田東小学校・富田中学校エリアです。
◇三口コンロで美味しく時短!グリル付き
◆衣類乾燥機 乾太君(6kgデラックスタイプ)標準仕様
◇カップボード付き
◆セカンドカーにも便利な駐車3台可(普通車1台、軽2台)
◇外構付き
◆家事の合間に気軽にお買い物に出れるFUJI新南陽店まで徒歩8分
物件の設備
- 電気
- 公営水道
- 公共下水
- 都市ガス
- 食器乾燥機
- 食器洗浄乾燥機
- コンロ一口
- コンロ二口
- コンロ三口
- グリル
- バス
- 浴室乾燥機
- トイレ
- トイレ2箇所
- 室内洗濯機置場
- LDK15畳以上
- 和室
- クローゼット
- クローゼット2箇所
- ウォークインクローゼット
- 納戸
物件の特徴
- 前道6m以上
- スーパーが近い
- 市街地が近い
- 陽当り良好
- 2階建
物件詳細情報
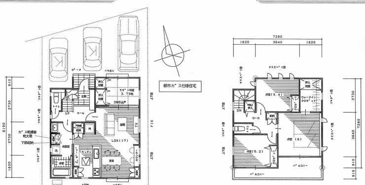
| 価格 | 3,380万円 | 間取り | 4LDK+S |
|---|---|---|---|
| 物件種別 | 新築一戸建て | ||
| 所在地 | 山口県周南市政所4丁目 | ||
| アクセス |
|
||
| 建物面積 | 101.85㎡ | 駐車場 | あり 普通:1台 軽:2台 |
| 築年月 | 2026年(令和8年)04月予定 | 建築確認 | R7建確住セ2第0161号 |
| 建物構造 | 木造 2階建 | 工法 | |
| 主要採光 | 南向 | バルコニー | |
| 保証・評価 | |||
| 分譲情報 | |||
| 土地面積 | 116.78㎡(35.32坪) | 接道 | 北側(公道)幅 約6.4m |
| 私道 | セットバック | ||
| 地目 | 宅地 | 地勢 | |
| 権利 | 所有権 |
||
| 都市計画 | 市街化区域 |
用途地域 | 1種住居 |
| 建ぺい/容積率 | 60% / 200% | 土地国土法 | |
| 許可番号 | 建築基準法 | ||
| 法令制限 | |||
| 小学区 | 富田東小学校 徒歩3分 (約170m) | 中学区 | 富田中学校 徒歩18分 (約1400m) |
| 現況 | 建築中 | 引渡 | 期日指定:2026年04月以降 |
| その他費用 | |||
| 周辺環境 | 富田東小学校 徒歩4分 (約290m) 富田中学校 徒歩14分 (約1120m) クスリ岩崎チェーン 永源山公園店 徒歩17分 (約1320m) セブン-イレブン 周南政所店 徒歩5分 (約380m) フジ 新南陽店 徒歩7分 (約490m) |
||
| 備考 | ※省エネ基準適合住宅 ※制振ダンパー(住友ゴム"MAMORY") ※フラット35S(金利Bプラン)対応 ※瑕疵担保責任保険(まもりすまい保険) ※都市ガス(エコジョーズ) ※食器洗乾燥機 ※カップボード ※浴室乾燥機能 ※1F・2Fウォッシュレットトイレ ※オールLow-Eペアガラス ※アルミ樹脂複合サッシ ※玄関ドア電子錠 ※外構付き |
||
| 物件番号 | 4396281 | 取引態様 | 媒介 |
取扱店舗情報
ハウスドゥ 周南城ケ丘 株式会社田村ビルズ 店舗詳細ページへ
| 電話番号 | 0834-34-1107 |
|---|---|
| 所在地 | 〒745-0807 山口県周南市城ケ丘1丁目2-32 |
| 営業時間 | 9:30~18:00 |
| 定休日 | 水曜日、第2・第3・第4・第5木曜日 |
| 宅建免許番号 | 国土交通大臣(2)第9501号 |
| アクセス | 店舗への地図はこちら |

来店ご予約
山口県周南市で価格が似ている物件はこちら
- 山口県
マイページ物件数 - 3,160件
最近見た物件
山口県新築一戸建て新着物件
-
-

-
- 新築一戸建て
- 4,280万円
-
下松市せせらぎ町1丁目
-
JR山陽本線下松駅
-
-
-

-
- 新築一戸建て
- 4,280万円
-
下松市せせらぎ町1丁目
-
JR山陽本線下松駅
-
-
-

-
- 新築一戸建て
- 4,280万円
-
下松市せせらぎ町1丁目
-
JR山陽本線下松駅
-
-
-

-
- 新築一戸建て
- 4,280万円
-
下松市せせらぎ町1丁目
-
JR山陽本線下松駅
-
-
-

-
- 新築一戸建て
- 4,280万円
-
下松市せせらぎ町1丁目
-
JR山陽本線下松駅
-
-
-

-
- 新築一戸建て
- 3,360万円
-
下関市安岡町5丁目
-
JR山陰本線安岡駅
-
-
-

-
- 新築一戸建て
- 3,290万円
-
周南市遠石1丁目
-
JR山陽本線徳山駅
-
- お近くの店舗を探す
-
おすすめ物件
-
-

-
- 新築一戸建て
- 2,698万円
-
防府市大字牟礼
-
JR山陽本線防府
-
-
-

-
- 新築一戸建て
- 2,380万円
-
防府市開出
-
JR山陽本線防府
-
-
-

-
- 新築一戸建て
- 2,998万円
-
山口市吉敷中東1丁目
-
JR山口線湯田温泉
-
-
-

-
- 新築一戸建て
- 3,498万円
-
山口市円政寺町
-
JR山口線上山口
-
-
-

-
- 新築一戸建て
- 3,198万円
-
宇部市東梶返2丁目
-
JR宇部線東新川
-
-
-

-
- 新築一戸建て
- 2,798万円
-
防府市大字牟礼
-
JR山陽本線防府
-
-
-

-
- 新築一戸建て
- 3,098万円
-
宇部市大字小串
-
JR宇部線宇部新川
-
-
-

-
- 新築一戸建て
- 1,988万円
-
山陽小野田市赤崎2丁目
-
JR小野田線小野田港
-
-
-

-
- 新築一戸建て
- 2,798万円
-
宇部市大小路2丁目
-
JR宇部線東新川
-
-
-

-
- 新築一戸建て
- 3,098万円
-
宇部市草江3丁目
-
JR宇部線草江
-








担当エージェント:松尾 翔
南向きバルコニーで日当たり良好!風通しも良好な間取りです♪明るい空間でのびのび過ごせます。