阿知須モデルハウス
掲載情報更新日:2026年02月08日 次回更新予定日:2026年02月22日
- 3,560万円
-
- 借入ご希望金額
万円 - 借入期間
年 - 借入金利
% - 月々のお支払い金額
円
- 借入ご希望金額
※ 月々のお支払例は目安の試算となりますので、実際の金額とは異なる場合がございます。詳しくは店舗までお問合わせください。
- 山口市阿知須
-
JR宇部線『阿知須』 徒歩13分 (約1000m)
阿知須モデルハウス一戸建て | 物件情報
物件の設備
- 電気
- 上水道
- 浄化槽
- プロパンガス
- IHクッキングヒータ
- カウンターキッチン
- ユニットバス
- 浴室に窓
- モニタ付インターホン
- ウォークインクローゼット
- シューズインクローク
物件詳細情報
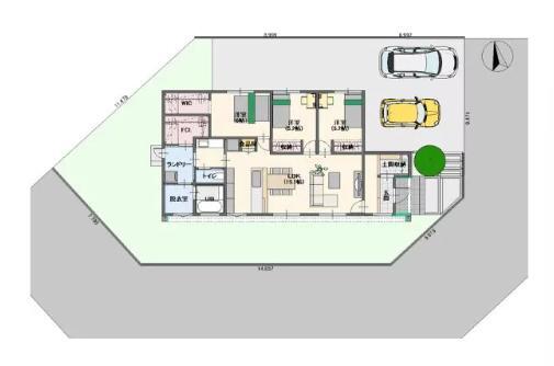
| 価格 | 3,560万円 | 間取り | 3LDK |
|---|---|---|---|
| 物件種別 | 新築一戸建て | ||
| 所在地 | 山口県山口市阿知須2871-3 | ||
| アクセス |
|
||
| 建物面積 | 93.98㎡ | 駐車場 | あり 普通:2台 |
| 築年月 | 2025年(令和7年)11月予定 | 建築確認 | 第HP03-4065271号 |
| 建物構造 | 軽量鉄骨 平屋建て 1階建 | 工法 | |
| 主要採光 | バルコニー | ||
| 保証・評価 | |||
| 土地面積 | 273.38㎡(82.69坪) | 接道 | |
| 私道 | セットバック | ||
| 地目 | 宅地 | 地勢 | |
| 権利 | 所有権 |
||
| 都市計画 | 非線引区域 |
用途地域 | 指定無 |
| 建ぺい/容積率 | 60% / 100% | 土地国土法 | |
| 許可番号 | 建築基準法 | ||
| 法令制限 | |||
| 小学区 | 阿知須小学校 徒歩10分 (約750m) | 中学区 | 阿知須中学校 徒歩13分 (約1000m) |
| 現況 | 空 | 引渡 | 相談 |
| その他費用 | |||
| 周辺環境 | 山口市立阿知須小学校 徒歩10分 (約750m) 山口市立阿知須中学校 徒歩13分 (約1000m) JR宇部線/阿知須駅 徒歩13分 (約1000m) |
||
| 備考 | 屋外給排水工事/照明工事/カーテン工事/外構工事含む | ||
| 物件番号 | 4417007 | 取引態様 | 媒介 |
取扱店舗情報
| 電話番号 | 083-921-6515 |
|---|---|
| 所在地 | 〒753-0851 山口県山口市黒川400-1 |
| 営業時間 | 9:30~18:00 |
| 定休日 | 毎水・第2・3・4・5木 |
| 宅建免許番号 | 国土交通大臣(2)第9501号 |
| アクセス | 店舗への地図はこちら |

来店ご予約
山口県山口市で価格が似ている物件はこちら
- 山口県
マイページ物件数 - 3,170件
山口県新築一戸建て新着物件
-
-

-
- 新築一戸建て
- 3,290万円
-
周南市遠石1丁目
-
JR山陽本線櫛ヶ浜駅
-
-
-

-
- 新築一戸建て
- 2,580万円
-
光市中島田3丁目
-
JR山陽本線島田駅
-
-
-

-
- 新築一戸建て
- 2,380万円
-
光市中島田3丁目
-
JR山陽本線島田駅
-
-
-

-
- 新築一戸建て
- 2,380万円
-
光市中島田3丁目
-
JR山陽本線島田駅
-
-
-

-
- 新築一戸建て
- 2,380万円
-
光市中島田3丁目
-
JR山陽本線島田駅
-
-
-

-
- 新築一戸建て
- 4,280万円
-
下松市せせらぎ町1丁目
-
JR山陽本線下松駅
-
-
-

-
- 新築一戸建て
- 4,280万円
-
下松市せせらぎ町1丁目
-
JR山陽本線下松駅
-
- お近くの店舗を探す
-
おすすめ物件
-
-

-
- 新築一戸建て
- 3,298万円
-
山口市円政寺町
-
JR山口線上山口
-
-
-

-
- 新築一戸建て
- 2,998万円
-
山口市吉敷中東1丁目
-
JR山口線湯田温泉
-
-
-

-
- 新築一戸建て
- 3,198万円
-
宇部市東梶返2丁目
-
JR宇部線東新川
-
-
-

-
- 新築一戸建て
- 3,098万円
-
宇部市草江3丁目
-
JR宇部線草江
-
-
-

-
- 新築一戸建て
- 3,298万円
-
下関市川中本町
-
JR山陰本線綾羅木
-
-
-

-
- 新築一戸建て
- 2,798万円
-
防府市大字牟礼
-
JR山陽本線防府
-
-
-

-
- 新築一戸建て
- 2,380万円
-
防府市開出
-
JR山陽本線防府
-
-
-

-
- 新築一戸建て
- 3,280万円
-
山口市矢原
-
JR山口線矢原
-
-
-

-
- 新築一戸建て
- 3,098万円
-
宇部市大字小串
-
JR宇部線宇部新川
-
-
-

-
- 新築一戸建て
- 2,698万円
-
防府市大字牟礼
-
JR山陽本線防府
-






