倉敷市中庄の新築戸建
掲載情報更新日:2026年02月05日 次回更新予定日:2026年02月19日
- 3,380万円
-
- 借入ご希望金額
万円 - 借入期間
年 - 借入金利
% - 月々のお支払い金額
円
- 借入ご希望金額
※ 月々のお支払例は目安の試算となりますので、実際の金額とは異なる場合がございます。詳しくは店舗までお問合わせください。
- 倉敷市中庄
-
JR山陽本線『中庄』 徒歩38分 (約3040m)
JR山陽本線『倉敷』 徒歩31分 (約2480m)
水島臨海鉄道『球場前』 徒歩59分 (約4720m)
倉敷市中庄一戸建て | 物件情報
スーパーまで徒歩5分、陽当たり良好の新築物件!
物件の設備
- 上水道
- 下水道
- プロパンガス
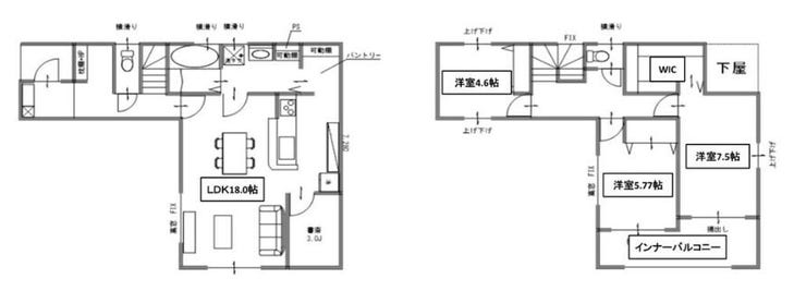
- LDK18畳以上
- ウォークインクローゼット
- インナーバルコニー
物件の特徴
- スーパーが近い
- 陽当り良好
- 2階建
- 平坦地
物件詳細情報
| 価格 | 3,380万円 | 間取り | 3LDK+S |
|---|---|---|---|
| 物件種別 | 新築一戸建て | ||
| 所在地 | 岡山県倉敷市中庄 1号棟 | ||
| アクセス |
|
||
| 建物面積 | 公113.44㎡ | 駐車場 | なし |
| 築年月 | 2025年(令和7年)12月予定 | 建築確認 | 第R07SHC116186号 |
| 建物構造 | 木造 2階建 | 工法 | |
| 主要採光 | 南向 | バルコニー | |
| 保証・評価 | |||
| 土地面積 | 公156.11㎡(47.22坪) | 接道 | 南西側(公道)幅 約4.0m |
| 私道 | セットバック | ||
| 地目 | 宅地 | 地勢 | |
| 権利 | 所有権 |
||
| 都市計画 | 市街化区域 |
用途地域 | 1種低層 |
| 建ぺい/容積率 | 60% / 200% | 土地国土法 | |
| 許可番号 | 建築基準法 | ||
| 法令制限 | 景観法 | ||
| 小学区 | 中庄小学校 徒歩20分 (約1600m) | 中学区 | 北中学校 徒歩13分 (約1000m) |
| 現況 | 未着工 | 引渡 | 期日指定:2026年01月中旬以降 |
| その他費用 | |||
| 周辺環境 | 倉敷市立中庄小学校 徒歩19分 (約1450m) 倉敷市立北中学校 徒歩13分 (約1000m) しらゆり幼稚園 徒歩7分 (約530m) ファミリーマート倉敷平田店 徒歩6分 (約460m) 山陽マルナカ中庄店 徒歩5分 (約350m) ホームセンターユーホー倉敷大島店 徒歩14分 (約1110m) ザグザグ中庄店 徒歩7分 (約500m) まつやま内科クリニック 徒歩13分 (約1010m) 倉敷中庄郵便局 徒歩12分 (約900m) おかやま信用金庫中庄支店 徒歩7分 (約550m) |
||
| 備考 | ●景観法による規制有 | ||
| 物件番号 | 4458694 | 取引態様 | 媒介 |
取扱店舗情報
ハウスドゥ 岡山駅西口 株式会社アールイープロジェクト 店舗詳細ページへ
| 電話番号 | 086-239-8621 |
|---|---|
| 所在地 | 〒700-0025 岡山県岡山市北区寿町1-3 ウエストサイドオカヤマ1階 |
| 営業時間 | 9:00~18:00 |
| 定休日 | 水曜日 |
| 宅建免許番号 | 岡山県知事(2)第5855号 |
| アクセス | 店舗への地図はこちら |

来店ご予約
岡山県倉敷市で価格が似ている物件はこちら
![]()
![]()
-
- 新築一戸建て 2023.04.20
-
-
- 3,380万円
-
倉敷市中庄
-
JR山陽本線「中庄駅」まで徒歩24分
- 4LDK
-
-
- 新築一戸建て 2023.06.20
-
-
- 3,380万円
-
倉敷市中庄
-
JR山陽本線「中庄駅」まで徒歩23分
- 3LDK
-
-
- 新築一戸建て 2023.08.21
-
-
- 3,300万円
-
倉敷市八王寺町
-
JR山陽本線「倉敷駅」まで徒歩19分
- 4LDK
-
-
- 新築一戸建て 2024.03.18
-
-
- 3,298万円
-
倉敷市茶屋町
-
JR宇野線「茶屋町駅」まで徒歩8分
- 5LDK
-
-
- 新築一戸建て 2024.07.04
-
-
- 3,290万円
-
倉敷市八王寺町
-
水島臨海鉄道「球場前駅」まで徒歩12分
- 4LK+S
-
-
- 新築一戸建て 2024.07.04
-
-
- 3,390万円
-
倉敷市八王寺町
-
水島臨海鉄道「球場前駅」まで徒歩12分
- 4LK+S
-
-
- 新築一戸建て 2025.02.28
-
-
- 3,398万円
-
倉敷市黒崎
-
JR山陽本線「倉敷駅」まで徒歩32分
- 5LDK
-
-
- 新築一戸建て 2025.03.01
-
-
- 3,290万円
-
倉敷市堀南
-
水島臨海鉄道「西富井駅」まで徒歩22分
- 3LDK+S
-
-
- 新築一戸建て 2025.03.01
-
-
- 3,420万円
-
倉敷市堀南
-
水島臨海鉄道「西富井駅」まで徒歩22分
- 3LDK+S
-
-
- 新築一戸建て 2025.03.01
-
-
- 3,390万円
-
倉敷市堀南
-
水島臨海鉄道「西富井駅」まで徒歩22分
- 3LDK+S
-
-
- 新築一戸建て 2025.03.01
-
-
- 3,390万円
-
倉敷市堀南
-
水島臨海鉄道「西富井駅」まで徒歩22分
- 3LDK+S
-
-
- 新築一戸建て 2025.05.13
-
-
- 3,380万円
-
倉敷市藤戸町天城
-
JR本四備讃線「茶屋町駅」まで徒歩34分
- 3LDK
-
-
- 新築一戸建て 2025.05.15
-
-
- 3,380万円
-
倉敷市藤戸町天城
-
JR本四備讃線「茶屋町駅」まで徒歩34分
- 3LDK+S
-
-
- 新築一戸建て 2025.06.07
-
-
- 3,480万円
-
倉敷市中畝5丁目
-
水島臨海鉄道「栄駅」まで徒歩5分
- 3LDK
-
-
- 新築一戸建て 2025.06.07
-
-
- 3,350万円
-
倉敷市北畝4丁目
-
水島臨海鉄道「栄駅」まで徒歩21分
- 4LDK
-
-
- 新築一戸建て 2025.06.09
-
-
- 3,298万円
-
倉敷市安江
-
水島臨海鉄道「球場前駅」まで徒歩9分
- 4LDK
-
-
- 新築一戸建て 2025.06.12
-
-
- 3,350万円
-
倉敷市福田町古新田
-
水島臨海鉄道「弥生駅」まで徒歩8分
- 5LDK
-
-
- 新築一戸建て 2025.07.03
-
-
- 3,398万円
-
倉敷市茶屋町
-
JR宇野線「茶屋町駅」まで徒歩14分
- 4LDK
-
-
- 新築一戸建て 2025.07.03
-
-
- 3,398万円
-
倉敷市茶屋町
-
JR宇野線「茶屋町駅」まで徒歩14分
- 4LDK
-
-
- 新築一戸建て 2025.07.04
-
-
- 3,298万円
-
倉敷市安江
-
水島臨海鉄道「球場前駅」まで徒歩8分
- 4LDK
-
-
- 新築一戸建て 2025.08.03
-
-
- 3,480万円
-
倉敷市中畝5丁目
-
水島臨海鉄道「常盤駅」まで徒歩4分
- 3LDK
-
-
- 新築一戸建て 2025.08.03
-
-
- 3,280万円
-
倉敷市上東
-
JR山陽本線「中庄駅」まで徒歩24分
- 4LDK
-
-
- 新築一戸建て 2025.08.09
-
-
- 3,380万円
-
倉敷市連島町西之浦
-
水島臨海鉄道「弥生駅」まで徒歩49分
- 3LDK
-
-
- 新築一戸建て 2025.08.23
-
-
- 3,298万円
-
倉敷市安江
-
水島臨海鉄道「球場前駅」まで徒歩8分
- 4LDK
-
-
- 新築一戸建て 2025.08.26
-
-
- 3,360万円
-
倉敷市大内
-
JR山陽本線「倉敷駅」まで徒歩23分
- 4LDK
-
-
- 新築一戸建て 2025.08.26
-
-
- 3,298万円
-
倉敷市大内
-
JR山陽本線「倉敷駅」まで徒歩23分
- 4LDK
-
-
- 新築一戸建て 2025.10.03
-
-
- 3,350万円
-
倉敷市西阿知町
-
水島臨海鉄道「球場前駅」まで徒歩14分
- 4LDK
-
-
- 新築一戸建て 2025.10.20
-
-
- 3,360万円
-
倉敷市片島町
-
JR山陽本線「西阿知駅」まで徒歩28分
- 4LDK
-
-
- 新築一戸建て 2025.10.30
-
-
- 3,398万円
-
倉敷市上富井
-
水島臨海鉄道「球場前駅」まで徒歩12分
- 4LDK
-
-
- 新築一戸建て 2025.10.30
-
-
- 3,398万円
-
倉敷市上富井
-
水島臨海鉄道「球場前駅」まで徒歩12分
- 4LDK
-
-
- 新築一戸建て 2025.10.31
-
-
- 3,290万円
-
倉敷市西阿知町
-
JR山陽本線「西阿知駅」まで徒歩15分
- 4LDK
-
-
- 新築一戸建て 2025.11.04
-
-
- 3,360万円
-
倉敷市片島町
-
JR山陽本線「西阿知駅」まで徒歩28分
- 4LDK
-
-
- 新築一戸建て 2025.11.08
-
-
- 3,480万円
-
倉敷市白楽町
-
JR山陽本線「倉敷駅」まで徒歩17分
- 4LDK
-
-
- 新築一戸建て 2025.11.09
-
-
- 3,460万円
-
倉敷市児島下の町9丁目
-
JR本四備讃線「児島駅」まで徒歩33分
- 4LDK
-
-
- 新築一戸建て 2025.11.10
-
-
- 3,480万円
-
倉敷市中庄
-
JR山陽本線「中庄駅」まで徒歩28分
- 4LDK
-
-
- 新築一戸建て 2025.11.10
-
-
- 3,398万円
-
倉敷市上富井
-
水島臨海鉄道「球場前駅」まで徒歩12分
- 4LDK
-
-
- 新築一戸建て 2025.11.11
-
-
- 3,480万円
-
倉敷市白楽町
-
JR山陽本線「倉敷駅」まで徒歩26分
- 4LDK
-
-
- 新築一戸建て 2025.11.13
-
-
- 3,299万円
-
倉敷市川入
-
JR山陽本線「倉敷駅」まで徒歩21分
- 4LDK
-
-
- 新築一戸建て 2025.11.24
-
-
- 3,440万円
-
倉敷市中庄団地
-
JR山陽本線「倉敷駅」バス乗車12分 バス停「福島」まで徒歩6分
- 4LDK
-
-
- 新築一戸建て 2025.11.27
-
-
- 3,290万円
-
倉敷市西阿知町
-
JR山陽本線「西阿知駅」まで徒歩14分
- 4LDK
-
-
- 新築一戸建て 2025.12.08
-
-
- 3,380万円
-
倉敷市水江
-
水島臨海鉄道「球場前駅」まで徒歩7分
- 4LDK
-
-
- 新築一戸建て 2025.12.13
-
-
- 3,480万円
-
倉敷市中島
-
JR山陽本線「西阿知駅」まで徒歩18分
- 4LDK
-
-
- 新築一戸建て 2025.12.27
-
-
- 3,400万円
-
倉敷市玉島乙島
-
JR山陽本線「新倉敷駅」まで車12分
- 3LDK
-
-
- 新築一戸建て 2025.12.29
-
-
- 3,480万円
-
倉敷市中庄
-
JR山陽本線「中庄駅」まで徒歩29分
- 4LDK
-
-
-
新築一戸建て
2026.01.17
-
-
- 3,399万円
-
倉敷市川入
-
JR山陽本線「倉敷駅」まで徒歩21分
- 5LDK
-
-
新築一戸建て
2026.01.17
-
-
新築一戸建て
2026.01.25
-
-
- 3,290万円
-
倉敷市福田町古新田
-
水島臨海鉄道「栄駅」まで徒歩25分
- 3LDK+S
-
-
新築一戸建て
2026.01.25
-
-
新築一戸建て
2026.01.26
-
-
- 3,280万円
-
倉敷市連島中央5丁目
-
水島臨海鉄道「弥生駅」まで徒歩38分
- 5LDK
-
-
新築一戸建て
2026.01.26
-
-
新築一戸建て
2026.01.26
-
-
- 3,280万円
-
倉敷市連島中央5丁目
-
水島臨海鉄道「弥生駅」まで徒歩38分
- 5LDK
-
-
新築一戸建て
2026.01.26
-
-
新築一戸建て
2026.01.30
-
-
- 3,290万円
-
倉敷市堀南
-
水島臨海鉄道「福井駅」まで徒歩23分
- 3LDK
-
-
新築一戸建て
2026.01.30
-
-
新築一戸建て
2026.01.31
-
-
- 3,360万円
-
倉敷市児島柳田町
-
JR本四備讃線「上の町駅」まで徒歩25分
- 4LDK+S
-
-
新築一戸建て
2026.01.31
-
-
新築一戸建て
2026.02.01
-
-
- 3,380万円
-
倉敷市羽島
-
JR山陽本線「倉敷駅」まで徒歩32分
- 4LDK
-
-
新築一戸建て
2026.02.01
-
-
新築一戸建て
2026.02.02
-
-
- 3,399万円
-
倉敷市川入
-
JR山陽本線「倉敷駅」まで徒歩21分
- 4LDK
-
-
新築一戸建て
2026.02.02
-
-
新築一戸建て
2026.02.07
-
-
- 3,380万円
-
倉敷市上富井
-
水島臨海鉄道「西富井駅」まで徒歩10分
- 4LDK
-
-
新築一戸建て
2026.02.07
-
-
新築一戸建て
2026.02.09
-
-
- 3,390万円
-
倉敷市粒江
-
JR宇野線「茶屋町駅」まで徒歩41分
- 3LDK+S
-
-
新築一戸建て
2026.02.09
- 岡山県
マイページ物件数 - 4,498件
岡山県新築一戸建て新着物件
-
-

-
- 新築一戸建て
- 3,390万円
-
倉敷市粒江
-
JR宇野線茶屋町駅
-
-
-

-
- 新築一戸建て
- 2,880万円
-
岡山市中区湊
-
岡電バス「倉田北」バス停
-
-
-

-
- 新築一戸建て
- 3,490万円
-
倉敷市粒江
-
JR宇野線茶屋町駅
-
-
-

-
- 新築一戸建て
- 3,380万円
-
岡山市北区大安寺中町
-
JR吉備線大安寺駅
-
-
-

-
- 新築一戸建て
- 3,380万円
-
岡山市北区大安寺中町
-
JR吉備線大安寺駅
-
-
-

-
- 新築一戸建て
- 3,380万円
-
岡山市中区四御神
-
JR山陽本線東岡山駅
-
-
-

-
- 新築一戸建て
- 3,280万円
-
岡山市中区四御神
-
JR山陽本線東岡山駅
-
- お近くの店舗を探す
-














