倉敷市堀南の新築戸建
掲載情報更新日:2026年02月07日 次回更新予定日:2026年02月21日
- 3,390万円
-
- 借入ご希望金額
万円 - 借入期間
年 - 借入金利
% - 月々のお支払い金額
円
- 借入ご希望金額
※ 月々のお支払例は目安の試算となりますので、実際の金額とは異なる場合がございます。詳しくは店舗までお問合わせください。
- 倉敷市堀南
-
水島臨海鉄道『西富井』 徒歩22分 (約1760m)
倉敷市堀南一戸建て | 物件情報
●小学校・幼稚園も徒歩圏!分譲地内に公園があり、小さなお子様がいても安心!
●近隣にはコンビニ、スーパーの他、ご家族で行けるカフェや飲食店がたくさんあります!
●分譲地内にゴミステーション完備!
物件の設備
- 電気
- 上水道
- 公営水道
- 下水道
- 公共下水
- 都市ガス
- カウンターキッチン
- システムキッチン
- ユニットバス
- 浴室に窓
- トイレ2箇所
- 温水洗浄便座
- 室内洗濯機置場
- 洗髪洗面化粧台
- 洗面所独立
- エアコン
- LDK18畳以上
- 和室
- ウォークインクローゼット
- 全居室収納
- バルコニー
- インナーバルコニー
物件の特徴
- 2階建
- 即入居可
物件詳細情報
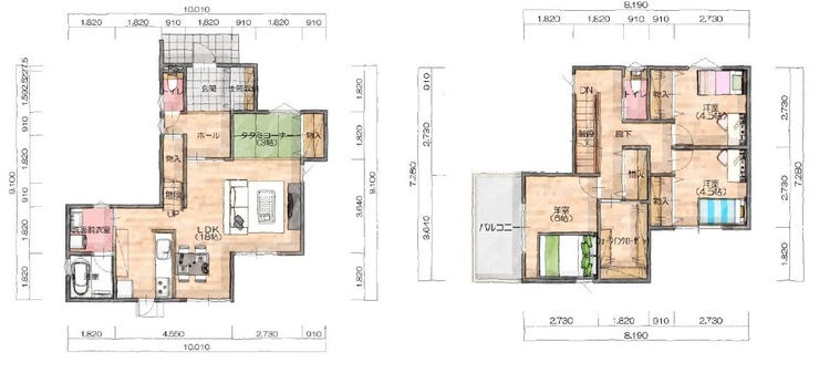
| 価格 | 3,390万円 | 間取り | 3LDK+S |
|---|---|---|---|
| 物件種別 | 新築一戸建て | ||
| 所在地 | 岡山県倉敷市堀南 36号地 | ||
| アクセス |
|
||
| 建物面積 | 公102.68㎡ | 駐車場 | あり 普通:2台 |
| 築年月 | 2023年(令和5年)02月築 | 建築確認 | 2022岡セ確建第1092号 |
| 建物構造 | 木造 2階建 | 工法 | |
| 主要採光 | バルコニー | ||
| 保証・評価 | |||
| 分譲情報 | |||
| 土地面積 | 公154.35㎡(46.69坪) | 接道 | 北側幅 約5.0m |
| 私道 | セットバック | ||
| 地目 | 宅地 | 地勢 | |
| 権利 | 所有権 |
||
| 都市計画 | 市街化区域 |
用途地域 | 1種中高 |
| 建ぺい/容積率 | 60% / 200% | 土地国土法 | |
| 許可番号 | 建築基準法 | ||
| 法令制限 | |||
| 小学区 | 葦高小学校 徒歩10分 (約800m) | 中学区 | 新田中学校 徒歩23分 (約1800m) |
| 現況 | 空 | 引渡 | 即 |
| その他費用 | |||
| 周辺環境 | ニシナフードバスケット堀南店 徒歩5分 (約330m) 倉敷市立葦高幼稚園 徒歩10分 (約800m) ファミリーマート 倉敷西富井店 徒歩13分 (約990m) セブンイレブン 倉敷堀南店 徒歩8分 (約630m) 大高郵便局 徒歩10分 (約730m) 中国銀行 笹沖支店 徒歩18分 (約1410m) ザグザグ 笹沖店 徒歩19分 (約1510m) ザ・ビッグ 倉敷店 徒歩21分 (約1650m) 山陽マルナカ中島店 徒歩24分 (約1850m) ドン・キホーテ倉敷店 徒歩24分 (約1870m) |
||
| 備考 | ●小学校・幼稚園も徒歩圏!分譲地内に公園があり、小さなお子様がいても安心! ●近隣にはコンビニ、スーパーの他、ご家族で行けるカフェや飲食店がたくさんあります! ●分譲地内にゴミステーション完備! ※ゴミステーション(708番71)1/65無償譲渡あり ・ゴミステーション使用料3,000円(1回のみ) ・道路から既存境界ブロックまでは新設禁止 ・町内会費2600円/年 ・町内会入会金10,000円 【団地協定】 ・弊社売主の隣地建物開口部(窓等)が敷地境界より有効寸法1mを切る事を承諾する。 ・建物の修繕・エアコン設置・給湯器取り換え等、弊社売主である隣接地で作業を行う際に、隣接地敷地内だけで作業を行う事が困難な場合、互いに協力し、自己敷地内への立ち入り及び使用を承諾する。 |
||
| 物件番号 | 4175910 | 取引態様 | 媒介 |
取扱店舗情報
ハウスドゥ 倉敷駅東 株式会社アールイープロジェクト 店舗詳細ページへ
| 電話番号 | 086-424-6400 |
|---|---|
| 所在地 | 〒710-0003 岡山県倉敷市平田681-4 |
| 営業時間 | 9:00~18:00 |
| 定休日 | 水曜日、年末年始 |
| 宅建免許番号 | 岡山県知事(2)第5855号 |
| アクセス | 店舗への地図はこちら |

来店ご予約
岡山県倉敷市で価格が似ている物件はこちら
![]()
![]()
-
- 新築一戸建て 2023.04.20
-
-
- 3,380万円
-
倉敷市中庄
-
JR山陽本線「中庄駅」まで徒歩24分
- 4LDK
-
-
- 新築一戸建て 2023.06.20
-
-
- 3,380万円
-
倉敷市中庄
-
JR山陽本線「中庄駅」まで徒歩23分
- 3LDK
-
-
- 新築一戸建て 2023.08.21
-
-
- 3,300万円
-
倉敷市八王寺町
-
JR山陽本線「倉敷駅」まで徒歩19分
- 4LDK
-
-
- 新築一戸建て 2024.03.18
-
-
- 3,298万円
-
倉敷市茶屋町
-
JR宇野線「茶屋町駅」まで徒歩8分
- 5LDK
-
-
- 新築一戸建て 2024.07.04
-
-
- 3,290万円
-
倉敷市八王寺町
-
水島臨海鉄道「球場前駅」まで徒歩12分
- 4LK+S
-
-
- 新築一戸建て 2024.07.04
-
-
- 3,390万円
-
倉敷市八王寺町
-
水島臨海鉄道「球場前駅」まで徒歩12分
- 4LK+S
-
-
- 新築一戸建て 2025.02.28
-
-
- 3,398万円
-
倉敷市黒崎
-
JR山陽本線「倉敷駅」まで徒歩32分
- 5LDK
-
-
- 新築一戸建て 2025.03.01
-
-
- 3,290万円
-
倉敷市堀南
-
水島臨海鉄道「西富井駅」まで徒歩22分
- 3LDK+S
-
-
- 新築一戸建て 2025.03.01
-
-
- 3,420万円
-
倉敷市堀南
-
水島臨海鉄道「西富井駅」まで徒歩22分
- 3LDK+S
-
-
- 新築一戸建て 2025.03.01
-
-
- 3,390万円
-
倉敷市堀南
-
水島臨海鉄道「西富井駅」まで徒歩22分
- 3LDK+S
-
-
- 新築一戸建て 2025.04.17
-
-
- 3,490万円
-
倉敷市沖
-
JR山陽本線「倉敷駅」まで徒歩27分
- 3LDK
-
-
- 新築一戸建て 2025.05.13
-
-
- 3,380万円
-
倉敷市藤戸町天城
-
JR本四備讃線「茶屋町駅」まで徒歩34分
- 3LDK
-
-
- 新築一戸建て 2025.05.15
-
-
- 3,380万円
-
倉敷市藤戸町天城
-
JR本四備讃線「茶屋町駅」まで徒歩34分
- 3LDK+S
-
-
- 新築一戸建て 2025.06.07
-
-
- 3,480万円
-
倉敷市中畝5丁目
-
水島臨海鉄道「栄駅」まで徒歩5分
- 3LDK
-
-
- 新築一戸建て 2025.06.07
-
-
- 3,350万円
-
倉敷市北畝4丁目
-
水島臨海鉄道「栄駅」まで徒歩21分
- 4LDK
-
-
- 新築一戸建て 2025.06.09
-
-
- 3,298万円
-
倉敷市安江
-
水島臨海鉄道「球場前駅」まで徒歩9分
- 4LDK
-
-
- 新築一戸建て 2025.06.12
-
-
- 3,350万円
-
倉敷市福田町古新田
-
水島臨海鉄道「弥生駅」まで徒歩8分
- 5LDK
-
-
- 新築一戸建て 2025.07.03
-
-
- 3,398万円
-
倉敷市茶屋町
-
JR宇野線「茶屋町駅」まで徒歩14分
- 4LDK
-
-
- 新築一戸建て 2025.07.03
-
-
- 3,398万円
-
倉敷市茶屋町
-
JR宇野線「茶屋町駅」まで徒歩14分
- 4LDK
-
-
- 新築一戸建て 2025.07.04
-
-
- 3,298万円
-
倉敷市安江
-
水島臨海鉄道「球場前駅」まで徒歩8分
- 4LDK
-
-
- 新築一戸建て 2025.08.03
-
-
- 3,480万円
-
倉敷市中畝5丁目
-
水島臨海鉄道「常盤駅」まで徒歩4分
- 3LDK
-
-
- 新築一戸建て 2025.08.23
-
-
- 3,298万円
-
倉敷市安江
-
水島臨海鉄道「球場前駅」まで徒歩8分
- 4LDK
-
-
- 新築一戸建て 2025.08.26
-
-
- 3,360万円
-
倉敷市大内
-
JR山陽本線「倉敷駅」まで徒歩23分
- 4LDK
-
-
- 新築一戸建て 2025.08.26
-
-
- 3,298万円
-
倉敷市大内
-
JR山陽本線「倉敷駅」まで徒歩23分
- 4LDK
-
-
- 新築一戸建て 2025.10.03
-
-
- 3,350万円
-
倉敷市西阿知町
-
水島臨海鉄道「球場前駅」まで徒歩14分
- 4LDK
-
-
- 新築一戸建て 2025.10.20
-
-
- 3,360万円
-
倉敷市片島町
-
JR山陽本線「西阿知駅」まで徒歩28分
- 4LDK
-
-
- 新築一戸建て 2025.10.21
-
-
- 3,380万円
-
倉敷市中庄
-
JR山陽本線「中庄駅」まで徒歩38分
- 3LDK+S
-
-
- 新築一戸建て 2025.10.30
-
-
- 3,398万円
-
倉敷市上富井
-
水島臨海鉄道「球場前駅」まで徒歩12分
- 4LDK
-
-
- 新築一戸建て 2025.10.30
-
-
- 3,398万円
-
倉敷市上富井
-
水島臨海鉄道「球場前駅」まで徒歩12分
- 4LDK
-
-
- 新築一戸建て 2025.10.31
-
-
- 3,290万円
-
倉敷市西阿知町
-
JR山陽本線「西阿知駅」まで徒歩15分
- 4LDK
-
-
- 新築一戸建て 2025.11.04
-
-
- 3,360万円
-
倉敷市片島町
-
JR山陽本線「西阿知駅」まで徒歩28分
- 4LDK
-
-
- 新築一戸建て 2025.11.08
-
-
- 3,480万円
-
倉敷市白楽町
-
JR山陽本線「倉敷駅」まで徒歩17分
- 4LDK
-
-
- 新築一戸建て 2025.11.09
-
-
- 3,460万円
-
倉敷市児島下の町9丁目
-
JR本四備讃線「児島駅」まで徒歩33分
- 4LDK
-
-
- 新築一戸建て 2025.11.10
-
-
- 3,480万円
-
倉敷市中庄
-
JR山陽本線「中庄駅」まで徒歩28分
- 4LDK
-
-
- 新築一戸建て 2025.11.10
-
-
- 3,398万円
-
倉敷市上富井
-
水島臨海鉄道「球場前駅」まで徒歩12分
- 4LDK
-
-
- 新築一戸建て 2025.11.11
-
-
- 3,480万円
-
倉敷市白楽町
-
JR山陽本線「倉敷駅」まで徒歩26分
- 4LDK
-
-
- 新築一戸建て 2025.11.13
-
-
- 3,299万円
-
倉敷市川入
-
JR山陽本線「倉敷駅」まで徒歩21分
- 4LDK
-
-
- 新築一戸建て 2025.11.24
-
-
- 3,440万円
-
倉敷市中庄団地
-
JR山陽本線「倉敷駅」バス乗車12分 バス停「福島」まで徒歩6分
- 4LDK
-
-
- 新築一戸建て 2025.11.27
-
-
- 3,290万円
-
倉敷市西阿知町
-
JR山陽本線「西阿知駅」まで徒歩14分
- 4LDK
-
-
- 新築一戸建て 2025.12.02
-
-
- 3,490万円
-
倉敷市連島町鶴新田
-
水島臨海鉄道「栄駅」まで徒歩44分
- 4LDK+S
-
-
- 新築一戸建て 2025.12.08
-
-
- 3,380万円
-
倉敷市水江
-
水島臨海鉄道「球場前駅」まで徒歩7分
- 4LDK
-
-
- 新築一戸建て 2025.12.13
-
-
- 3,480万円
-
倉敷市中島
-
JR山陽本線「西阿知駅」まで徒歩18分
- 4LDK
-
-
- 新築一戸建て 2025.12.27
-
-
- 3,400万円
-
倉敷市玉島乙島
-
JR山陽本線「新倉敷駅」まで車12分
- 3LDK
-
-
- 新築一戸建て 2025.12.29
-
-
- 3,480万円
-
倉敷市中庄
-
JR山陽本線「中庄駅」まで徒歩29分
- 4LDK
-
-
-
新築一戸建て
2026.01.17
-
-
- 3,399万円
-
倉敷市川入
-
JR山陽本線「倉敷駅」まで徒歩21分
- 5LDK
-
-
新築一戸建て
2026.01.17
-
-
新築一戸建て
2026.01.25
-
-
- 3,290万円
-
倉敷市福田町古新田
-
水島臨海鉄道「栄駅」まで徒歩25分
- 3LDK+S
-
-
新築一戸建て
2026.01.25
-
-
新築一戸建て
2026.01.30
-
-
- 3,290万円
-
倉敷市堀南
-
水島臨海鉄道「福井駅」まで徒歩23分
- 3LDK
-
-
新築一戸建て
2026.01.30
-
-
新築一戸建て
2026.01.31
-
-
- 3,360万円
-
倉敷市児島柳田町
-
JR本四備讃線「上の町駅」まで徒歩25分
- 4LDK+S
-
-
新築一戸建て
2026.01.31
-
-
新築一戸建て
2026.02.01
-
-
- 3,380万円
-
倉敷市羽島
-
JR山陽本線「倉敷駅」まで徒歩32分
- 4LDK
-
-
新築一戸建て
2026.02.01
-
-
新築一戸建て
2026.02.02
-
-
- 3,399万円
-
倉敷市川入
-
JR山陽本線「倉敷駅」まで徒歩21分
- 4LDK
-
-
新築一戸建て
2026.02.02
-
-
新築一戸建て
2026.02.07
-
-
- 3,380万円
-
倉敷市上富井
-
水島臨海鉄道「西富井駅」まで徒歩10分
- 4LDK
-
-
新築一戸建て
2026.02.07
-
-
新築一戸建て
2026.02.09
-
-
- 3,490万円
-
倉敷市粒江
-
JR宇野線「茶屋町駅」まで徒歩41分
- 3LDK+S
-
-
新築一戸建て
2026.02.09
-
-
新築一戸建て
2026.02.09
-
-
- 3,390万円
-
倉敷市粒江
-
JR宇野線「茶屋町駅」まで徒歩41分
- 3LDK+S
-
-
新築一戸建て
2026.02.09
-
-
新築一戸建て
2026.02.10
-
-
- 3,480万円
-
倉敷市中島
-
JR山陽本線「西阿知駅」まで徒歩19分
- 5LDK
-
-
新築一戸建て
2026.02.10
- 岡山県
マイページ物件数 - 4,507件
最近見た物件
-
-

-
- 新築一戸建て
- 2,799万円
-
熊本市東区沼山津4丁目
-
熊本市健軍線健軍町
-
-
-

-
- 土地
- 450万円
-
光市中央2丁目
-
JR山陽本線光
-
-
-

-
- 中古一戸建て
- 3,480万円
-
高崎市大八木町
-
JR上越線井野
-
岡山県新築一戸建て新着物件
-
-

-
- 新築一戸建て
- 2,380万円
-
岡山市北区吉備津
-
JR吉備線吉備津駅
-
-
-

-
- 新築一戸建て
- 2,480万円
-
岡山市北区吉備津
-
JR吉備線吉備津駅
-
-
-

-
- 新築一戸建て
- 3,480万円
-
倉敷市中島
-
JR山陽本線西阿知駅
-
-
-

-
- 新築一戸建て
- 3,080万円
-
浅口市鴨方町六条院中
-
JR山陽本線鴨方駅
-
-
-

-
- 新築一戸建て
- 4,280万円
-
浅口市鴨方町六条院中
-
JR山陽本線鴨方駅
-
-
-

-
- 新築一戸建て
- 3,280万円
-
岡山市中区原尾島2丁目
-
JR山陽本線高島駅
-
-
-

-
- 新築一戸建て
- 3,390万円
-
倉敷市粒江
-
JR宇野線茶屋町駅
-
- お近くの店舗を探す
-



















